EasyManua.ls Logo

Liebert CR035 - Appendix 6 Wiring Diagram

Liebert CR035
79 pages
Print Icon
To Next Page IconTo Next Page
To Next Page IconTo Next Page
To Previous Page IconTo Previous Page
To Previous Page IconTo Previous Page
Loading...
Appendix 6 Wiring Diagram 67
Liebert.CRV Series Air Conditioner User Manual
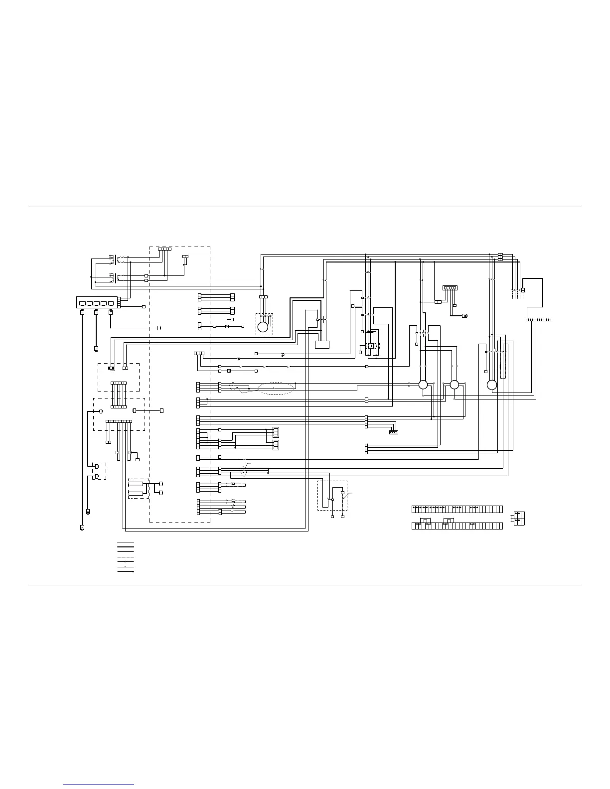
Appendix 6 Wiring Diagram
380V415V/50Hz 3N
L2
BK
BK
3
4
L1
1
2
BK
NL3 PE
6
5
8
7
PE
Main switch
QS
2 4
BK
BK
1
Fan breaker
QF1
A1
A2
2
1
4
3
6
5
1
4
1
3
3
2 4 6
BK
BK
BK
1 5
Heater breaker
QF5
A1
A2
2
1
4
3
6
5
14
13
3
A1
A2
2
1
4
3
6
5
2 4
BK
BK
1
Humidifier
breaker
QF7
A1
A2
2
1
4
3
6
5
3
LN -+ PE
AC/DC Supply unit
AL
2 4
BK
BK
1
Transformer
breaker
QF8
3
PE1
Fan contactor
KM1
FAN1-NC
FAN1-COM
YE
BL
FAN2-NC
00
Y1
P5
710
054
i-COM
A1
Heat contactor1
KM6
Humidifier
contactor
KM7
0
24
ST13-C ST13-NC
Thermostat
P2
1 2 3 4
ST12-C ST12-N C
Manual Thermostat
0
0
Door switch1
Door switch2
Door switch3
52
53
63
62
P8
84
83
82
81
Delivery air probe
P10
NC
NOCF-COM
Clogged filter alarm
106
105
Water under floor switch
1
2
3
4
1
2
3
4
5
6
1
2
3
4
P7
1
2
3
4
P14
1
2
3
4
P12
1
2
3
4
5
6
7
8
P6
1
2
3
4
P17 1
2
G0
Y2
24
YG G0
Condensing water valve
71
70
Connection bars
QS-7
XP-1
FAN2-COM
XP-3
XP-5
BK
BK
TB-70
TB-71
TB-24
TB-G0
TB-Y2
TB-00
TB-Y1
TB-710
TB-054
CWV-G
CWV-G0
CWV-Y
QS-5
QS-3
QS-1
PE1
QF1-2
QF1-4
KM1-1
KM1-5
KM1-A1
KM1-13
KM1-2
KM1-6
KM1-14
KM1-A2
Y/GN
FAN1-L
XPE
AL-N
AL-L
AL-PEXPE
QF5-2
QF5-4
QF3-6
KM6-1
KM6-3
KM6-5
KM6-2
KM6-4
KM6-6
KM5-1
KM5-3
KM5-5
KM5-A1
KM5-A2
KM6-A1KM6-A2
KM5-13KM5-14
KM5-2
KM5-4
KM5-6
TB-0
EH-1
EH-3
EH-5
EH-2
EH-4
EH-6
EH-N1
EH-N3
EH-N5
EH-N2
EH-N4
EH-N6
QF7-2
QF7-4
KM7-A1
KM7-1
KM7-5
KM7-A2
KM7-2
KM7-6
SL A D
HUM-SL
HUM-A
HUM-D
BK
BK
QF8-2
QF8-4
R8 S8
TB-R8
TB-S8
BK
BK
A1-P2-4
A1-P2-3
BK
TB-52
TB-53
TB-62
TB-63
TB-81
TB-82
TB-83
TB-84
TB-105
TB-106
A1-P5-1
A1-P5-2
A1-P5-3
A1-P5-4
A1-P7-1
A1-P7-2
A1-P7-3
A1-P7-4
A1-P14-1
A1-P14-2
A1-P14-3
A1-P14-4
A1-P6-1
A1-P6-2
A1-P6-3
A1-P6-4
A1-P8-1
A1-P8-2
A1-P8-3
A1-P8-4
A1-P10-3
A1-P10-4
A1-P10-5
A1-P10-6
MP1-NO MP1-C MP2-NO MP2-C MP3-NO MP3-C
50
TB-50
19
TB-19
1 2
CF-NC
COM
PE9
TB-R8
TB-S8
TB-PE9
BK
Y/GN
Y/GN
Y/GN
BK
BK
BK BK
BL
BK BK
BK
BK
BK
BK
BK
BK
BK
BK
BK
BK
BK
BK
BK
BK
BK
BK
BK
BK
BK
BK
BK
BK
BK
Humidifier
Heat
contactor2
KM5
Fan1
Fan2
XPE
FAN1-N
FAN2-L
FAN2-N
1
3
5
2
4
6
XP
ALL+
AL-L-
Remote ON/OFF
Fire sensor
51
54
TB-51BK
TB-54
BK
61
TB-61 BK
BK
TB-U01
U02
TB-U02
U01
XPE
XPE
XPE
XPE
LWD
Remote display cable supply
Condensate
pump
BR
BR
P P
Optional
P1 1 2 3 4 5
24
0
P3 1 2
Etherent switch
A1-P1-1
A1-P1-2
A1-P1-3
A1-P1-4
A1-P3-1
A1-P3-2
TB-24
TB-0
BK
BK
BK
BK
6 5 4 3 2 1
P3 P4
Isolation board
A6
P1
TAM
BK BK
A6-P3
A6-P4
P64
A1-P64
A3
Humidification control board
A5
1 2 3 4 5 6P1
1 2 3 4 5 6P2 7 8 9 10
24 0
XPE
Drain
solenoid
valve
P66 P67
A6-P1-6
A6-P1-5
A6-P1-4
A6-P1-3
A6-P1-2
A6-P1-1
A5-P1-1
A5-P1-2
A5-P1-3
A5-P1-4
A5-P1-5
A5-P1-6
A5-P2-1
A5-P2-2
A5-P2-5
A5-P2-6
A5-P2-7
A5-P2-8
A5-P2-9
A5-P2-10
TB-24
TB-0
XPE
A5-P66 A1-P67
BK
BK
BK
BK
BK
BK
BK
BK
BK
BK
BK
BK
BK
BK
YV07-2YV07-1
YV7-2YV7-1
Charge
solenoid valve
THB
1
401
400
402
301
300
302
2
3
1
2
3
TB-400
TB-401
TB-402
TB-300
TB-301
TB-302
A1-P16-1
A1-P16-2
A1-P16-3
A1-P15-1
A1-P15-2
A1-P15-3
BK
BK
BK
BK
BK
BK
P16
P15
1
2
3
P4
Remote-DIS
A1
A2
14
11
12
0
395
2
4
Optional
Heat and humidification
lockout relay
K1
User input
No signal input, with a short
connection cable
No signal input, with a short connection cable
Smoke sensor
A3
RT2
Local display
Local-DIS
Local-DIS
Local display
Only for large display
THB
THB
P67
A5-P67
A3
Remote large
display
Remote-DIS
A3
XPEXPEXPEXPEXPEXPEXPEXPEXPEXPEXPE
A1-P4-2
55
TB-55 Y1 Y1
0
XPE
XPE
TB-0
0
Iniection solenoid valve
TB-0
22
TB-22 Y3 Y3BKA1-P2-2
WH
WH
FAN1-BL
FAN1-YE
FAN1-PE
WH
WH
FAN2-PE
YE
BL
FAN2-BL
FAN2-YE
A1-P17-1
A1-P17-2
24
TB-24
HP-2HP-1
High pressure switch
121
126
127
128
+5V
sig
GND
High pressure
sensor
Low pressure
sensor
125
TB-125
TB-126
TB-127
TB-128
TB-121
A1-P12-1
A1-P12-2
A1-P12-4
A1-P12-5
A1-P12-6
A1-P12-7
A1-P12-8
BK
BK
BK
BK
BK
TB-72
TB-73
BK
BK
A1
A2
2
1
62
61
4
3
6
5
14
13
22
21
Compressor
contactor
KM3
0
KM3-1
KM3-3
KM3-5
KM3-13
KM3-21
KM3-61
KM3-2
KM3-4
KM3-6
KM3-14
KM3-62
KM3-A1
KM3-A2
BK
CP-L1
CP-L2
CP-L3
TB-0
BK
BK
BK
BK
Compressor
1
CP-PE
2 4 6
1 5
Compressor
breaker
QF3
3
QF3-2
QF3-4
QF3-6
73
72
Comp.delivery safety-sta
TSC
BK
BKA1-P10-1
A1-P10-2
0 0 0 0 0 24 24 24 24 24105106121121121125127126 1284004014023 0030 1302
50 51 51 52 53 53 54 0 5455 61 61 62 63 81 8 2 83 84 71 071 0Y2 G 0 70 71 7 2 73 22 3 95
126 19
Y1 Y1
00 00
U02
U01
R8
S8
Terminal block
XPE
BK
BL
BK
BL
Y/GN
Y/GN
BK
BK
BK
Factory supplied line voltage wiring
Factory supplied 24 volt wiring
Device own line
Notes:
Ethernet or CAN wiring
Inline quick disconnect
Terminal block connector
Naked crimping connector
Wire color code
BK-Black P-Purple
R-Red
WH-White
BL-Blue
BR-Brown
Y/GN-Yellow green
YE-Yellow
Only for unit CR020RW
Freon solenoid valve
P63
P65
Network Communication
Interface
INTELLISLOT1
INTELLISLOT2
71
72
KM3-71
+5V
sig
GND
Transformer T2
Transformer TC
TC-6
TC-5
T2-6
T2-5
4
T2-1
3
2
4
TC-1
3
2
BK
BK
BK
BK
BK
BK
BK
BK
XPE
A3-PE
XPE
V2
-
V2+
PE
A3-V1-
A3-V1+
V
1
V1
+
-
Figure 18 CR020 air conditioner

Table of Contents

Related product manuals