EasyManua.ls Logo

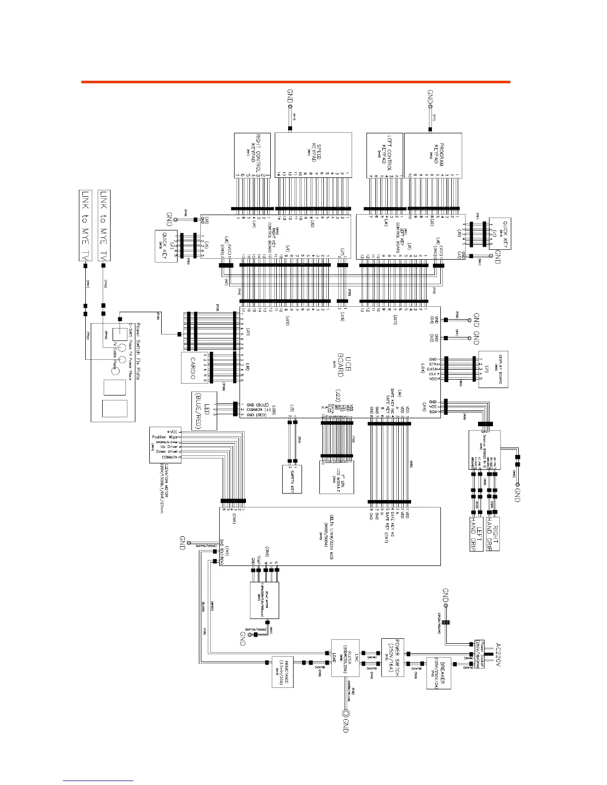
Matrix T50x-02 - Electrical Block Diagram

Matrix T50x-02
71 pages
Print Icon
To Next Page IconTo Next Page
To Next Page IconTo Next Page
To Previous Page IconTo Previous Page
To Previous Page IconTo Previous Page
Loading...
30
7.1 Electrical block diagram

Table of Contents

Related product manuals