EasyManua.ls Logo

Mendota FV48 - Page 26

Mendota FV48
98 pages
Print Icon
To Next Page IconTo Next Page
To Next Page IconTo Next Page
To Previous Page IconTo Previous Page
To Previous Page IconTo Previous Page
Loading...
85-03-01194 FV48 Page 26
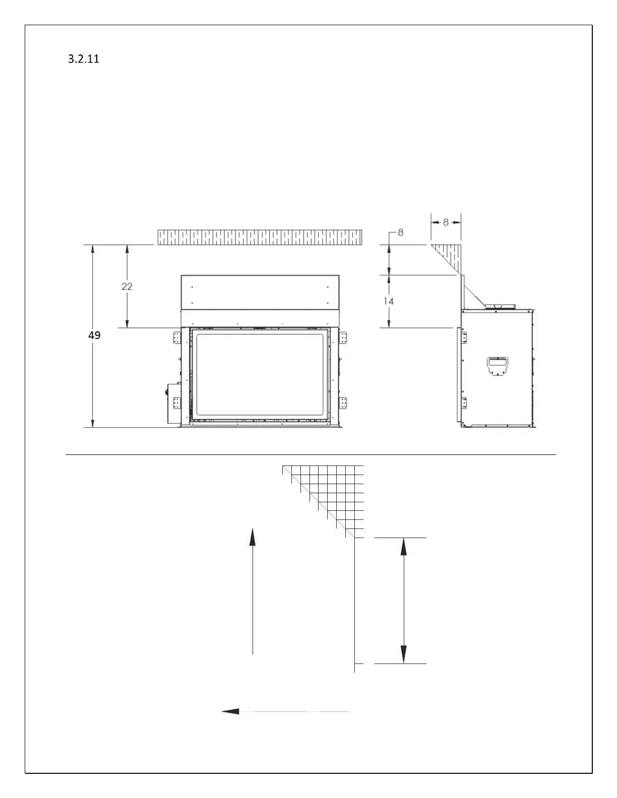
Clearances to Combustible Mantels
An 8” combustible mantel may be installed at a minimum of 22" above the top of the heat outlet (49” up from the floor level of
this Fireplace). Non-combustible (marble, brick, stone, metal etc.) mantels can be installed at any desired height above the top
convection air opening. Any pre-existing combustible mantel must fall within the approved mantel profile chart.
WARNING: Make proper use of this chart. Do not compromise the specifications contained in this chart.
Failure to adhere to proper clearances required to combustibles may cause spontaneous combustion of the mantel and
may
result in a fire causing property damage, personal injury or loss of life.
NOTE: For mantels that protrude more than 8 inches from the front surface of the fireplace use a rise and run of (1:1) to
calculate the required height to the mantel. EXAMPLE: You have a 12" mantel. To calculate the height above the
convection air opening the equation would be: 12" x (1/1) + 14" = 26" above the convection air opening. DO NOT deviate
from this minimum clearance requirement. Doing so can lead to a severe fire hazard.
Note: The distance from the Floor Level of this Fireplace to the Top Air Gap is 27”.
Figure 3-20 Mantel Clearances
Figure 3-21 Allowable Mantel Profile Chart
16
17
18
19
20
21
22
0
0
1
2
3
4
5
6
7
8
HEIGHT ABOVE CONVECTION
AIR OPENING.
14
15
NON COMBUSTIBLE
DISTANCE FROM
FIREPLACE FACE

Related product manuals