EasyManua.ls Logo

Mendota FV48 - Page 46

Mendota FV48
98 pages
Print Icon
To Next Page IconTo Next Page
To Next Page IconTo Next Page
To Previous Page IconTo Previous Page
To Previous Page IconTo Previous Page
Loading...
85-03-01194 FV48 Page 46
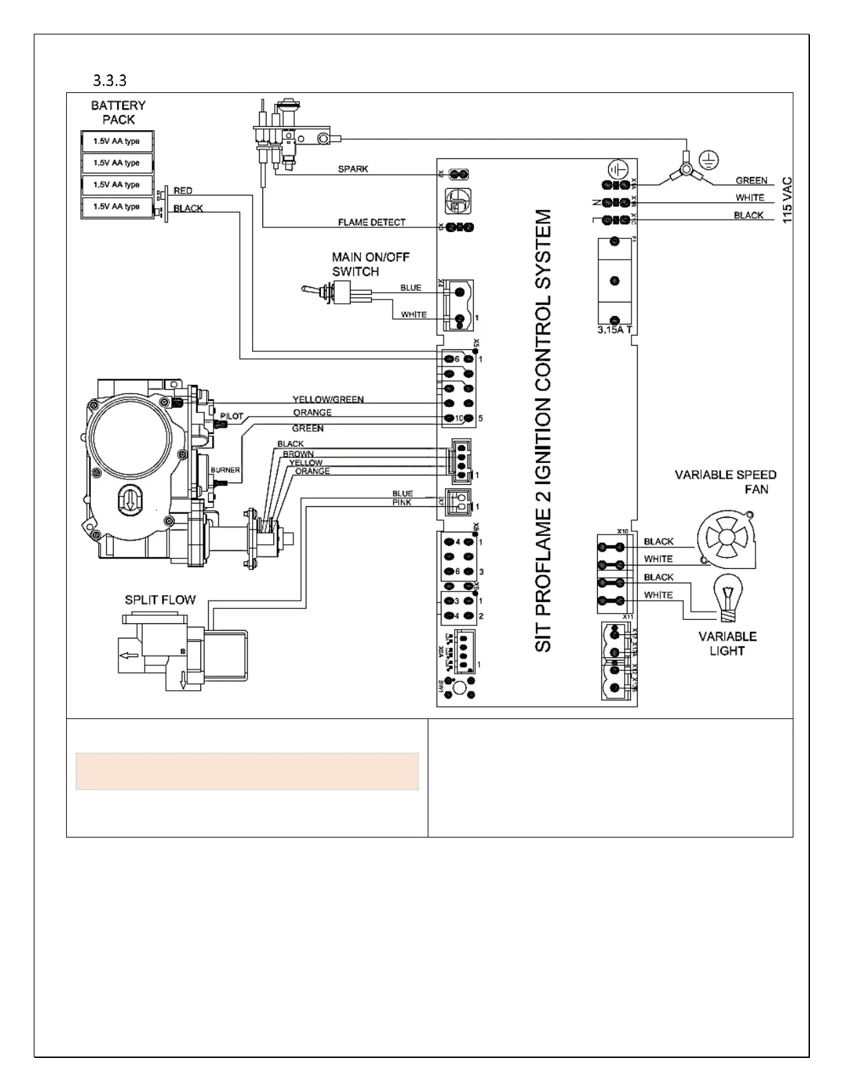
PF2 Ignition System Diagram
Note: Connect wires in junction box located on the left side
of this appliance to house power using supplied wire nuts.
Note: On Décor models, the Split Flow circuit is
not installed nor used.
Replacement wires must have the same type and size of
insulation as the original.
This appliance must be electrically connected and grounded
in accordance with local codes or, in the absence of local
codes, with the current NFPA 70- National Electric Code or
CSA C22.1- Canadian Electrical Code.
Label all wires prior to disconnection when servicing control.
Wiring Errors can cause improper and dangerous operation.
Verify proper operation after servicing.

Related product manuals