EasyManua.ls Logo

Mendota ML47-PF2 - Clearances to Combustibles from Appliance Surfaces; Clearance to Side Wall Projections

Mendota ML47-PF2
68 pages
Print Icon
To Next Page IconTo Next Page
To Next Page IconTo Next Page
To Previous Page IconTo Previous Page
To Previous Page IconTo Previous Page
Loading...
13 | P a g e
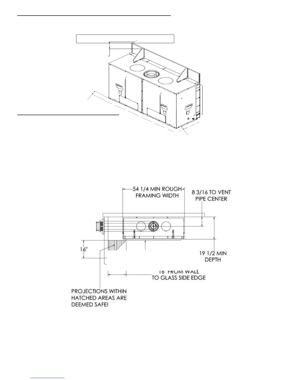
CLEARANCES TO COMBUSTIBLES FROM APPLIANCE SURFACES
CLEARANCE TO SIDE WALL PROJECTIONS
Any side wall adjacent to Left or Right side of this appliance protruding out more 16" in from
of the front surface of the visible glass door and if perpendicular to the front sur- face of the glass door
must be located a minimum of 16" from the side edge of the visible glass
door.
Figure 2: Clearances to Combustibles
16" MINIMUM TO SIDE WALL
FROM SIDE EDGE OF VISIBLE
GLASS
1 / 2 " C L E A R A N C E
F R O M B A C K
0 " C L E A R A N C E F R O M
T O P S T A N D O F F S
1 / 2 " C L E A R A N C E
F R O M S ID E S

Table of Contents

Related product manuals