EasyManua.ls Logo

Mendota ML47-PF2 - Ml47 Master Flue Venting Requirements Chart

Mendota ML47-PF2
68 pages
Print Icon
To Next Page IconTo Next Page
To Next Page IconTo Next Page
To Previous Page IconTo Previous Page
To Previous Page IconTo Previous Page
Loading...
33 | P a g e
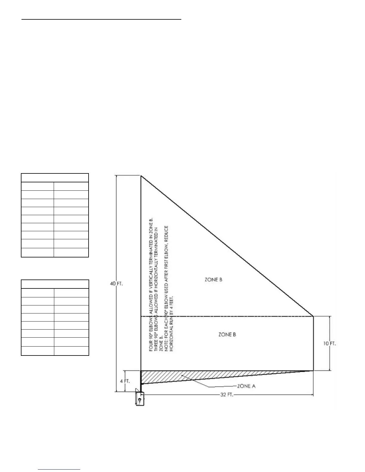
ML47 MASTER FLUE VENTING REQUIREMENTS CHART
NOTE: THIS CHART IS APPLICABLE TO NATURAL GAS ONLY. FOR LPG INSTALLATIONS, SEE TABLE ON LEFT
SIDE OF THE CHART, BELOW.
IMPORTANT NOTES: See Figure 15, below.
Always use the longest vertical starter pipe section as the first vertical section attached to the fireplace directly.
18” minimum vertical section is required for Natural Gas and 24” minimum vertical section for LPG applications.
6 inches maximum horizontal pipe run allowed with a 90
0
elbow connected to the 18” minimum vertical section Natural
Gas and 24” vertical section LPG.
Maximum Vertical Run allowed is 40 feet.
Maximum Vent System length allowed is 42 feet.
Maximum number of 90
o
elbows allowed in Zone A is 3 and in Zone B is 4.
In Zone “A, 32 feet maximum horizontal run allowed with a 4 feet starter section for NG and 27 feet maximum horizontal
for LPG. If the starter vertical section is less than 4 feet, use the chart and reduce 4 feet for every 90
0
elbow installed after
the first 90
0
elbow.
In Zone “B”, 32 feet maximum horizontal run allowed NG (27 feet max for LPG) only if the first vertical section connected
directly to the top of this fireplace is 4 feet or longer.
Figure 11: NATURAL GAS CHART
HIGH ALTITUDE INSTALLATION INFORMATION: Prior to installing at altitudes higher than 7500, please contact the
Mendota technical service department for specific venting requirements and venting restrictions.
Natural Gas ONLY
V min
H max
18 in.
6 in.
24 in.
6 ft.
30 in.
13 ft.
36 in.
19 ft.
42 in.
25-1/2 ft.
48 in.
32 ft.
4 ft. - 10 ft.
32 ft.
10 ft. - 40 ft.
Varies
**LPG
V min
H max
24 in. (LPG)
6 in.
30 in.
8 ft.
36 in.
14 ft.
42 in.
20 ft.
48 in.
27 ft.
4 ft. - 10 ft.
27fft.
10 ft. - 40 ft.
Varies

Table of Contents

Related product manuals