EasyManua.ls Logo

Mendota ML47-PF2 - General Installation Instructions

Mendota ML47-PF2
68 pages
Print Icon
To Next Page IconTo Next Page
To Next Page IconTo Next Page
To Previous Page IconTo Previous Page
To Previous Page IconTo Previous Page
Loading...
29 | P a g e
GENERAL INSTALLATION INSTRUCTIONS
CAUTION: Each installation must conform to all local, state and national codes. Refer to the national fuel gas code and
local zoning and code authorities for details on installation requirements. The Mendota Fireplace must be vented to the
outside in accordance with the latest edition of the National Fuel Gas Code. In the absence of local codes, the installation
must conform to the most current edition of the National Fuel Gas Code ANSI Z223.1, also known as NFPA 54. NOTE:
The Mendota ML47 Fireplace is approved for mobile home and bedroom installations.
The ML47-PF2 Fireplace must be installed by a qualified service person.
CAUTION: The Mendota ML47 Fireplace may be installed in a manufactured (mobile) home after the first sale of the
home. Manufactured home (mobile home) installation must conform with the Manufactured Home Construction and Safe-
ty Standard, Title 24 CFR, Part 3280, or, when such a standard is not applicable, the Standard for Manufactured Home
Installations, ANSI A225.1/NFPA 501A, or CSA Z240.4-Gas Equipped Mobile Housing. Consult your local building offi-
cial. Note: For mobile home installations unit must be bolted to the floor and properly grounded.
HIGH ALTITUDE INSTALLATION INFORMATION: Prior to installing at altitudes greater than 7500, please contact the
Mendota technical service department for specific venting requirements and venting restrictions.
1. After selection of the desired fireplace location, prepare the rough opening using framing dimensions. Be sure to
also prepare opening to allow for co-axial vent).
2. Check to make certain all venting requirements and locations are being followed.
3. This Fireplace is designed for installation into rough wood framing. NOTE: FRAMING MATERIAL ABOVE
FIREPLACE MUST MAINTAIN CORRECT CLEARANCE TO FIREPLACE AND VENT PIPES.
WARNING: One-inch clearance to sides & below and 3 inches clearance on top of horizontal vent sections and elbows
are required.
4. NOTE: A removable panel in the enclosure for future visual inspection of flue connection is recommended.
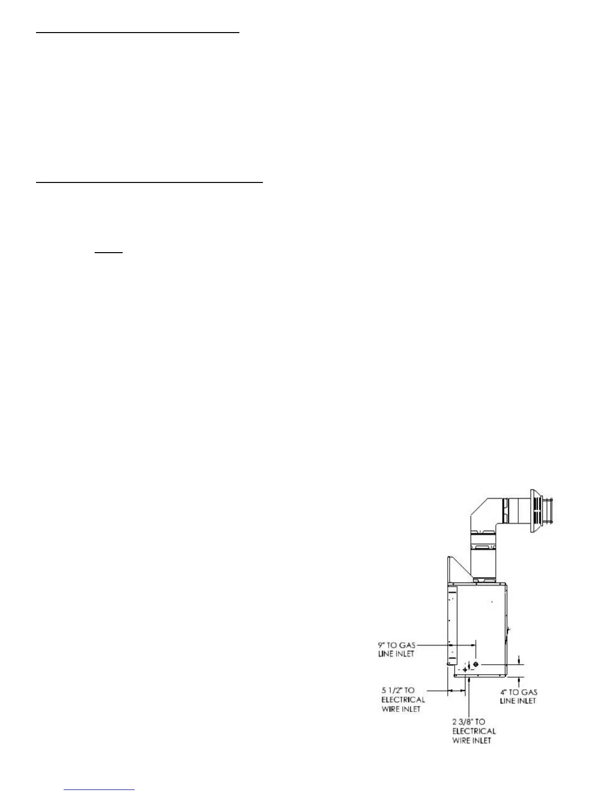
5. Have an electrician install a 110-Volt supply to the junction box on lower left side of the fireplace cabinet. Con-
nect wires using wire nuts. Make sure the grounding wires are properly connected and that the installation conforms to all
local and national wiring codes.
6. Have gas supplier or qualified plumber install gas supply line to fireplace and connect to the ½” female connector.
Be sure gas and plumbing instructions (see Page 25 and 26) and all local and national codes are carefully followed.
Figure 7: Junction Box
IMPORTANT: Any safety screen, guard, glass, grill etc. removed for servicing this fireplace must be replaced prior to op-
erating this fireplace.
BLOWER OPERATION
The Optional blower, if installed, can be regulated with the remote (included). NOTE: There will be a time delay in blower
operation during "heat-up" (5 min.) and extended blower operation during "cool-down" of unit (12-1/2 min.).
OPERATION DURING POWER OUTAGES
The fireplace is designed to operate during power outages on back-up batteries. The blower and Accent Light will not
operate during the power outage.

Table of Contents

Related product manuals