EasyManua.ls Logo

Mendota ML60 - Page 20

Mendota ML60
96 pages
Print Icon
To Next Page IconTo Next Page
To Next Page IconTo Next Page
To Previous Page IconTo Previous Page
To Previous Page IconTo Previous Page
Loading...
85-03-01147 ML60 Page 20
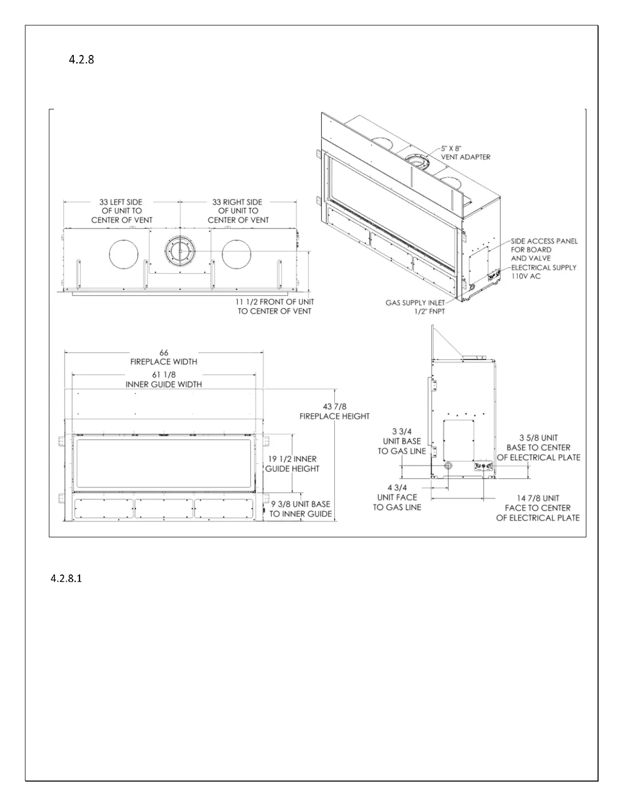
Fireplace Features Identification
See Figure 4-14 FIREPLACE DIMENSIONS AND FEATURES below. Identify the features included with this Fireplace and their
locations.
Figure 4-14 FIREPLACE DIMENSIONS AND FEATURES
Convection Blower System
Dual blowers are provided as standard equipment with this ML60 Fireplace. The dual blowers have an air output rating of 190
CFM (in free air). This Fireplace is designed to operate with the blowers turned off or on. Turning the blower on aids in
distributing and circulating heat to the room this Fireplace is installed in.

Related product manuals