EasyManua.ls Logo

Middleby Marshall PS540 (Double) - Maintenance - Every 3 Months; Cleaning the Blower;Fan Motor

Middleby Marshall PS540 (Double)
72 pages
Print Icon
To Next Page IconTo Next Page
To Next Page IconTo Next Page
To Previous Page IconTo Previous Page
To Previous Page IconTo Previous Page
Loading...
SECTION 4
MAINTENANCE
41
4. Reassemble conveyor drive chain cover and then
reassemble the bottom cover to the drive chain cover.
Install both upper end plugs.
Figure 4-37.
III. MAINTENANCE - EVERY 3 MONTHS
WARNING
Shut OFF all electrical power and lock/tag out the
switch before attempting maintenance work.
Shut OFF gas supply to oven.
NOTE: It is recommended that the 3-month mainte-
nance be performed by an authorized Middleby Marshall
technician.
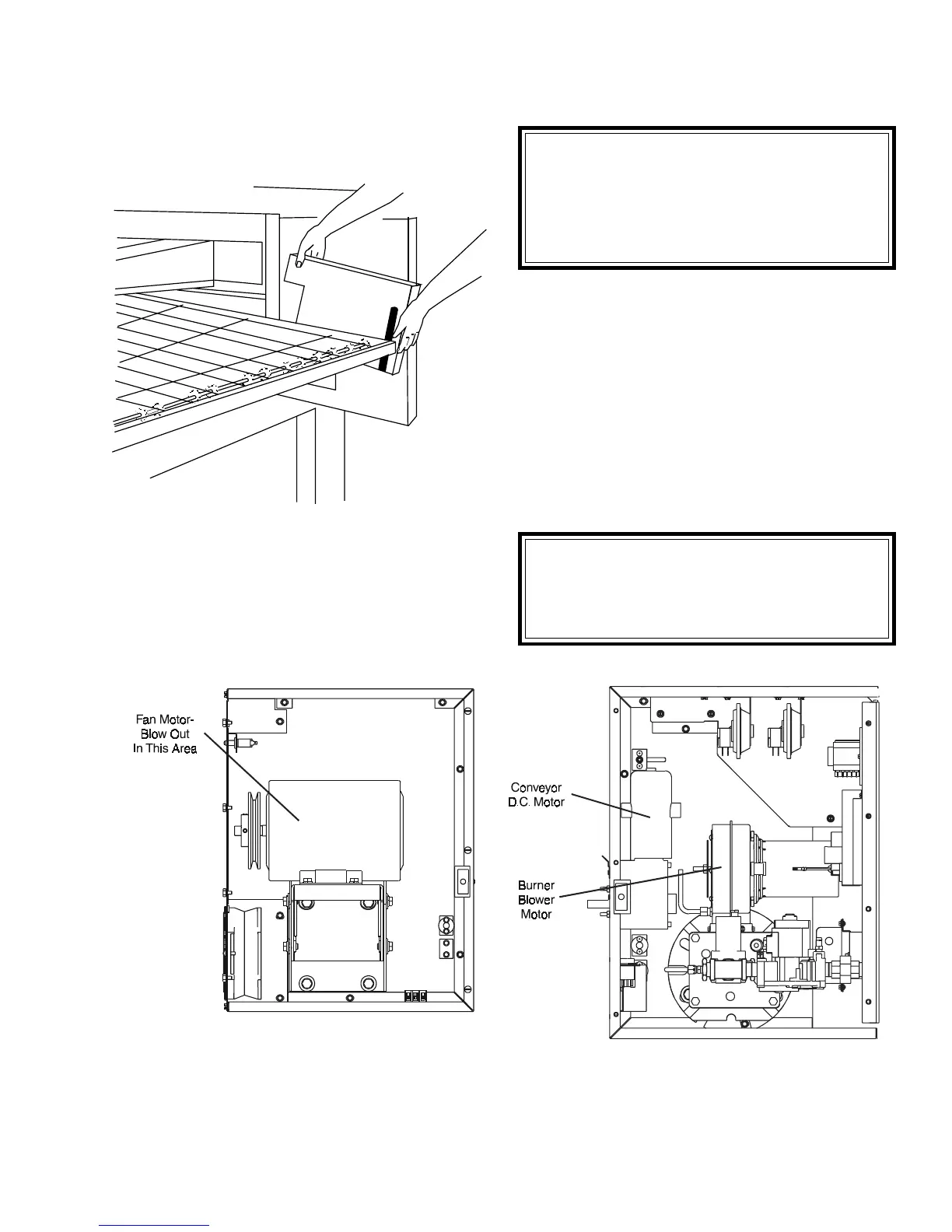
A. Cleaning the Blower/Fan Motor
To gain access to the blower/fan motor, open the control
cabinet door by removing the three screws. Clean the
motor, burner blower motor, the conveyor drive motor and
the surrounding area, using either compressed air or CO
2
.
Thoroughly blow out the motor compartment and vents
inside the motor (Figure 4-38). Failure to do this can cause
premature failure of blower fan motor.
CAUTION
Not cleaning the blower/fan motor properly can
cause premature failure.
Figure 4-38.

Table of Contents

Related product manuals