EasyManua.ls Logo

Middleby Marshall PS540 (Double) - Page 56

Middleby Marshall PS540 (Double)
72 pages
Print Icon
To Next Page IconTo Next Page
To Next Page IconTo Next Page
To Previous Page IconTo Previous Page
To Previous Page IconTo Previous Page
Loading...
52
ENGLISH
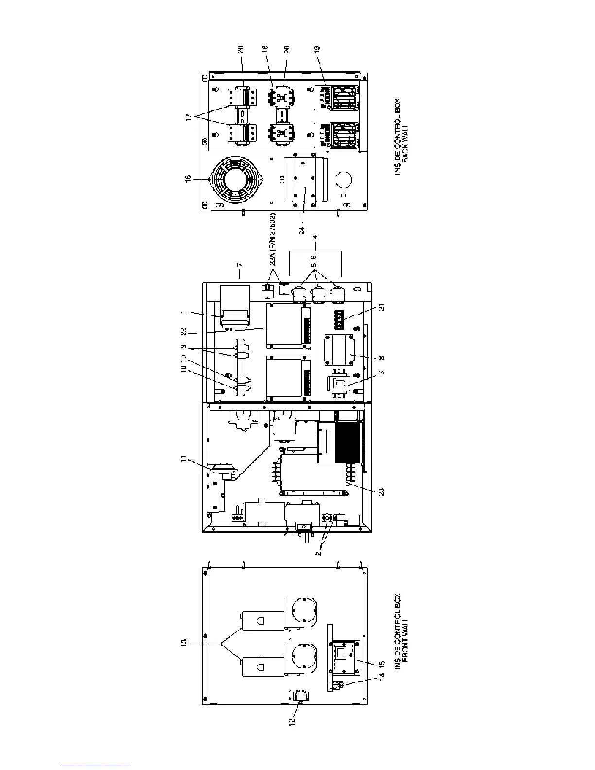
SECTION 6
PARTS LIST

Table of Contents

Related product manuals