EasyManua.ls Logo

Midea MLCAC-UTSM-2010-10 - Page 95

Midea MLCAC-UTSM-2010-10
95 pages
Print Icon
To Previous Page IconTo Previous Page
To Previous Page IconTo Previous Page
Loading...
MLCAC-UTSM-2010-10 Controller
Control 113
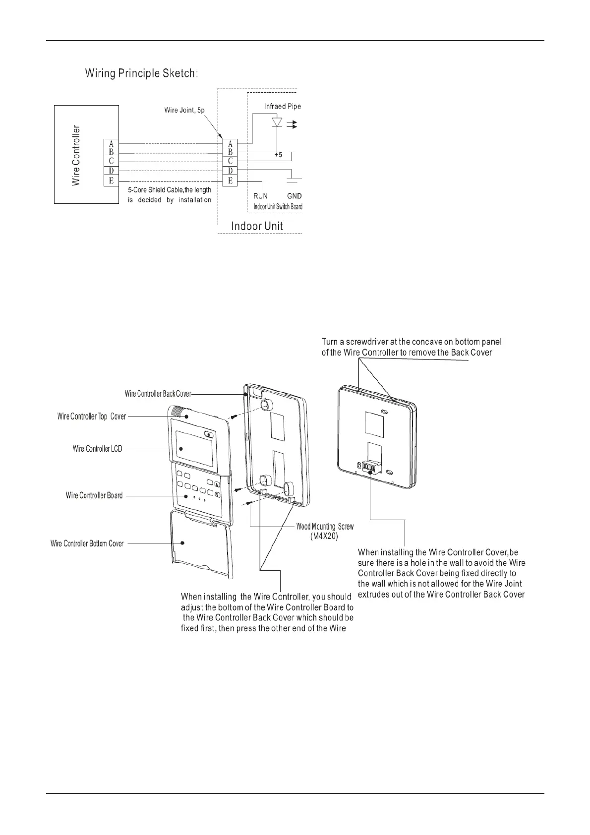
Installation
Installation Notice:
When the air conditioner needs the constant frequency wire Controller, be sure adding a Wire Joint with 5
terminal named A, B, C, D, E in indoor unit, and fixing a infrared emitter whose anode and cathode
connecting with A and B near the receiver in the Indoor Unit Switch Board, then connecting the terminal +5v,
GND, Run in the Switch Board to C,D,E respectively.
NOTE
Never turn screws too tightly, or else the cover would be dented or the Liquid Crystal breaks.
Please leave enough long cable for maintenance of the Wire Controller Board.

Related product manuals