EasyManua.ls Logo

Midea MTB1T-96CWN1 - Page 106

Midea MTB1T-96CWN1
111 pages
Print Icon
To Next Page IconTo Next Page
To Next Page IconTo Next Page
To Previous Page IconTo Previous Page
To Previous Page IconTo Previous Page
Loading...
Midea R410A T3 50Hz Top-discharge Series MCAC-UTSM-201707
105
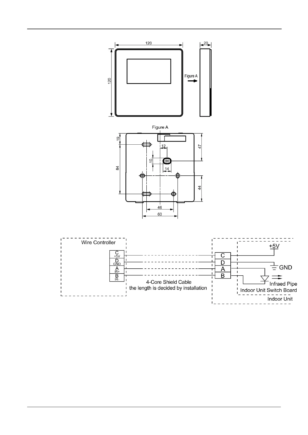
2. Wiring principle sketch:
3. Wiring figure:
Connect two terminals of embedded 4-core shielding wire with the switching wires of
wired controller and signal receiving board. Make sure the sequence of 4 terminals (A,
B, C and D) should correspond to the wire sequence of signal switching wires (A, B, C
and D).

Related product manuals