EasyManua.ls Logo

Midea MV6-R450WV2GN1 - MS04;MS06 Wiring Diagram

Midea MV6-R450WV2GN1
167 pages
Print Icon
To Next Page IconTo Next Page
To Next Page IconTo Next Page
To Previous Page IconTo Previous Page
To Previous Page IconTo Previous Page
Loading...
V6R VRF 50/60Hz
80
Midea V6R Series Service Manual
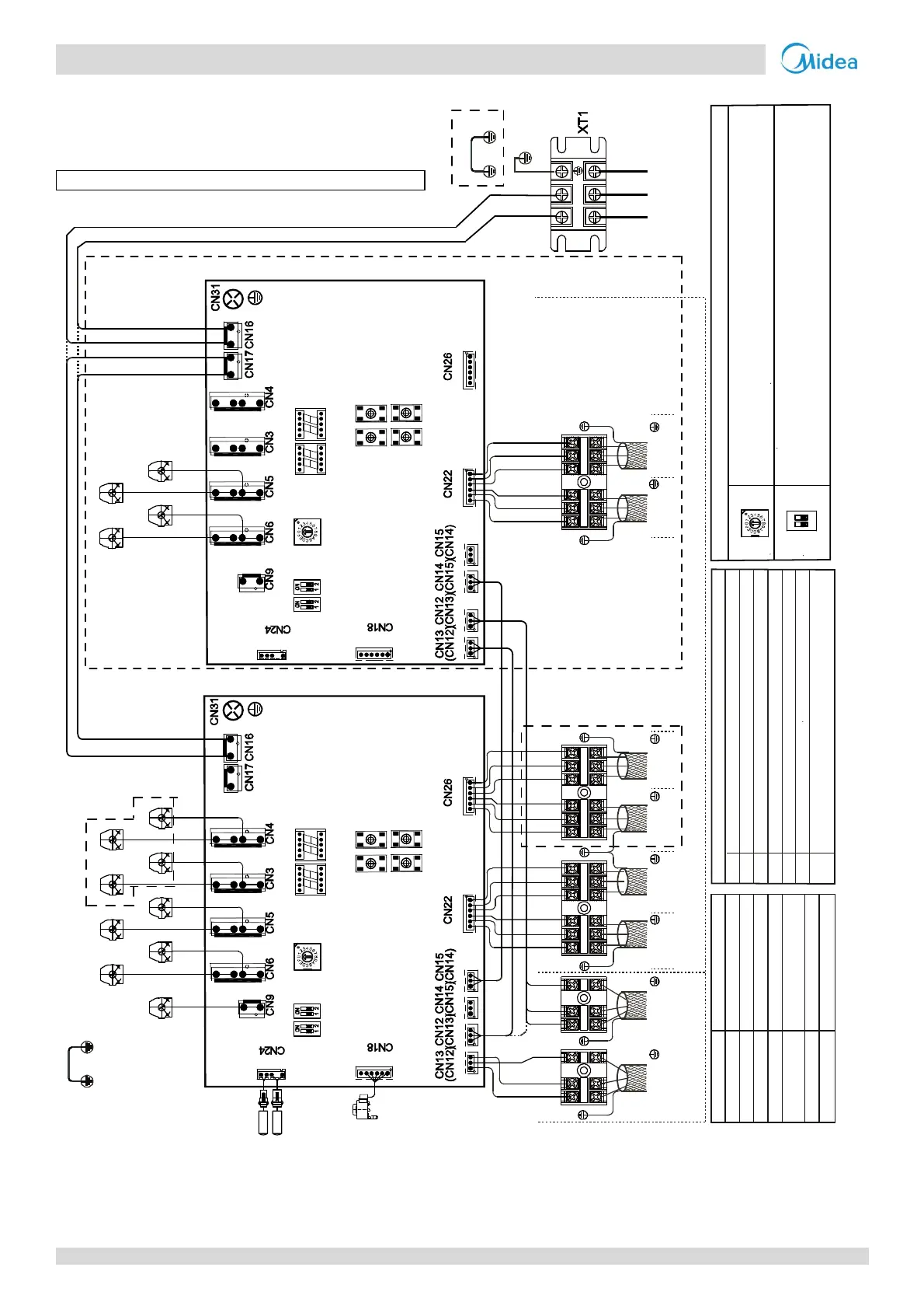
Figure57.3:MS04/MS06wiringdiagram

Indoor No.5
M-O
M-O
1(M-I)2(M-I) 3(M-I)4(M-I)
SW1SW2
DSP1
DSP2
Brown
Red
White
Blue
Indoor No.6
SW3SW4
M-M M-M
P Q E P Q E
LN
SVP
T1C1
Power in
To outdoor or MS units
communication bus
To indoor units communication bus
 Outdoor
/Upstream MS
Downstream MS
T2C2
Blue
Red
Blue
Red
G/Y
Ye l l ow
Gray
XS2
XS1
XP2
XP1
Gray
Ye l l ow
Blue
The wiring picture shown is for reference onl y, actual product may var y.
Guide for main control panel dial code
CODE NAME
XT1 Terminal block
XS1XS2
Connectors
XP1XP2
Connectors
T1C1T2C2 Temperature sensor
SV#A-X, SV#B-X
SVP
EEVA Electronic expansion valve
Solenoid valve
P Q E
DSP1 and DSP2 display content
E3
Communication between master and slave control boards
failed
Malfunction of subcooler outlet thermistor(T1C1)
E4 Malfunction of subcooler inlet thermistor(T1C2)
H0
Communication failure between MS and master outdoor unitE2
G/Y
LL
S1+S2 dialing setting error
FE
MS has no address when first powered on
ENC2
P Q E
POWER
SV1B-1 SV2B-2 SV3B-3 SV4B-4
SV1A-1 SV2A-2 SV3A-3 SV4A-4
SVP
Ye ll ow
Black
Ye ll ow
Black
Ye ll ow
Black
Ye ll ow
Black
Black
Black
Black
SV4
SV3
SV2
SV1
SV1B-5 SV2B-6
SV1A-5 SV2A-6
SVP
Ye l l ow
Black
Ye l l ow
Black
SV2
SV1
EEVA
Indoor No.1
M-O
M-O
1(M-I)2(M-I) 3(M-I)4(M-I)
SW1SW2
DSP1
DSP2
EEV_A
T1C1
T2C2
Brown
Red
Green
Black
Green
Black
Green
White
Blue
Brown
Red
White
Blue
Indoor No.2 Indoor No.3Indoor No.4
S1 S2
ONON
SW3SW4
ENC2(0)
M-M
M-M
P Q E P Q E P Q E P Q E
S1:11 means synchronous control for 2 ports
(First PCB is port 1 and 2, Second PCB is port 5 and 6, third PCB is port 9 and
S2:11 means synchronous control for 2 ports
(First PCB is port 3 and 4, Second PCB is port 7 and 8, third PCB is port11 and 12)
S1/S2
ON
(00 is default)
Blue
Red
POWER
EEV_A
S1 S2
ONON
ENC2(1)
EEPROM errorE7
MS PCB number
(Factory setting, can’t be changed. 0 means the first PCB, 1 means the sec
o
PCB, 2 means the third PCB)
12
ON
T1C1
T2C2
G/Y

Table of Contents

Other manuals for Midea MV6-R450WV2GN1

Related product manuals