EasyManua.ls Logo

Miele PT 5136 - Direct Wall Connection

Miele PT 5136
56 pages
Print Icon
To Next Page IconTo Next Page
To Next Page IconTo Next Page
To Previous Page IconTo Previous Page
To Previous Page IconTo Previous Page
Loading...
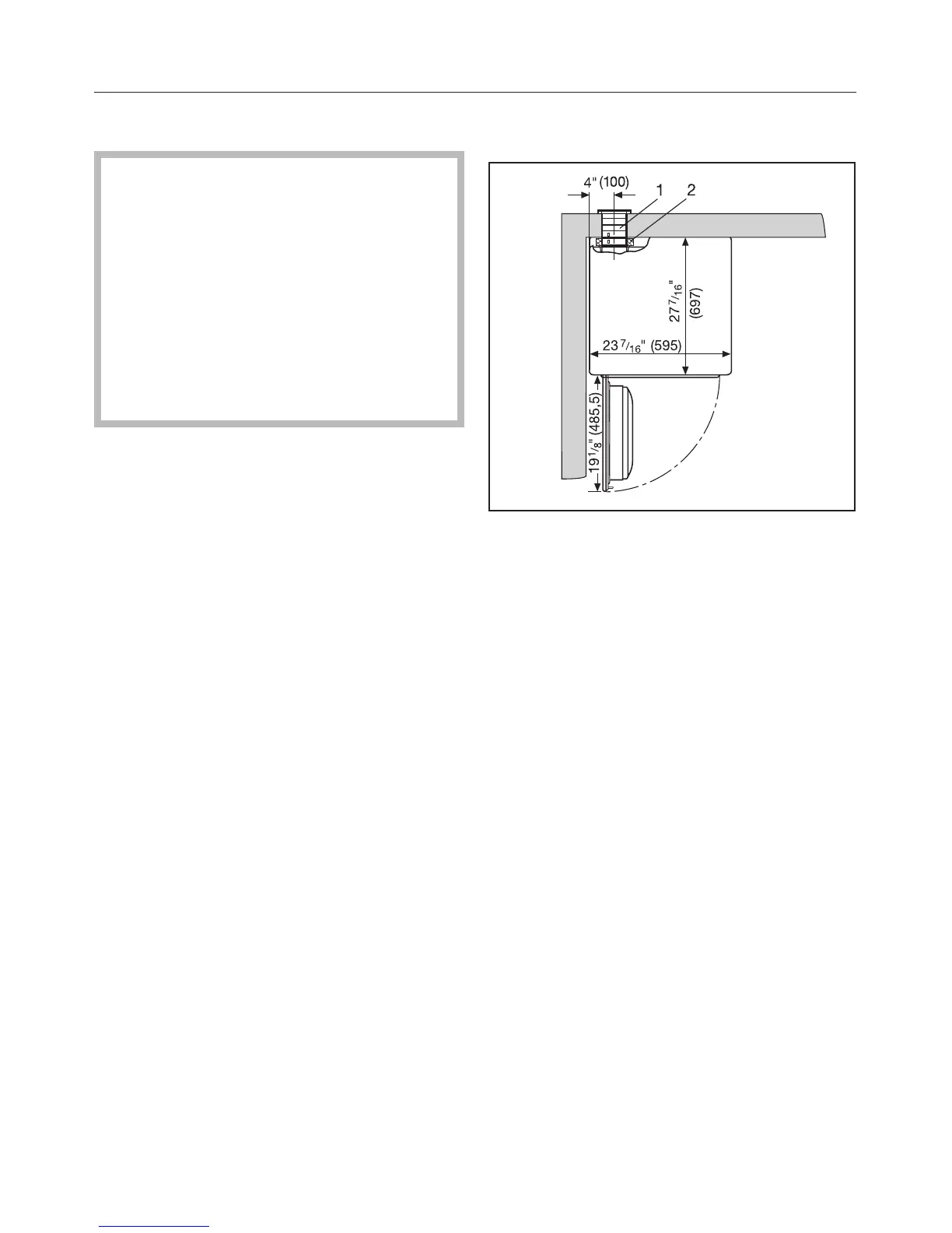
Direct wall connection
This venting type is ideal if the dryer
can be installed directly at an outer
wall. The shorter the exhaust
ductwork, the more efficient the
dryer will be. However, for the wall
pipe to be installed a hole must be
cut through the outer wall.
Regard the Install manual for the
Miele wall pipe and the dimension
illustrations below.
Necessary materials:
wall pipe (optional accessory)
a flexible spacer ring (optional
accessory)
Dryer top view
1 Wall pipe
2 Flexible foam gasket (space ring)
Installation of exhaust venting
43

Other manuals for Miele PT 5136

Related product manuals