EasyManua.ls Logo

Mitsubishi Electric A173UHCPU

Mitsubishi Electric A173UHCPU
389 pages
To Next Page IconTo Next Page
To Next Page IconTo Next Page
To Previous Page IconTo Previous Page
To Previous Page IconTo Previous Page
Loading...
APPENDICES
APP 42
Device
number
Signal name
Signal
direction
Refresh cycle Fetch cycle
M9073 PCPUWDT error flag
M9074 PCOU ready completion flag
M9075 Test mode flag
M9076 External rapid stop input flag
M9077 Manual pulse generator axis setting error flag
M9078 Test mode request error flag
M9079 Servo program setting error flag
PCPUSCPU END
POINTS
(1) All special relays, M, are turned OFF by turning the power, OFF,
performing latch clear, or resetting with the RESET key switch.
When the RUN key switch is set to "STOP", the special relay settings are
retained.
(2) The special relays marked "Note-1" in the table above remain "ON" even
after a return to normal. They must therefore be turned OFF by using one
of the following methods.
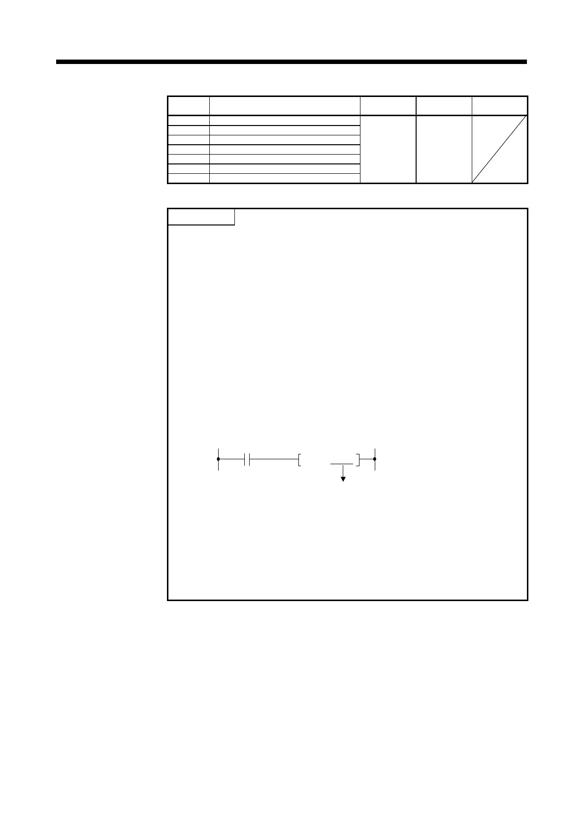
(a) Method using the user program
Insert the ladder block at right into the program and turn the reset
execution command contact ON to clear the special relay.
(b) Method using a peripheral device
Perform a forced reset using the test function of the peripheral
device.
For details on this operation, refer to the manual for the peripheral
device.
(c) Turn the special relay OFF by setting the RESET key switch on the
front panel of the CPU module to "RESET".
Reset execution
command
Enter the special relay
to be reset here.
RST M9000
(3) The ON/OFF status of special relays marked "Note-2" in the table above
is controlled by the sequence program.
(4) The ON/OFF status of special really marks "Note-3"in the tables above is
controlled by the test mode for the peripheral device.
(5) The special relays marked "Note-4" are reset only when power is
switched from OFF to ON.

Table of Contents

Other manuals for Mitsubishi Electric A173UHCPU

Related product manuals