EasyManua.ls Logo

Mitsubishi Electric AJ65BT-D62 - Page 69

Mitsubishi Electric AJ65BT-D62
146 pages
To Next Page IconTo Next Page
To Next Page IconTo Next Page
To Previous Page IconTo Previous Page
To Previous Page IconTo Previous Page
Loading...
MELSEC-A
9. SELECTING AND EXECUTING THE COUNTER FUNCTION
9 - 2
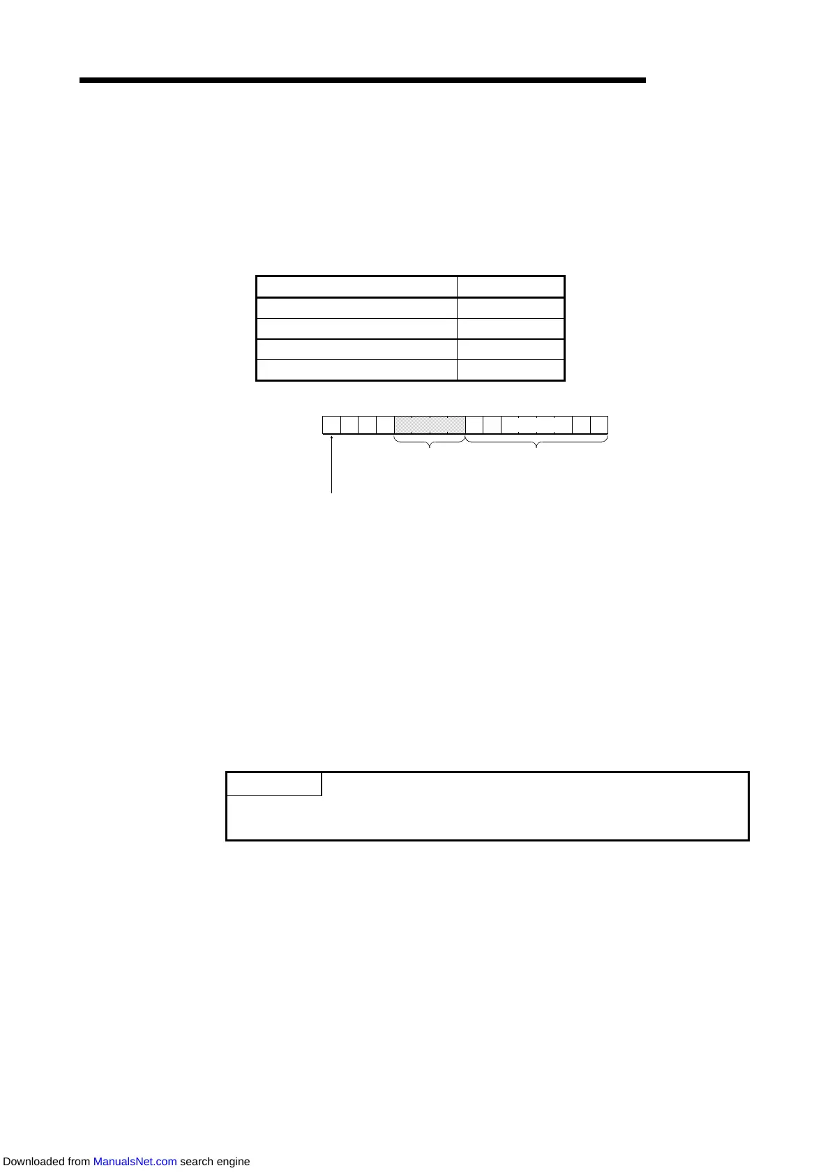
(1) Select any of the counter functions by writing a value to the lower 4 bits in the
upper bits of the remote register {address RWwm+2 (RWwm+A)}.
When the value set is other than the following set value, the initial value (count
disable function selection) is set.
However, when changing the counter function, make sure that the counter
function selection start command {RY(n+1)6 (RY(n+1)D)} and F.START terminal
are off.
Counter Function Selection Set Value
Count disable function 0H
Latch counter function 1H
Sampling counter function 2H
Periodic pulse counter function 3H
0 0 0 4 bits 8 bits
015
Pulse input mode register
(Refer to Sections 5.1, 5.2)
Counter function
selection register
External output hold
clear setting
(
Refer to Appendix 1
)
Address
RWwm+2(CH1)
RWwm+A(CH2)
Set in hexadecimal.
(2) A selected function can be executed using the counter function selection start
command {RY(n+1)6 (RY(n+1)D)} or the F.START terminal (external input). The
signal input earlier is prioritized.
(3) Set the time for the sampling counter function and periodic counter function
between 1 and 65535 in 10ms increments.
The unit of time is 10 [ms] and the precision is less than 1 count.
Example: When 420 is set to the sampling/interval time setting area {address
RWwm+5 (RWwm+D)}
420×10=4200[ms]
POINT
The sampling and interval time values are set to the same address of the remote
register, but the value set is that of the function selected.
Downloaded from ManualsNet.com search engine

Table of Contents

Related product manuals