EasyManua.ls Logo

Mitsubishi QD75P1N - Page 124

Mitsubishi QD75P1N
858 pages
To Next Page IconTo Next Page
To Next Page IconTo Next Page
To Previous Page IconTo Previous Page
To Previous Page IconTo Previous Page
Loading...
5 - 20
MELSEC-Q
5 DATA USED FOR POSITIONING CONTROL
However, the maximum value that can be set for this "movement amount per
rotation (Al)" parameter is 6553.5
μ
m (approx. 6.5mm). Set the "movement amount
per rotation (Al)" as shown below so that the "movement amount per rotation (AL)"
does not exceed this maximum value.
Movement amount per rotation (AL)
= PB
×
1/n
= Movement amount per rotation (Al)
×
Unit magnification (Am)
Note) The unit magnification (Am) is a value of 1, 10, 100 or 1000. If the "PB
×
1/n" value exceeds 6553.5
μ
m, adjust with the unit magnification so that the
"movement amount per rotation (Al) " does not exceed 6553.5
μ
m.
Example 1)
When movement amount per rotation (AL) = PB
×
1/n = 6000.0
μ
m (= 6mm)
Movement amount per rotation (AL)
= Movement amount per rotation (Al)
×
Unit magnification (Am)
= 6000.0
μ
m
×
1 time
Example 2)
When movement amount per rotation (AL) = PB
×
1/n = 60000.0
μ
m (= 60mm)
Movement amount per rotation (AL)
= Movement amount per rotation (Al)
×
Unit magnification (Am)
= 6000.0
μ
m
×
10 times
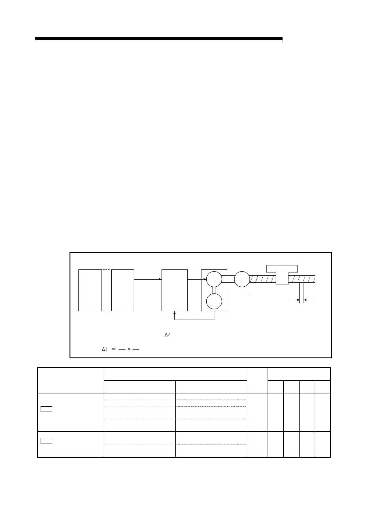
CPU
module
QD75
Workpiece
MG
Programmable controller Servo amplifier Servomotor
Reduction gears
1
n
Encoder
Pf
PB
PB
Pf
Movement amount per pulse
[mm/pulse]
1
n
PB: Worm gear lead (mm/rev)
1/n: Deceleration ratio
Pf: Number of pulses from encoder (pulse/rev)
Setting value, setting range
Setting value buffer memory
address
Item
Value set with peripheral device
Value set with sequence
program
Default
value
Axis 1 Axis 2 Axis 3 Axis 4
0 : PULSE/SIGN mode 0
1 : CW/CCW mode 1
2 : A phase/B phase
(multiple of 4)
2
Pr.5
Pulse output mode
3 : A phase/B phase
(multiple of 1)
3
1 4 154 304 454
0 : Current value increment with
forward run pulse output
0
Pr.6
Rotation direction setting
1 : Current value increment with
reverse run pulse output
1
0 5 155 305 455

Table of Contents

Related product manuals