EasyManua.ls Logo

Mitsubishi QD75P1N - Page 188

Mitsubishi QD75P1N
858 pages
To Next Page IconTo Next Page
To Next Page IconTo Next Page
To Previous Page IconTo Previous Page
To Previous Page IconTo Previous Page
Loading...
5 - 84
MELSEC-Q
5 DATA USED FOR POSITIONING CONTROL
Storage item Storage details Reading the monitor value
Md.7
Error
judgment
[Storage details] This area stores the following results of the error judgment performed
upon starting:
BUSY start warning flag
Error flag
Error No.
[Reading the monitor value]
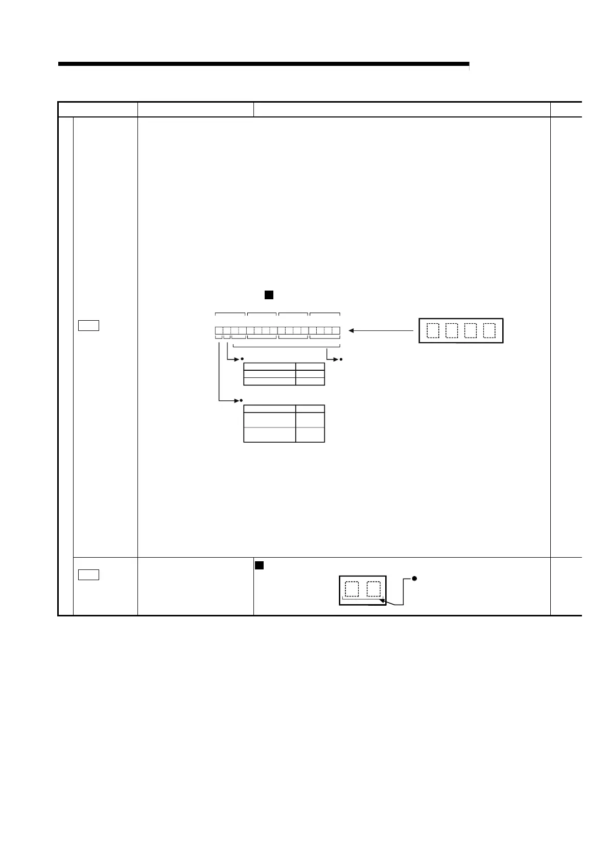
Monitoring is carried out with a hexadecimal display.
b15 b12 b8 b4 b0
ABCD
B
aC
D
Monitor value
D
C
B
A
Stored contents Storage value
0
1
Stored contents
Storage value
0
1
Buffer
memory
Error flag OFF
Error flag ON
BUSY start
warning OFF
BUSY start
warning ON
Convert the hexadecimal value "a, B, C, D" into a decimal value and
match it with "15.3 List of errors".
Error flag
BUSY start warning flag
Error No.
Starting history (Up to 16 records can be stored)
Md.8
Start history
pointer
Indicates a pointer No. that
is next to the Pointer No.
assigned to the latest of the
existing starting history
records.
Monitoring is carried out with a decimal display.
Monitor value
Storage value (Pointer number)
0 to 15

Table of Contents

Related product manuals