EasyManua.ls Logo

MOOV MR550 - Accessoires Fournis Avec Lunité; Aperçu de Lunité; Dimensions de Lappareil

MOOV MR550
49 pages
Print Icon
To Next Page IconTo Next Page
To Next Page IconTo Next Page
To Previous Page IconTo Previous Page
To Previous Page IconTo Previous Page
Loading...
80
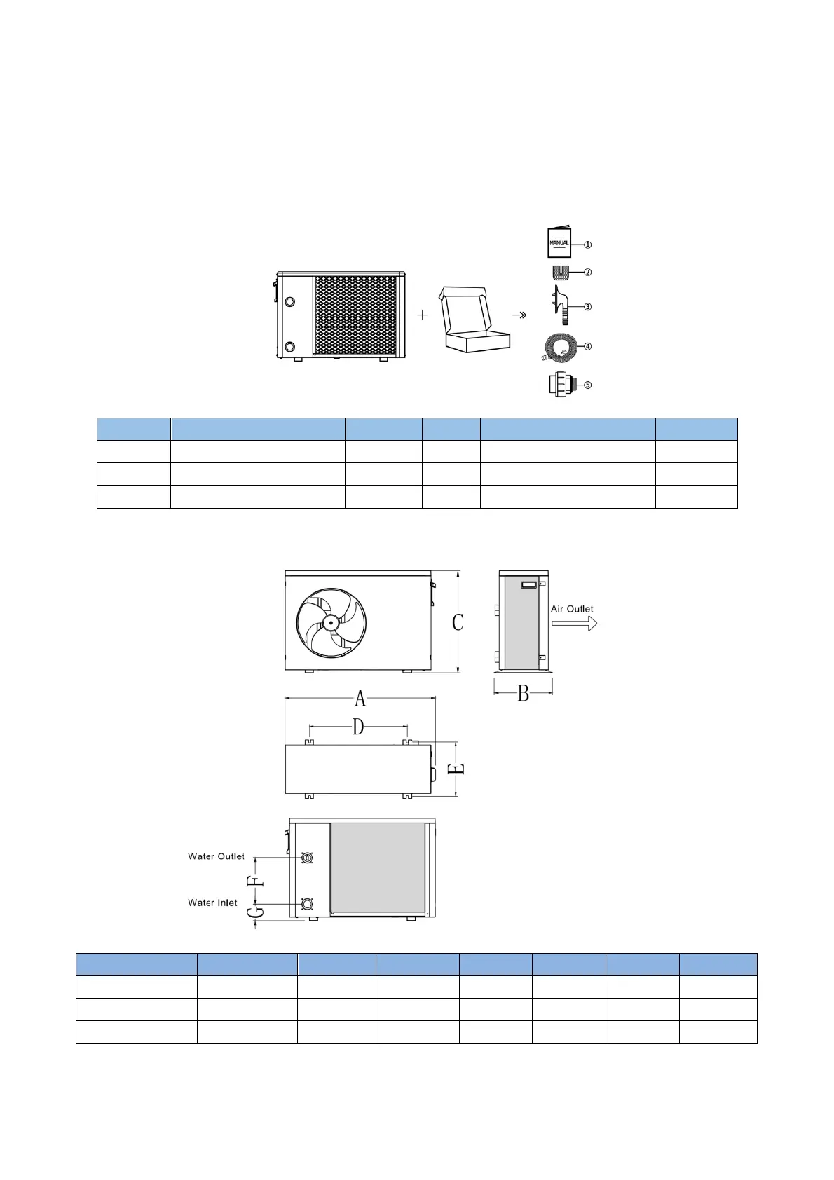
2. APERÇU DE L'UNITÉ
2.1 Accessoires fournis avec l'unité
Après le déballage, vérifiez que vous avez tous les composants suivants.
N °
Composants
Nombre
N °
Composants
Nombre
Manuel de l'utilisateur 1
Tuyaux de drainage 1
Pattes en caoutchouc 4
Raccords de tuyauterie 2
Joint de drain 1
2.2 Dimensions de l'appareil
Modèle
A
C
D
E
F
G
MR550
1000 400 660 681 373 380 98
MR650
1150 455 760 681 430 470 85
MR750
1150 455 760 681 430 470 85

Table of Contents