EasyManua.ls Logo

Morris C2 Contour - Contour Opener Hub

Morris C2 Contour
92 pages
Print Icon
To Next Page IconTo Next Page
To Next Page IconTo Next Page
To Previous Page IconTo Previous Page
To Previous Page IconTo Previous Page
Loading...
Maintenance
C2 Contour Air Drill August 2014 6-23
Wheel Bearings - Continued
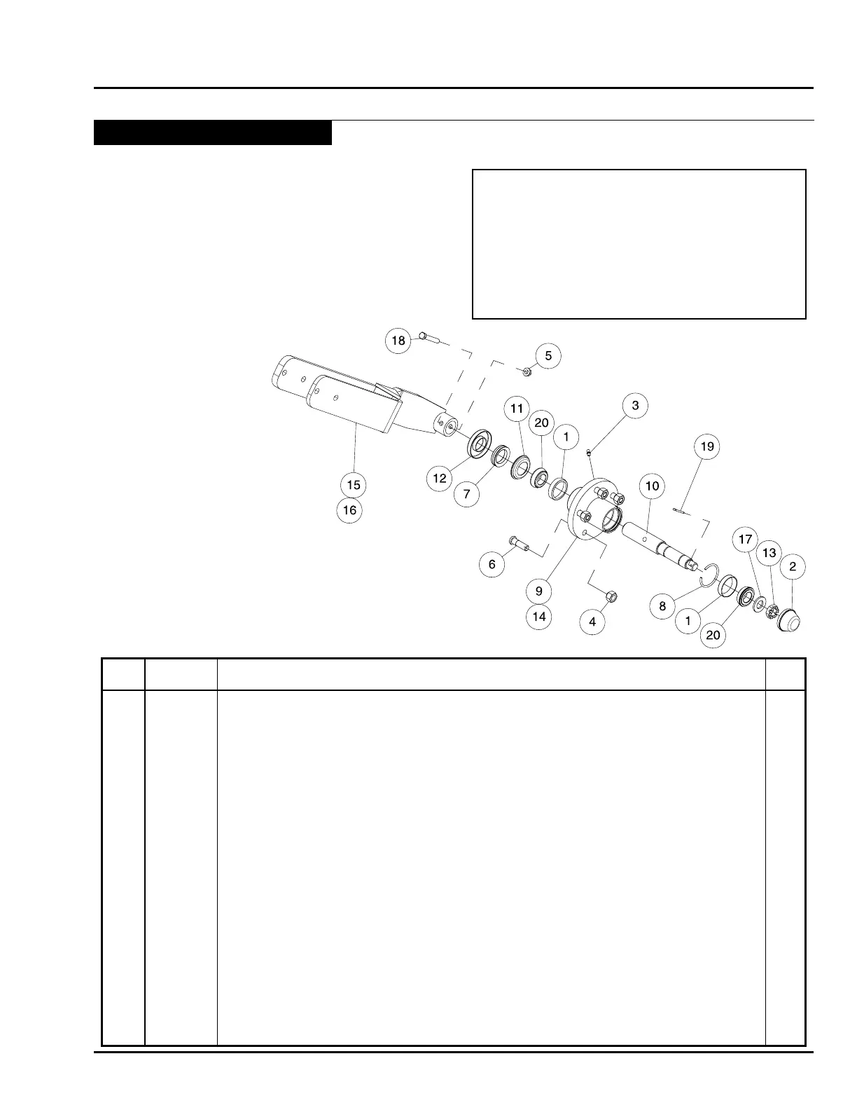
Contour Opener Hub
Position implement in eld position.
Move “System” ball valve to service position and
relieve all pressure from the accumulator circuit
using the tractor remote.
Shut tractor engine off and remove key. Engage park
brake before proceeding.
Place “Openers” ball valve into locked
position to prevent accidental oil ow to
openers.
Follow procedure
for hub removal and
bearing replacement
outlined under “Implement
Hub”.
Item Part No. Description Qty
1 N14009 Bearing Cup ...................................................................................................................... 2
2 N14011 Dust Cap .......................................................................................................................... 1
3 S-752 Grease Zerk - 1/4 ............................................................................................................. 1
4 S50246 Tapered Wheel Nut - 1/2-20 UNF ..................................................................................... 5
5 S27987 Center Lock Flange Lock Nut - 3/8 ................................................................................... 1
6 S50247 Press-In Wheel Stud - 1/2-20 UNF ................................................................................... 5
7 S48842 V-Seal - 1-1/4 Shaft .......................................................................................................... 1
8 S48843 Dust Cap Retaining Wire .................................................................................................. 1
9 S48844 Hub Casting - 1000 Lb - 5 Bolt ......................................................................................... 1
10 S48846 Spindle - 1-1/4 Dia ............................................................................................................ 1
11 S48847 Seal Counterface .............................................................................................................. 1
12 S48848 Seal Retainer .................................................................................................................... 1
13 S48849 Slotted Jam Nut - 3/4 ........................................................................................................ 1
14 S48850 Packer Hub Assy .............................................................................................................. 1
15 S49299 Packer Arm ....................................................................................................................... 1
16 S49500 Packer Arm Sub-Assy ....................................................................................................... 1
17 W-476 Flat Washer - 3/4 .............................................................................................................. 1
18 W-479 Hex Bolt - 3/8 x 2 1/4 Lg ................................................................................................... 1
19 W-529 Cotter Pin - 1/8 x 1 Lg....................................................................................................... 1
20 W-4187 Bearing Cone ................................................................................................................... 2
Important
Check wheel bearings for play every
5,000 acres (2,000 hectares)
or yearly, which ever occurs first.
Tighten as required.

Table of Contents

Related product manuals