EasyManua.ls Logo

MTA NGSi 07 - Mod. NGSI 15; Double Setpoint Kit (Optional Accessory)

MTA NGSi 07
58 pages
Print Icon
To Next Page IconTo Next Page
To Next Page IconTo Next Page
To Previous Page IconTo Previous Page
To Previous Page IconTo Previous Page
Loading...
TECHNICAL MANUAL
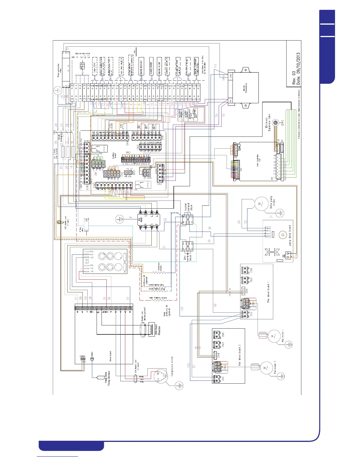
Chapter 19 - Electric wiring diagrams
NGSi 05÷15
49
ENGLISH
EN
The data in this manual are not binding and they can be modified by the manufacturer without notice. Reproduction of this manual is strictly prohibited
19.3 Mod. NGSi 15
(*) It is necessary to setting the correct
parameters. Possible other resource configurations.
(**) Digital outputs are not available if it is
present AK version.

Table of Contents

Related product manuals