EasyManua.ls Logo

Nibe S1256 - Page 18

Nibe S1256
88 pages
To Next Page IconTo Next Page
To Next Page IconTo Next Page
To Previous Page IconTo Previous Page
To Previous Page IconTo Previous Page
Loading...
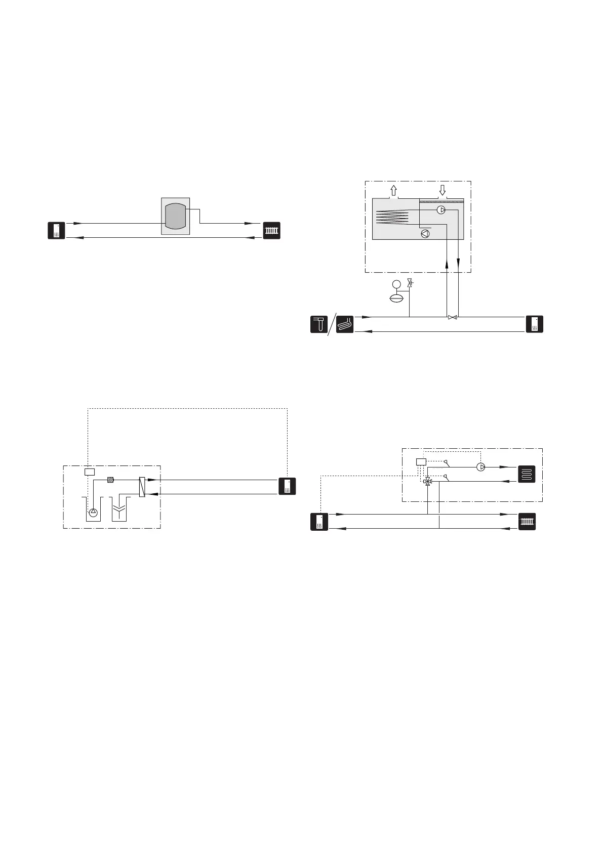
BUFFER VESSEL (UKV)
UKV is an accumulator tank that is suitable for connection
to a heat pump or another external heat source, and can
have several different applications.
For further information, see the Installer Manual for the ac-
cessory.
Volume
A 2-pipe-connected buffer vessel is used when the system
volume in the climate system is less than the minimum re-
commended volume for the heat pump.
GROUND WATER SYSTEM
An intermediate heat exchanger is used to protect the heat
pump’s exchanger from dirt. The water is released into a
buried infiltration unit or a drilled well. The circuit between
the heat pump and the intermediate heat exchanger must
be mixed with antifreeze. See "Possible selections for AUX
output" for more information about connecting a groundwa-
ter pump.
If this docking alternative is used, "min. brine out" in menu
7.1.2.8 "br pmp al set." must be changed to a suitable value
to prevent freezing of the heat exchanger.
-EP12-GP3
-EP12-HQ40
-EP12-EP4
-EP12-AA25
-EP12
VENTILATION RECOVERY
The installation can be supplemented with the exhaust air
module NIBE FLM S45 to provide ventilation recovery.
Pipes and other cold surfaces must be insulated with dif-
fusion-proof material to prevent condensation.
The brine system must be supplied with a pressure expan-
sion vessel. If there is a level vessel this should be re-
placed.
P
EXTRA CLIMATE SYSTEM
In buildings with several climate systems that require differ-
ent supply temperatures, the accessory ECS 40/ECS 41 can
be connected.
A shunt valve then lowers the temperature to the underfloor
heating system, for example.
-EP21-GP10-EP21-BT2
-EP21-AA25
-EP21-BT3
-EP21-QN25
-EP21
NIBE S1256Chapter 4 | Pipe connections18

Related product manuals