EasyManua.ls Logo

Olympus CLV-180 - Power and Lamp Failures

Olympus CLV-180
81 pages
Print Icon
To Next Page IconTo Next Page
To Next Page IconTo Next Page
To Previous Page IconTo Previous Page
To Previous Page IconTo Previous Page
Loading...
TroubleshootingCLV-180
2-3
ISSUE1
2. Troubleshooting CLV-180
2-1 Power input failure
Incapable to input power
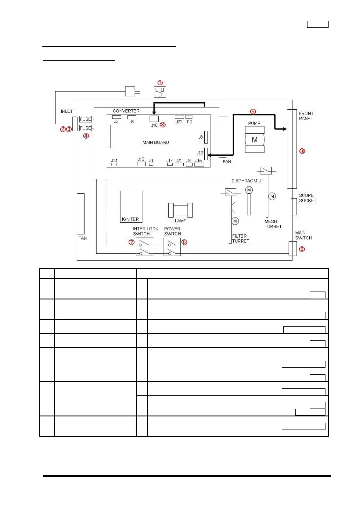
2-1-1 Block diagram
2-1-2 Estimated location of failure
No
Estimated failure location Inspection method
Input voltage 1
Verify the voltage of wall socket.
* Conformity with commercial power voltage standard.
Tester
Power Cable 1
Connect the Power Cable to wall socket and verify voltage at inlet side.
* Conformity with commercial power voltage standard.
Tester
Body Inlet Plug 1
Confirm that the inlet plug is not bend or distorted.
Visual inspection
Fuse 1
Confirm that the fuse was not burned out.
Tester
1
Confirm that the Power Switch inside the equipment is pushed when
the Main Switch on the Front Panel is pushed.
Visual Inspection
Power Switch
2
Confirm conductivity of the Power Switch when power is ON.
Tester
1
Confirm that the switch is pushed by the Lamp Door.
Visual Inspection
Interlock Switch
2
Confirm conductivity of the Interlock Switch when power is ON.
Tester
Interlock Jig
Flat Cable 1
Verify connection of the Flat Cable
Visual Inspection
Main Board (J12) <--> Front Panel

Related product manuals