EasyManua.ls Logo

Olympus CLV-180 - Filter Change Malfunction

Olympus CLV-180
81 pages
Print Icon
To Next Page IconTo Next Page
To Next Page IconTo Next Page
To Previous Page IconTo Previous Page
To Previous Page IconTo Previous Page
Loading...
TroubleshootingCLV-180
2-9
ISSUE1
Confirm that the output voltage of Main Board J17/Pin 1 conforms to
standards when changing air supply setting to L, M, and H.
Main Board J17/Pin 1
Air supply level: Output voltage
L: +5 V
M: +8 V
H: +12 V
Main Board /
Pump
1
YES Replace Pump
NO→ Main Board
2-9 Filter Change Malfunction
Turret Board not rotating when Mode Switch is pushed
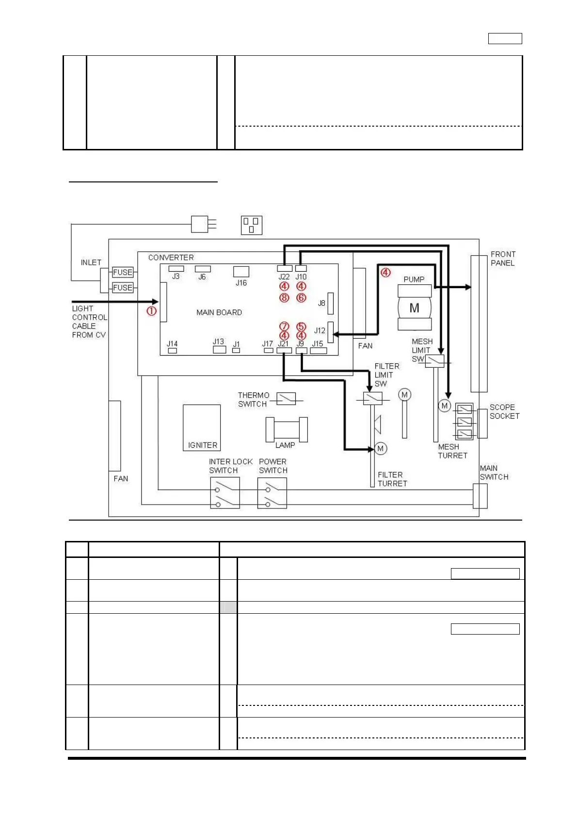
2-9-1 Block diagram
2-9-2 Estimated location of failure
No
Estimated location failure Inspection Method
Light Source Cable 1
Verify connection of CV and Light Source Cable (MAJ-1411).
Visual Inspection
Scope /
Camera Head
1
Confirm that scope or camera head is compatible with special light.
Panel Lamp failure 1
Refer to 2-13
Harness 1
Verify connection of Harness.
Visual Inspection
Main Board (J22) <--> Mesh Turret Unit
Main Board (J21) <--> Filter Turret Unit
Main Board (J10) <--> Mesh Limit Switch Unit
Main Board (J9) <--> Filter Limit Switch Unit
Main Board (J12) <--> Front Panel
Confirm that J9/Pin 1 change to LOW when Filter Limit Switch is
pushed.
Filter Limit Switch 1
NO Replace Filter Limit Switch
Confirm that J10/Pin 1 change to LOW when Mesh Limit Switch is
pushed.
Mesh Limit Switch 1
NO Replace Mesh Limit Switch

Related product manuals