EasyManua.ls Logo

Olympus CLV-180 - Outgoing Light Failure; Manual Brightness Failure

Olympus CLV-180
81 pages
Print Icon
To Next Page IconTo Next Page
To Next Page IconTo Next Page
To Previous Page IconTo Previous Page
To Previous Page IconTo Previous Page
Loading...
TroubleshootingCLV-180
2-11
ISSUE1
2-10 Outgoing light failure
No light going out from Scope
2-10-1 Estimated location of failure
No
Estimated location failure Inspection Method
Scope 1
Confirm that Scope is a compatible one.
Power input failure Refer to 2-1
Lamp failure Refer to 2-2
Filter change malfunction Refer to 2-9
Manual Brightness failure Refer to 2-11
2-11 Manual Brightness failure
View field is dark or excessively light.
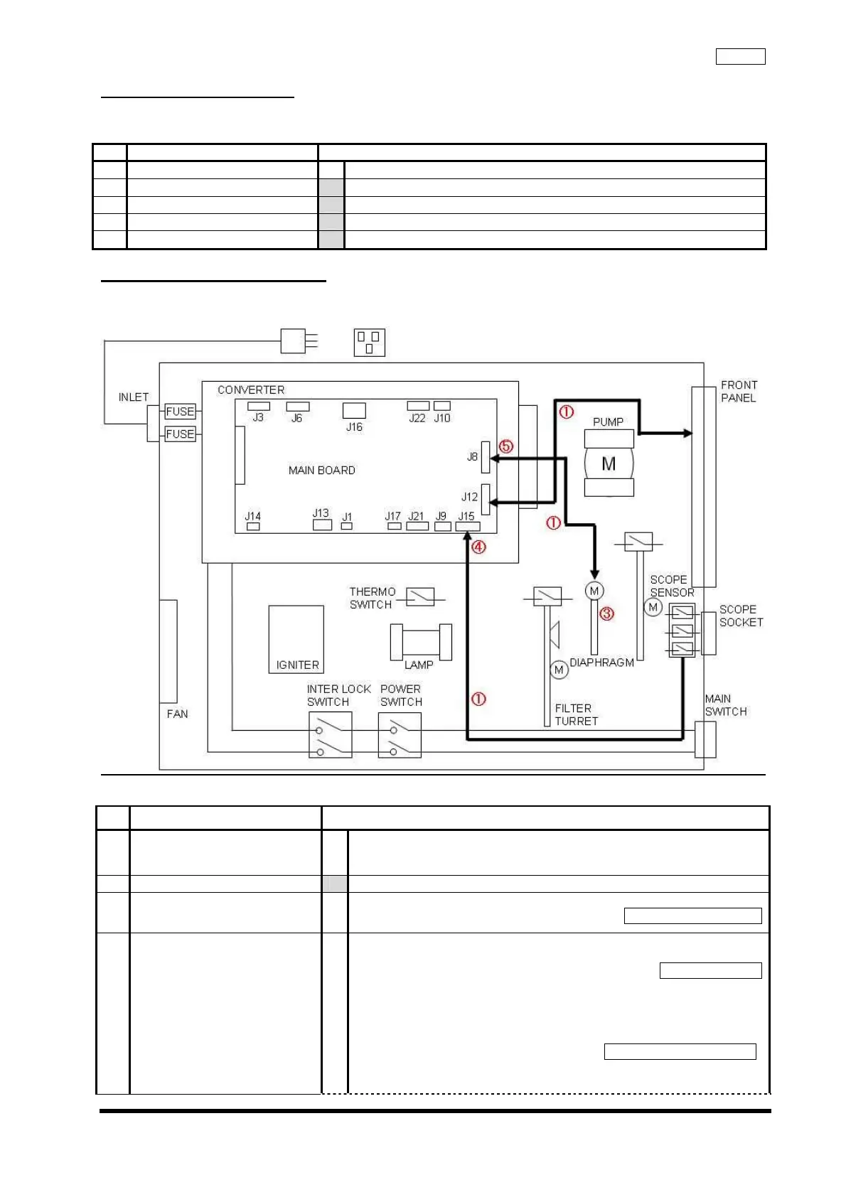
2-11-1 Block diagram
2-11-2 Estimated location of failure
No
Estimated location failure Inspection Method
Harness 1
Verify connection of Harness.
Main Board (J12) -> Front Panel
Main Board (J8) -> Iris Unit
Panel light malfunction Refer to 2-13
Iris Unit 1
Confirm that Iris Unit is mounted without distortion or inclination.
Iris Wing Positioning Jig
Scope Sensor 1
Confirm the following status of Main Board at J15 when Scope Dummy
is connected to Scope Socket:
GI ScopeGI Scope Dummy
J15
Pin 2L
Pin 5H
Pin 8L
SP ScopeHeat Cover Positioning Jig
Pin 2L
Pin 5L

Related product manuals