EasyManua.ls Logo

Omega FMA 5400A - Page 48

Omega FMA 5400A
52 pages
Print Icon
To Next Page IconTo Next Page
To Next Page IconTo Next Page
To Previous Page IconTo Previous Page
To Previous Page IconTo Previous Page
Loading...
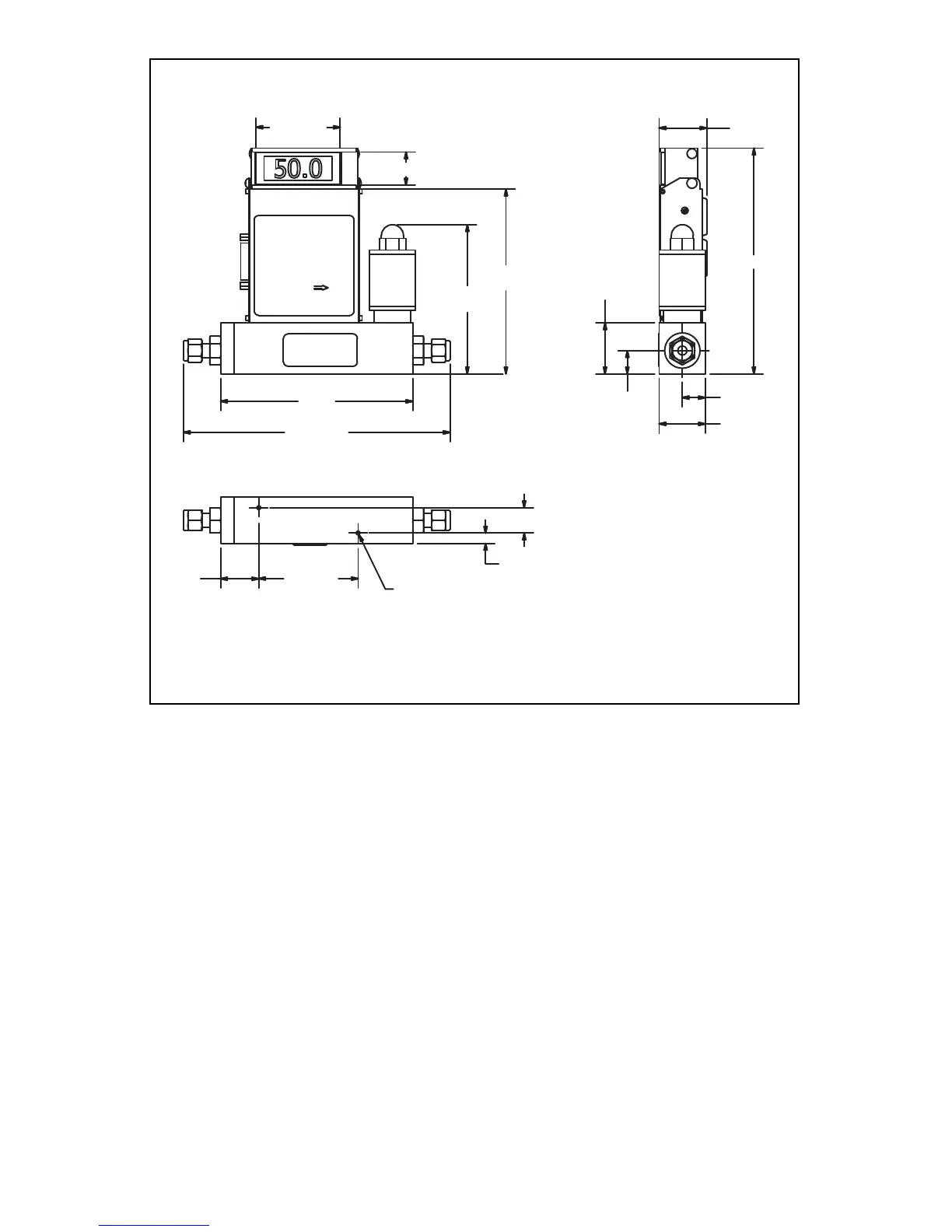
43
5.195
(132.0)
7.21 (183.1)
*7.33 (186.2)
2.38 (60.4)
0.95 (24.1)
4.03
(102.3)
4.99
(126.7)
1.25 (31.8)
0.63 (15.9)
0.63
(15.9)
1.29 (32.8)
6-32 UNC - 2B 0.09
0.28 (7.1)
0.69 (17.5)
6.10 (154.9)
1.38 (34.9)
1.03
(26.2)
2.69 (68.3)
SERIES MAX FLOW 15 - 100 L/min MASS FLOW CONTROLLER
NOTE: OMEGA reserves the right to change designs and dimensions at its sole discretion at any time
without notice. For certified dimensions please contact OMEGA.

Table of Contents

Related product manuals