EasyManua.ls Logo

Omron V7 - Page 77

Omron V7
162 pages
Go to English
Print Icon
To Next Page IconTo Next Page
To Next Page IconTo Next Page
To Previous Page IconTo Previous Page
To Previous Page IconTo Previous Page
Loading...
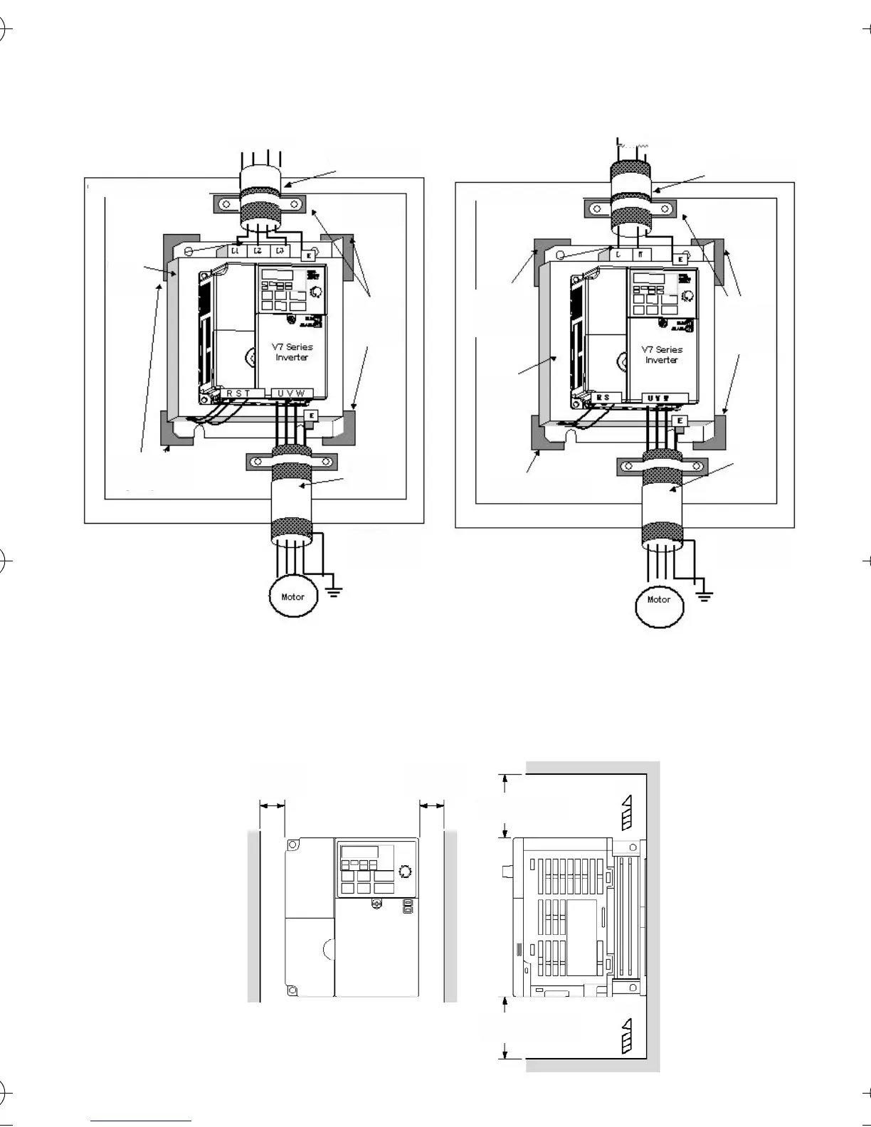
FR-4
30 mm*
ou plus
30 mm*
ou plus
100 mm
ou plus
100 mm
ou plus
AIR
AIR
*: Taille du variateur 5,5 / 7,5 kW espace
min. 50 mm
Installation CEM
CIMR-V7AZ40P2 à 47P5 CIMR-V7AZB0P1 à B4P0
CIMR-V7AZ20P1 à 27P5
Dimensions de montage
Câble blindé
Protections
au sol
(enlevez
la peinture)
Câble
blindé
Plaque
de montage
en métal
L1 L2 L3 PE
Protections
au sol (enlevez
la peinture)
Filtre
Câble moteur
20 m max.
Panneau de commande
Câble blindé
Protections
au sol
(enlevez
la peinture)
Câble
blindé
Protections au sol
(enlevez la peinture)
Plaque
de montage
en métal
PE
N
Protections
au sol
(enlevez
la peinture)
Filtre
Câble moteur
20 m max.
Panneau de commande
I43-EN-01+V7+Quick_Guide.book Seite 4 Dienstag, 25. April 2006 8:56 08

Other manuals for Omron V7

Related product manuals