EasyManua.ls Logo

Onkyo TX-NR3030(B)

Onkyo TX-NR3030(B)
163 pages
To Next Page IconTo Next Page
To Next Page IconTo Next Page
To Previous Page IconTo Previous Page
To Previous Page IconTo Previous Page
Loading...
TITLE
APPROVCHECKDESIGN SHEET
DRAWING No.
+7VA
-7VA
SWMUT
AMUT1
12VRL
SWRLGND
SWRL
HPRL
PREMUT
102J
C4481
101J
C4421
101J
C4420
102J
C4480
C4431
47u50V
C4430
47u50V
C4411
470u 10V
C4441
47u50V
C4401
470u 10V
C4451
47u50V
C4450
47u50V
C4440
47u50V
P4400
AC3MAH2-AU-B
1
1
2
2
3
3
4
4
P4401
AC3MAH2-AU-B
1
1
2
2
3
3
4
4
Q4400
NJM4580M-D
OUT
7
-
6
+
5
+V
8
Q4401
NJM4580M-D
OUT
7
-
6
+
5
+V
8
Q4401
NJM4580M-D
OUT
1
-
2
+
3
-V
4
Q4400
NJM4580M-D
OUT
1
-
2
+
3
-V
4
R4460
220K
R4431
10k
R4450 10k
R4491
100
R4490
100
R4440
100k
R4451
10k
R4470
220K
R4430
10k
R4421
270
R4441
100k
R4401
10
R4461
220K
R4480
100
R4420
270
R4471
220K
R4481
100
R4411
10
P4410A
NSCT-3P874
1 2 3
R4442
120
R4443
120
R4446
120
R4447
120
R4445 47
Q4403
NC
R4444 47
Q4405
NC
Q4406
NC
Q4404
NC
R4449 47
Q4407
NC
R4448 47
Q4409
NC
Q4410
NC
Q4408
NC
*R4452
0
*R4453
0
*P5112B
NPLG-7P135
1234567
*RL4400
NRL-2P2A-DC12-207
1
3
9
45
12
10
8
*R4432
10k
*R4433
10k
*RL4401
NRL-2P2A-DC12-207
1
3
9
45
12
10
8
*R4434
10k
*R4435
10k
*D4400
1SS355
*C4402 104J
*Q4402
2SC2712-GR
*R4436
1k
*R4412
0
*R4413
0
*R4414
0
*R4415
0
*P4411A
NSCT-5P876
12345
102J
C4482
102J
C4483
*R4416
0
*R4417
0
*R4418
0*R4419
0
C4460
221J
C4470
221J
C4461
221J
C4471
221J
BLANCE_OUT
BLANCE_OUT
SW2
SW2
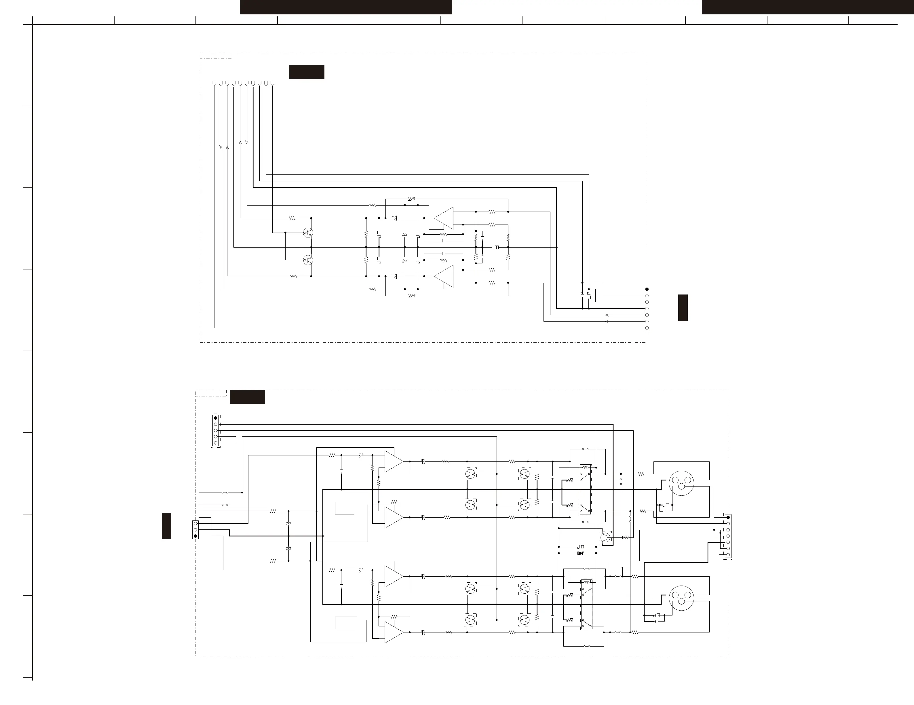
TX-NR1030,TX-NR3030,DTR-60.6,DTR-70.6,PR-SC5513
ASP SECTION
M.SAWAI K.TAKAHAMA C.WATARAI
2014/2/28
79
2014/2/28 2014/2/28
RC-203002
8
BAASP-1624
Preout model:FR
Preout model:FL
MODEL No. TX-NR1030,TX-NR3030,DTR-70.6,DTR-80.6,PR-SC5530,DHC-80.6 SCHEMATIC DIAGRAM (PART-5)
TITLE
APPROVCHECKDESIGN SHEET
DRAWING No.
TU_AUD_LIN
TU_AUD_RIN
-7VA
+7VA
TU_SCL
TU_SCL
TU_SCL
TU_SDA
TU_SDA
TU_SDA
+3.3VTU
+3.3VTU
GND_A
TU_MUT
GNDDG
GNDDG
GNDDG
TU_RIN
TU_LIN
101J
C4923
50V
C4915
NC
25V
C4924
NC
50V
C4914
NC
50V
C4932
NC
50V
101JC4912
50V
101J
C4913
50V
101JC4922
50V
470J
C4930
50V
C4925
NC
25V
470J
C4931
50V
C4911
220u 10V
C4921
220u 10V
C4910
22u50V
C4920
22u50V
P101B
NSCT-7P2100
1234567
Q4910
NE5532APSR
OUT
7
-
6
+
5
+V
8
Q4910
NE5532APSR
OUT
1
-
2
+
3
-V
4
GNDDG
-7VA
+3.3VTU
TU_SDA
TU_SCL
TU_MUT
TU_LIN
GND_A
+7VA
TU_RIN
R4916
1k
R492010
R4912
47k
R4911
220K
R4921
220K
R4910 10
R4928
NC
R4918
NC
R4922
47k
R4929
220
R4919
220
R491547kR492547k
R4924
47k
R4923
47k
R4914
47k
R4913
47k
R4926
1k
Q4921
RTAN430C-T112-1
Q4911
RTAN430C-T112-1
to TUNER PACK
SN 240169A (D/J Type)
SN 240170A (M Type)
TX-NR1030,TX-NR3030,DTR-60.6,DTR-70.6,PR-SC5513
ASP SECTION
M.SAWAI K.TAKAHAMA C.WATARAI
2014/3/27
792014/3/27 2014/3/27
RC-203002
7
BAASP-1624
MODEL No. TX-NR1030,TX-NR3030,DTR-70.6,DTR-80.6,PR-SC5530,DHC-80.6 SCHEMATIC DIAGRAM (PART-5)
U0120
to P101A
U0061
U0061
U0061
to P4410B
TX-NR1030/3030/DTR-60.6/70.6/PR-SC5530/DHC-80.6
TX-NR1030/3030/DTR-60.6/70.6/PR-SC5530/DHC-80.6
SCHEMATIC DIAGRAMS-07
AUDIO INPUT/OUTPUT SECTION
A
1
2
3
4
5
B C D E F G H
6
7
8
I J K

Related product manuals