EasyManua.ls Logo

Onkyo TX-SR602E

Onkyo TX-SR602E
119 pages
To Next Page IconTo Next Page
To Next Page IconTo Next Page
To Previous Page IconTo Previous Page
To Previous Page IconTo Previous Page
Loading...
TX-SR602/E
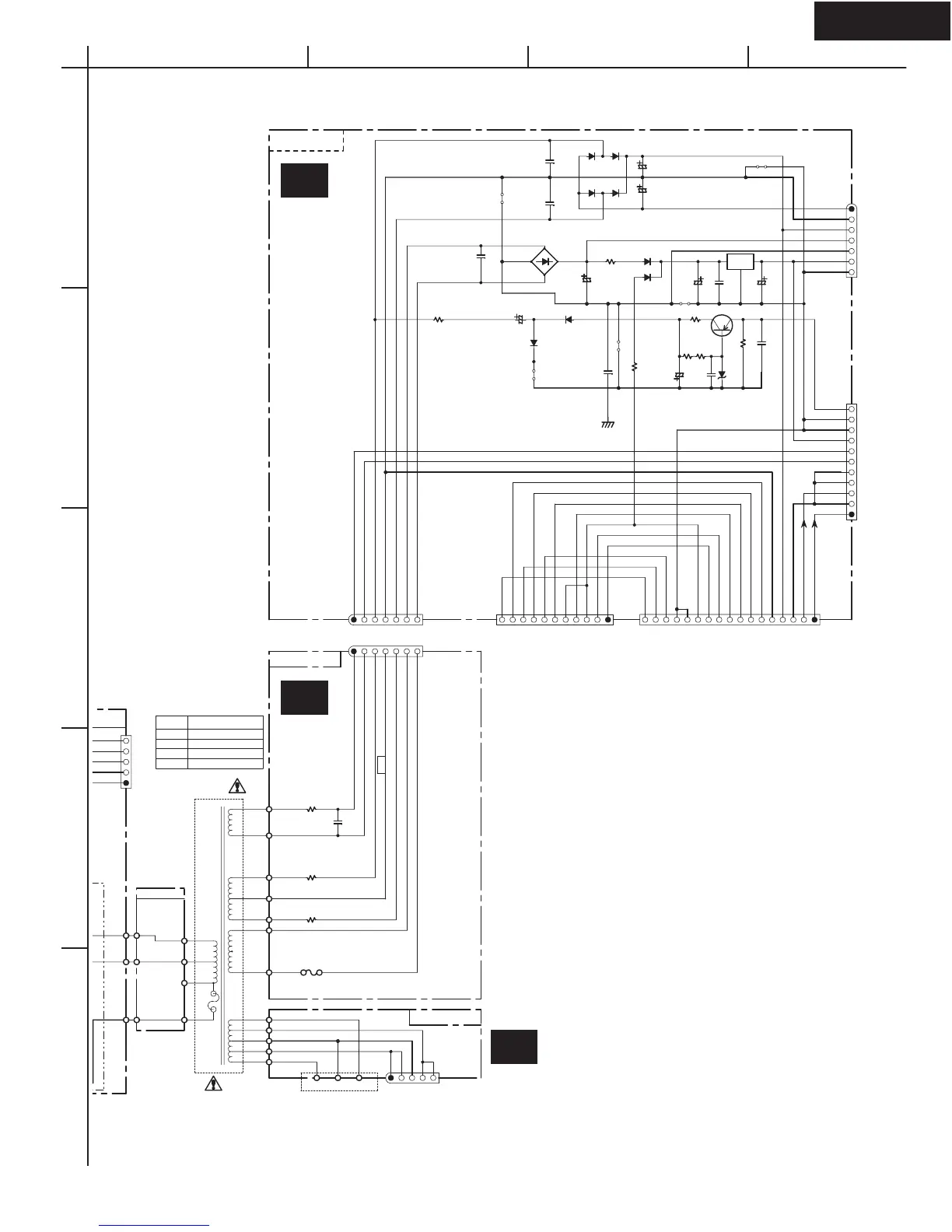
SCHEMATIC DIAGRAM 6
Power supply section
D:2.5A125V
F9501
P/G/W:T2.5AL250V
P7502B
NADIS-8406 (SCH. 7)
P6931A TO NAAR-8365
(SCH. 1)
P6953B TO NAAF-8397
(SCH. 4)
P931B
TO NAAF-8397
(SCH. 4)
C9016
223Z
C9015
223Z
C9012
223Z
D9004
D9003
D9010
RL1N4003
D9013
RL1N4003
D9009
RL1N4003
D9011
RL1N4003
D9002
D9001
D9001-9004:
RL1N4003
J9019
J9016
J9014
J9010
J9006
C9017
102J
C9005
334J
MMT
C9591
104J
C9002
334J
MMT
C9001
334J
MMT
23
R9594
2.2 (1/2W)
R9006
4.7
(1/2W)
R9592
1
(1/2W)
R9591
1
(1/2W)
R9001 0
C9010
4700/16
C9011
1000/25
C9009
220/35
C9014
470/63
C9013
10/16
C9003
1000/35
C9004
470/35
P995BP995A
TO NAAF-8397 (SCH. 4)
P995C
5
P912
P913
P911
P912A
P913A
P911A
3
1
7
8
9
10
11
12
14
15
16
17
18
19
13
R
,S
T901
THERMAL FUSE
JL6952B
TO NAAF-8397
(SCH. 4)
JL9501B
JL9502A
TO NAAR-8365
(SCH. 1)
JL9501A
R9007
0
(1/2W)
R9002 22
(1/2W)
R9005
33K
R9004
8.2K
R9003
8.2K
D9012
MTZJ27D
E9001
Q9002
KTA1266-GR
OR 2SA1015-GR
D9005
D3SBA20
Q9001
NJM78M56FA
TA78057S
G
I
O
-24V
S3GND
+24V
+12V
S2GND
+5.6V
MPUGND
-VP
MPUGND
MPUGND
+5.6V
FLAC1
FLAC2
E
HPR
E
HPL
FLAC1
FLAC2
SEC3-2
S3GND
SEC3-1
SEC2-2
SEC2-1
MPUGND
SPRLF
SPRLCS
S3GND
VOLH
+10VS
POWER
SEC1H
SPRLZ2
SPRLSB
+24V
E
HPR
HPL
SPRLCS
PRO
THRM
SPRLF
VOLH
SPRLSB
+10VS
SPRLZ2
+10VS
SEC1H
POWER
THRM
PRO
SS
VS
GND
FLAC2
GND
SEC2-2
FLAC1
SEC3-2
SEC3-1
SEC2-1
GND
ER
T901
MODEL
D NPT-1502D
P NPT-1502P
G NPT-1502DG
W
NPT-1502DG
NAETC-8384
382
NAETC-8398
NAETC-8390
NAPS-8389
25V
DESCRIPTION
A
1
2
3
4
5
BCD
U12
U13
U17

Other manuals for Onkyo TX-SR602E

Related product manuals