EasyManua.ls Logo

Panasonic CS-PC18GKF - Wiring Connection Diagram

Panasonic CS-PC18GKF
64 pages
Print Icon
To Next Page IconTo Next Page
To Next Page IconTo Next Page
To Previous Page IconTo Previous Page
To Previous Page IconTo Previous Page
Loading...
15
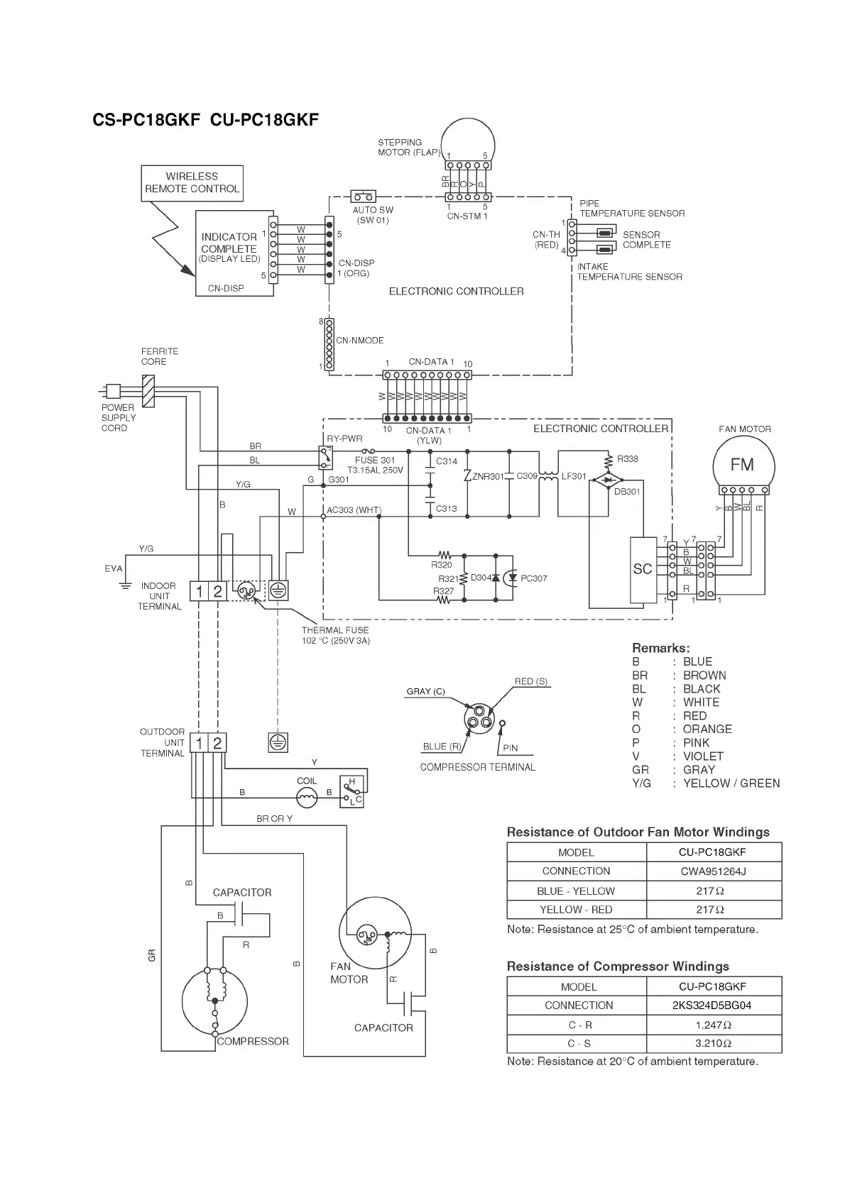
8 Wiring Connection Diagram

Related product manuals