EasyManua.ls Logo

Panasonic DMR-EH75VP

Panasonic DMR-EH75VP
237 pages
To Next Page IconTo Next Page
To Next Page IconTo Next Page
To Previous Page IconTo Previous Page
To Previous Page IconTo Previous Page
Loading...
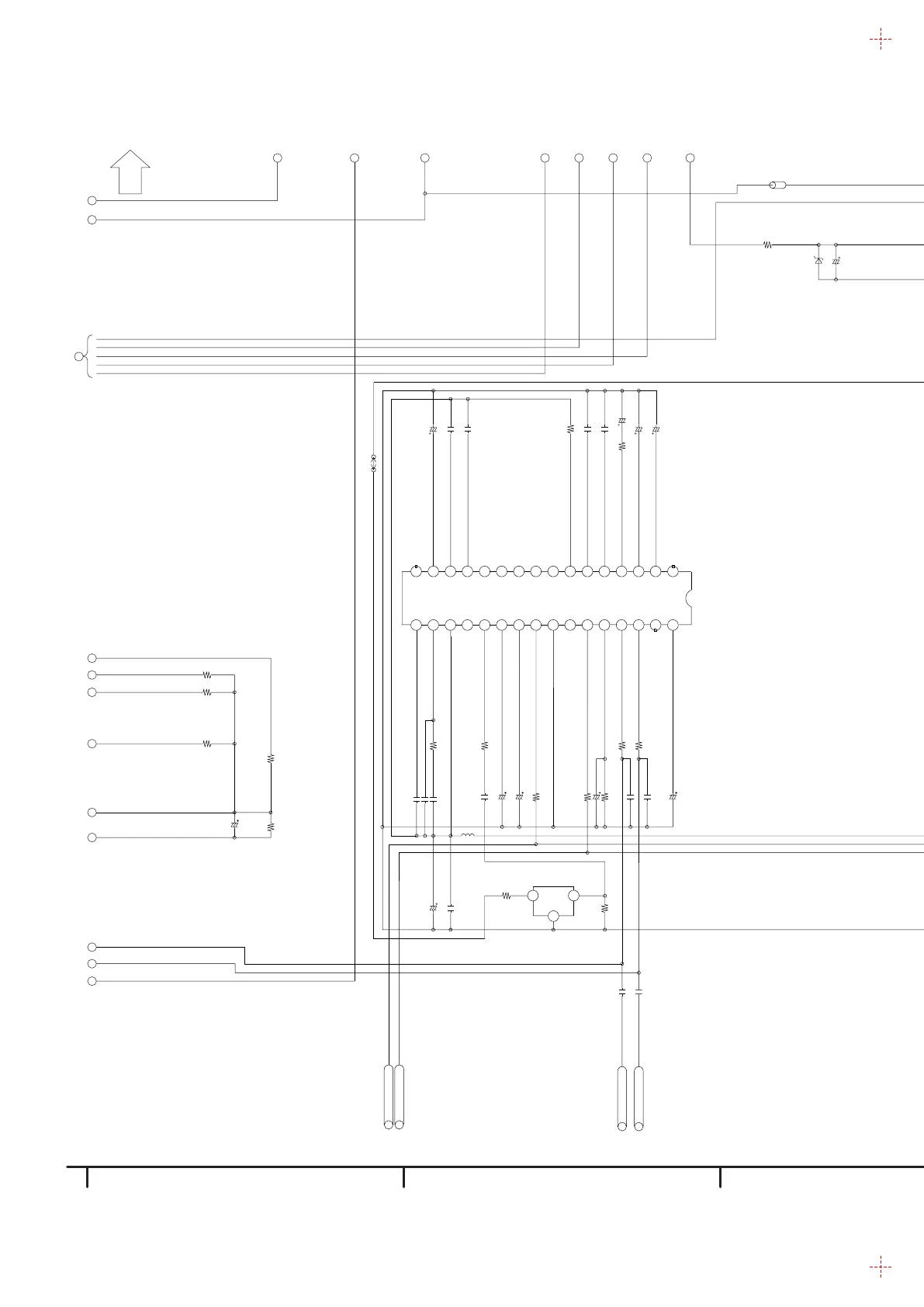
13.19. I/O Tuner Section (4/4) (Main P.C.B.(4/4)) Schematic Diagram (I)
TUN_V_IN1
1
2
C7423
0.01
1
2
LB7413
ERJ3GEY0R00V
1
2
K7407
C7422
0.01
2
1
C7421
6V47
10 8916 141518 17 1113 12
2
1
C7319
6V47
1
2
R7310
0
C7320
0.01
1
2
1K
R7311
L7301
VWJ0795=5
I2C5CK
I2C5DT
3
2
1
31
2
J0B4504AA026
FL7301
TUN_R
TUN_L
1
C7322
1
C7321
1
2
10V
ECJ2YB1A105KC7408
2
3
1
2SB1218A0L
Q7401
1
2
R7415
680
K7405
1
2
B0BA03000015
D7401
MAZ4300NMF
2
1
C7401
50V1
1
2
50V
0.01
C7406
1
2
6.3V
C7405 ECJ1VB0J105K
LB7407 ERJ3GEY0R00V
1
2
R7401 1K[D]
K7302
C7301
50V2R2
C7303 0.1
C7302
0.033
0R7302 C7306 50V3R3
C7308
16V10
C7307 50VR33
16V
C7305 0.1[KB]
R7301 10K
C7304 0.022
75 6
243
8
1
6 75
24 3
8
1
C0CBCDD00006
IC7402
R4840
1K
2
1
16V220[M]
C4834
C7318 50V2R2
R7307 180K
R7305 330[22]
R7309
330
R7304
0
R7303
3300
1
2
100KR4830
1
2
220KR4831
330
R7308
100KR4832
R4839
1K
18 20 22 24 26 28 30 3129272523211917
910 24687 5 31214
16 15 13 11
32
1
2625 27 2817 18 20 22 24232119
8 7 5616 15 10 91314 1112 3 12
30 3231
4
29
IC7301
AN5832SA-E1V
R7306
330[22]
C7309
0.33
C7311 0.22
C7310
0.1
C7314 50V2R2
50V4R7C7313
1
C7315 50V2R2
50V
1000PC7312
25V
0.022[KB]C7317
25V
C7316 0.022[KB]
1
2
K7411
1
2
ERJ3GEY0R00V
LB7403
AUDIOOUT
SIFOUT
BTL+30VIN
AFTOUT
[US]
V
VIDEOOUT
NC
NC
BT
SDA
IF OUT
SCL
NC
VO
or
NC
VIN
GND
NC
NC
PE
SDA
MODE
FOMO
ROUT
SCL/
LOUT
GND
WBDET
NC
WBTIME
L-R_REF
SPEFIL
SPEDET
AGCSW
I2C/PARA
SPETIME
AGCDET
PLL
VCC
PILOTDET
L+RREF
SAPDET
NC
INPUT
STEREO
REF
NOISEDET
MUTE
SIF/BB
SIFREF
CN
SOP-8D
CONT
NC
S
S
A
A
AD AE AF AG AH AI AJ AK AM AN AO AQ AT AU AV AW AX AY
1
2
4
5
6
7
8
9
11
12
13
3
109876
F
TO
I/O TUNER SECTION
(2/4)
NOTE:DO NOT USE THE PART NUMBER SHOWN ON THIS DRAWING FOR ORDERRING.
THE CORRECT PART NUMBER IS SHOWN IN THE PARTS LIST,AND MAY BE
SLIGHTLYDIFFERNT OR AMENDED SINCE THIS DRAWING WAS PREPARED.
DMR-EH75VP
I/O Tuner(4/4) Section
(Main P.C.B.(4/4))
Schematic Diagram(I)
LOCATION MAP
1/4 2/4
3/4 4/4
V:Video Section:(Page: )
C
A:VHS Audio Section:(Page: )
D
S:Syscon/Servo/Timer Section:(Page: )
I:I/O Tuner Section:(Page: )
E
F
88

Table of Contents

Related product manuals