R10102
100K
R10103
$(4700)
1000
R12201
ERX2SJR22E
R11301
R11102
ERG1SJ222E
2200[1W]
R10101
100K
$(27K)[D]
R12207
4700
R10104
22K
R13101
R13102
22K
D0BF685JA030
R11101
R10108
ERJ3GEY0R00V
680K
R10106
R14301
ERJ3GEY0R00V
R14302
33K
220K
R10110
56K
R14303
R14312
5600
R14308
470K[D]
27K[D]
R14307
470K[D]
R14305
27K[D]
R14304
R12206
330[G]
R12209
4700[G]
2200
R12204
R12208
18K[G]
R11304
22K[G]
12K[G]
R14211
R14209
1500[G]
R14210
36K[G]
10K
R11302
R12203
1000
2700
R12202
R14206
D1BDR027A135
ERDS2TJ471T
R11303
R14306
D1BDR027A135
430K[D]
R14310
47K[D]
R14309
56K[D]
R14311
R14202
16K[G]
R11308
*
R11309
*
R11306 15[22]
R11307 15[22]
C12201
$(0.1)
C13101
F1H1A105A028
10V
C11110
$[F0CAF223A021]
C11101
#F0CAF683A021
NotspecifiedDC
C11111
#F0CAF683A021
NotspecifiedDC
C11104
$[F0CAF223A021]
F1H1C104A071
C14305
16V
C14302
F1J1C1060001
16V
C14301
F1J1C1060001
16V
C14300
F1J1C1060001
16V
$(0.1)
C14219
$[F1H1C104A071]
C14207
C14208
$[F1H1C104A071]
F1H1C104A071
C14303
16V
F1H1H332A013
C14304
50V
F1H1C104A071
C12202
16V
C10101
F1H1H221A004
50V
$[F1K1C1060001]C14220
F1K1C1060001C14201
16V
C14202 F1K1C1060001
16V
C11301
*
$[F1J1C1060001]C14209
C14316 $[F1J1C1060001]
C11102 F1B2G471A014
400V
C11103 F1B2G471A014
400V
C11109
F1B2G222A018
400V
C11302
F1H1H222A013
50V
F1H1H472A013
C11305
50V
F1H1H101A004
C11304
50V
F1H1C104A071
C12203
16V
F1H1C104A071
C14307
16V
C14203 F1J1E105A080
25V
C14204
F1H1C104A071
16V
F1H1H561A004
C14205
50V
F1H1C104A071
C14206
16V
4
3 2
1
#B3PBA0000454
Q12201
4
3 2
1
#B3PBA0000454
Q10102
51 3
2 4 7
9
IC11301
C0DACZH00017
LGS=6.2
LG11102
LG11104
LGS=3.5
LG11105
LGS=3.5
LGS=1.5
LG11107
LGS=1.5
LG11106
LG11103
LGS=6.2
LG11101
LGS=3.5
LG11109
LGS=6.2
LG11110 LGS=6.2
LGS=6.2LG11111
Confidential
Until
D11306
B0HADV000001
D11304
B0HAGM000006
D14302
B0JCMD000014
D14301
B0JCMD000014
D10101
B0ACCK000005
B0ACCK000005
D10102
B0ACCE000003
D11303
D14201
B0JCMD000014
D14202
B0JCMD000014
C13103
16V33[JG]
F2A1C3300040
16V
C14218
F2A1C8210008
16V
*
C11107
C13202
*
*
C13203
*
C13201
F2A1C8210008C14315
16V
35V220[JG]
C11303
F2A1V2210081
35V
#ERZV10D471C2
VA11101
12
3 4
D11101
B0EDKT000009
S_P_SAVE_L
PW_XSW5R9V
DR_P_ON_H
DR_12V
PW_X_SW12R3V
DRGND
GND
DR_5V
DDGND
F11101
K5G202Y00006
1
2
P11101
K2AA2B000017
2 1
3 4
G0B273E00006
L11101
2 1
3 4
G0B273E00006
L11102
QR10103
B1GBCFNN0041
QR10101
B1GBCFNN0041
B1GBCFNN0041
QR13101
13
4
15 1614
1236 578
12119 10
C0DBAYY00624
IC14301
13
4
15 1614
1236 578
12119 10
C0DBAYY00602
IC14201
5
2
6
13
4
B1DHDD000022
Q14301
5
2
6
13
4
Q14302
B1CFRD000023
5
2
6
13
4
B1CHRD000024
Q14202
G11001
G11002
B1ABDF000033
Q10101
J0JHC0000048
LB14201
J0JHC0000048
LB11104
LB11103
J0JKB0000003
ERJ6GEY0R00V
LB14301
B0BC03200002
D11301
D11305
B0BC01000014
*
D11302
1 23
C RA
IC12201
C0DAEYY00022
G0A100ZA0045
L14203
L13201
*
L14302
G0A100ZA0045
23 1
10 11 12
456
7 98
*
T11301
23 1
10 11 12
456
7 98
*
T11302
1 2 3
B0JBSG000057
D13201
G1 G2
ZA13201 VSC5984
G1 G2
ZA11301 VSC5713-A
3 4
2
1
5
6
B1CHQD000010
Q13102
XYN3+J8FJZA13202
ZA11302 XYN3+J8FJ
21 3
K9ZZ00001279
ZA15302
21 3
K9ZZ00001279
ZA15301
K14301
*
K14302
*
SAF_D_FUL
SAF_D_N_FU
SAF_D_L1L2
SAF_D_FUL1L2
SAF_D_VDS
SAF_D_DCV
SAF_D_DCV_BT
SAF_D_FULDI
SAF_D_LDI
P1
P1
PT
PT
P2
P2
or
or
or
or
or
or
or
or
or
or
or
or
or
or
or
N
A
ZA11302 XYN3+J8FJ
0.22[2W]
10V1
50V100P
S
S
S
S
S
S
S
S
S
S
S
T
50V47000P
50V2200P
T2AL 250V
GND
GND
GND
CC
CC
FB
FB
SS
RS+
RS-
EN
EN
SEL
V5
V5
LO
LX
EXT
EXT
EXT
OSC
VREF
VIN
VIN
VB
VB
UPSYNC
D D
D D
DD
DD
D
D
D
D
G
G
G
NC
NC
NC
NC
NC
NC
CS
Vref/SS
50V560P
16V0.1
16V0.1
16V0.1
16V0.1
25V1
16V10
16V10
16V10
16V820[JG]
16V820[JG]
ZA13202 XYN3+J8FJ
(UPA1914_2)
(AL1473)
(AL1061)
(CPH6350)
(CPH6312)
(CPH6412)
2010/08/31
B2
B2
B1
B1
VariationCategory
C11107
C11301
C13201
C13202
C13203
D11302
K14301
K14302
L13201
R11308
R11309
T11301
T11302
DMR-BS880EB DMR-BS780EB DMR-XS380EB DMR-BW880EB DMR-BW780EB DMR-XW380EB DMR-BW880EF DMR-BW780EF DMR-XW380EF DMR-BS885EG DMR-BS785EG DMR-XS385EG
G4DYA0000209 G4DYA0000209 G4DYA0000209 $[G4DYA0000209] $[G4DYA0000209] $[G4DYA0000209] $[G4DYA0000209] $[G4DYA0000209] $[G4DYA0000209] G4DYA0000209 G4DYA0000209 G4DYA0000209
$[G4DYA0000205] $[G4DYA0000205] $[G4DYA0000205] G4DYA0000205 G4DYA0000205 G4DYA0000205 G4DYA0000205 G4DYA0000205 G4DYA0000205 $[G4DYA0000205] $[G4DYA0000205] $[G4DYA0000205]
5600[G] 5600[G] 5600[G] 4700[G] 4700[G] 4700[G] 4700[G] 4700[G] 4700[G] 5600[G] 5600[G] 5600[G]
18K 18K 18K 12K 12K 12K 12K 12K 12K 18K 18K 18K
G0A3R3J00003 G0A3R3J00003 G0A3R3J00003 G0A100H00025 G0A100H00025 G0A100H00025 G0A100H00025 G0A100H00025 G0A100H00025 G0A3R3J00003 G0A3R3J00003 G0A3R3J00003
$ $ $ $ $ $ $ $ $ $ $ $
$ $ $ $ $ $ VWJ0795=5 VWJ0795=5 VWJ0975=5 VWJ0795=5 VWJ0795=5 VWJ0795=5
B0BA01400041 B0BA01400041 B0BA01400041 B0BA01600007 B0BA01600007 B0BA01600007 B0BA01600007 B0BA01600007 B0BA01600007 B0BA01400041 B0BA01400041 B0BA01400041
F2A1C1020095 F2A1C1020095 F2A1C1020095 F2A1C8210008 F2A1C8210008 F2A1C8210008 F2A1C8210008 F2A1C8210008 F2A1C8210008 F2A1C1020095 F2A1C1020095 F2A1C1020095
F2A1C222B727 F2A1C222B727 F2A1C222B727 F2A1C1520021 F2A1C1520021 F2A1C1520021 F2A1C1520021 F2A1C1520021 F2A1C1520021 F2A1C222B727 F2A1C222B727 F2A1C222B727
F2A1C222B727 F2A1C222B727 F2A1C222B727 F2A1C1520021 F2A1C1520021 F2A1C1520021 F2A1C1520021 F2A1C1520021 F2A1C1520021 F2A1C222B727 F2A1C222B727 F2A1C222B727
F1B3D681A011 F1B3D681A011 F1B3D681A011 F1B3D391A011 F1B3D391A011 F1B3D391A011 F1B3D391A011 F1B3D391A011 F1B3D391A011 F1B3D681A011 F1B3D681A011 F1B3D681A011
F2B2W6800005 F2B2W6800005 F2B2W6800005
F2B2W4700003
│F2A2W470A150
F2B2W4700003
│F2A2W470A150
F2B2W4700003
│F2A2W470A150
F2B2W4700003
│F2A2W470A150
F2B2W4700003
│F2A2W470A150
F2B2W4700003
│F2A2W470A150
F2B2W6800005 F2B2W6800005 F2B2W6800005
HOT
COLD
CAUTION: FOR CONTINUED PROTECTION AGAINST FIRE HAZARD,
ATTENTION: POUR UNE PROTECTION CONTINUE LES RISQUES
2A 250V
2A 250V
REPLACE ONLY WITH THE SAME TYPE 2A 250V FUSE.
D' INCENDIE N' UTILISERQUE DES FUSIBLE DE MÉME TYPE 2A 250V.
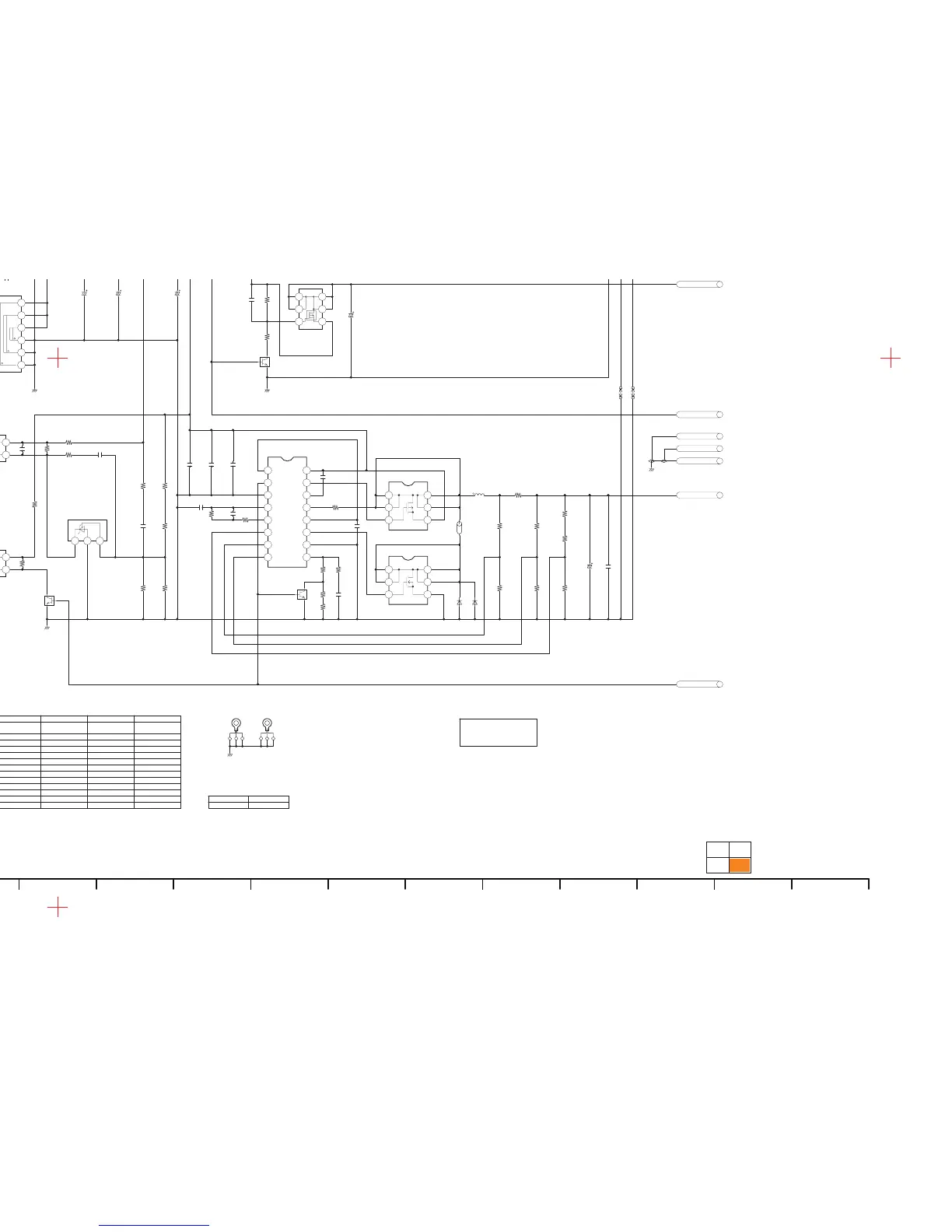
DMR-XW380EB
Power Section
(Main P.C.B. (1/2))
Schematic Diagram (P)
DMR-XW380EB
Power Section
(Main P.C.B. (1/2))
Schematic Diagram (P)
DMR-XW380EB
Power Section
(Main P.C.B. (1/2))
Schematic Diagram (P)
DMR-XW380EB
Power Section
(Main P.C.B. (1/2))
Schematic Diagram (P)
2/4
4/4
1/4
212019181716151413121110987654321
N
M
L
K
J
I
H
G
F
E
D
C
B
A
3/4