EasyManua.ls Logo

Panasonic PT-EW630UL

Panasonic PT-EW630UL
176 pages
To Next Page IconTo Next Page
To Next Page IconTo Next Page
To Previous Page IconTo Previous Page
To Previous Page IconTo Previous Page
Loading...
-81-
IC301
SYSTEM
CONTROL
&
SCAN
CONVERTER
<PW392>
IC5201
FPGA
<XC3S50A>
LAMP
LP900
AC
SW902
THERMAL
FUSE
POWER
A901
LAMP
BALLAST
CHO_RXD
FILTER_DET
SCI
WINDS_SENS
Q331
CHO_TXD
PW_MASTER_SDI
PW_MASTER_SDO
PW_MASTER_SCK
LAMP_DC_ON
IC1853
INVERTER
IC1816
TEMP
SENSOR B
<LAMP>
IC3903
IC3902
IC1692
TEMP
SENSOR A
<ROOM>
S901
WIND
SENSOR
IC1814
TEMP
SENSOR C
<PANEL>
IC9885
SUB-CPU
<MB95F353EPFT>
IC7801
DAC
FAN
CONTROL
<M62393>
LAMP
COVER SW.
12
32
154
251
19
11
4
22
41
343
354
68
20
1
1
29
29
514
514
1
3
K8R
K6R
CN1
CN2
K6B
RL602
K6A
K8K
K8B
K8E
K8G
K8S
35
9
10
7
POWER-ON:H
Normal Standby:H
Network Standby: H
Eco Standby: L
POWER-ON:H
Error: L
Error: L
MAIN
SW1891
K8C
FILTER SW.
3
1
LB_SW
SCI_SW
VD
CON_G
CPU_G
5
1
14
2
2
POWER_SW
LOW
POWER
SUPPLY
POWER
SUPPLY
SB_5V
S16V
S6V
S-6V
S3.3V
PW_SDA0/SCL0_S5V
PW_SDA0/SCL0
F601
FUSE
FAN LOCK
P. FA IL
COOLING
FANS
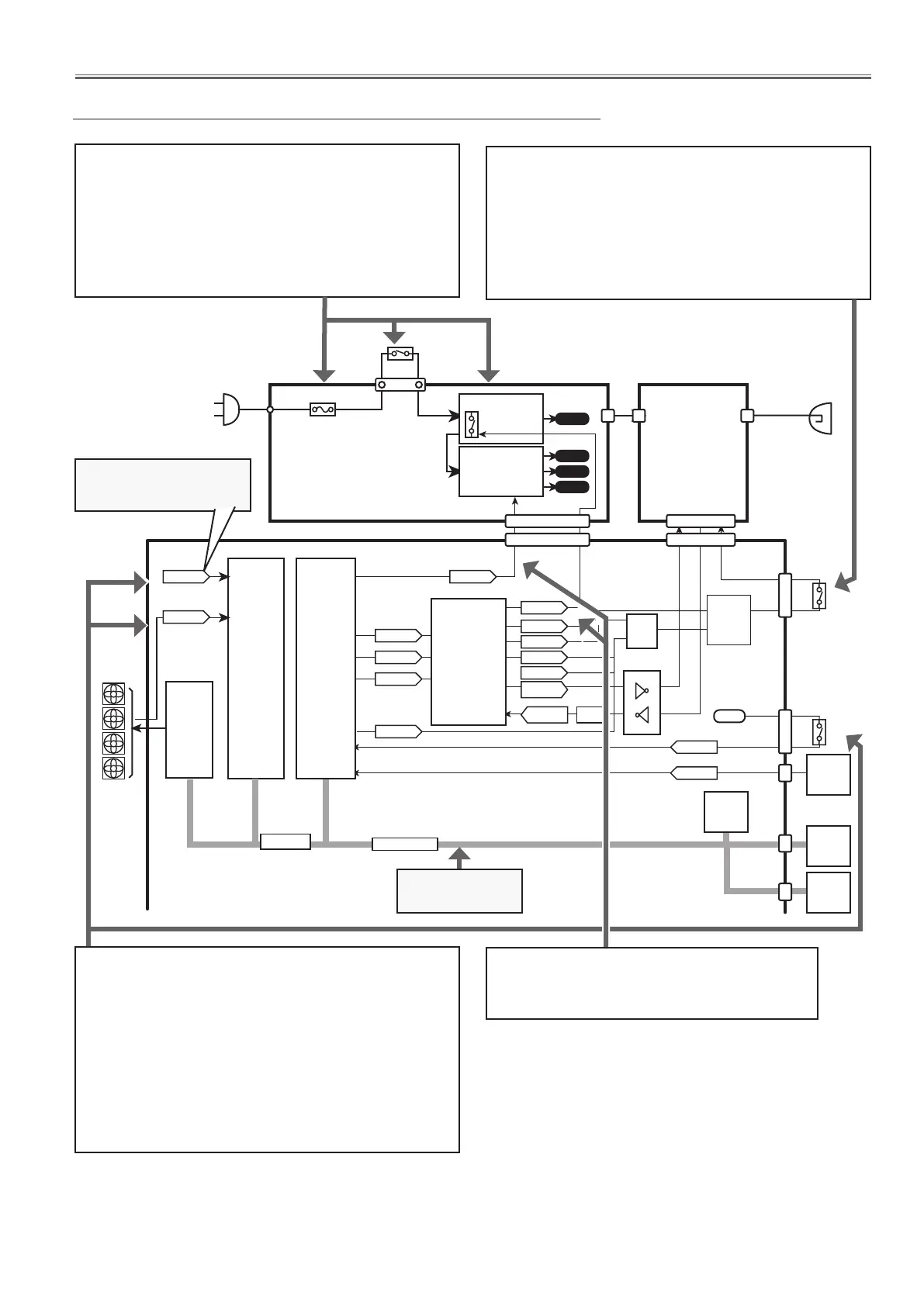
No power
Check that the Power on/off signals are correct.
- POWER_SW H: Network Standby / L: Eco Standby/H:
Normal standby
- LAMP_DC_ON H: Power-on
The ON(G)/STANDBY(R) and LAMP indicators do not light
If the ON(G)/STANDBY(R) and LAMP indicators are not lighting,
check the Fuse (F601) and Thermal fuse (SW902) in the primary
circuit and SB_5V of standby power supply circuit.
- Fuse opens when the primary circuit has a error.
- Thermal fuse opens when surrounding temperature of lamp
reaches around 113ºC.
The LAMP indicator lights red
If the LB_SW signal is not supplied to the Lamp Ballast, the projector
cannot be turned on. Check the follows;
- Check the lamp cover and the lamp cover switch .
lamp cover switch--open: Abnormality
- Check the signals LB_SW, CHO_TXD, CHO_RXD output from
IC9885.
LAMP indicator lights and other indicators blink
If the LAMP indicator is lighting and other indicators are blink-
ing, the projector detects an abnormal inside the projector.
Check following points;
- Check the secondary power supply. Error on the low power
voltage
- Check the fan operation. Error on the fan.
- Check the filter cartridge detecting switch (SW1891).
SW1891 open: Error
- Check the signal FILTER_DET supplied to IC301.
FILTER_DET Low: Error
Check that IIC Bus
signals are correct.
Check that POWER FAIL sig-
nals are correct.
L : Abnormality
Troubleshooting

Table of Contents

Other manuals for Panasonic PT-EW630UL

Related product manuals