EasyManua.ls Logo

Panasonic PT-VMZ71

Panasonic PT-VMZ71
167 pages
To Next Page IconTo Next Page
To Next Page IconTo Next Page
To Previous Page IconTo Previous Page
To Previous Page IconTo Previous Page
Loading...
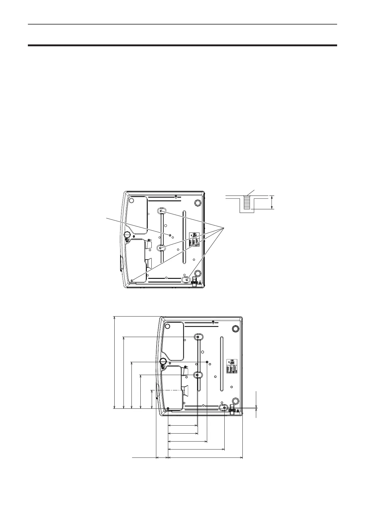
Precautions for attaching the Ceiling Mount Bracket
f When installing the projector to a ceiling, be sure to use the specied optional Ceiling Mount Bracket.
Model No.: ET-PKL100H (for high ceilings), ET-PKL100S (for low ceilings), ET-PKV400B (Projector mount
bracket)
f When installing the projector, attach the drop-prevention kit included with the Ceiling Mount Bracket.
f Ask a qualied technician to do the installation work such as mounting the projector on the ceiling.
f Panasonic takes no responsibility for any damage to the projector resulting from use of a ceiling mount bracket
not manufactured by Panasonic or the inappropriate choice of location for installation, even if the warranty
period of the projector has not expired.
f Unused products must be removed promptly by a qualied technician.
f Use a torque screwdriver or Allen torque wrench to tighten bolts to their specied tightening torques. Do not use
electric screwdrivers or impact screwdrivers.
(Screw tightening torque: 1.25 ± 0.2 N·m)
f Read the Installation Instructions for the Ceiling Mount Bracket for details.
f The model numbers of accessories and optional accessories are subject to change without prior notice.
r Screw hole specications for ceiling mount (Bottom view)
Unit : mm (inch)
M4 × 0.7
8 mm (5/16")
Screw holes for ceiling mount
Screw hole for wire rope
r Screw hole dimensions for ceiling mount (Bottom view)
Unit : mm (inch)
369 (14-17/32")
186 (7-5/16")
134 (5-9/32")
74 (2-29/32")
226
(8-29/32")
156
(6-5/32")
117
(4-19/32")
48
(1-7/8")
3 (1/8")
299
(11-25/32")
286 (11-1/4")
120
(4-23/32")
ENGLISH - 165
Chapter 7 Appendix - Precautions for attaching the Ceiling Mount Bracket

Table of Contents

Related product manuals