EasyManua.ls Logo

Panasonic SA-PM30MD - Page 44

Panasonic SA-PM30MD
102 pages
Print Icon
To Next Page IconTo Next Page
To Next Page IconTo Next Page
To Previous Page IconTo Previous Page
To Previous Page IconTo Previous Page
Loading...
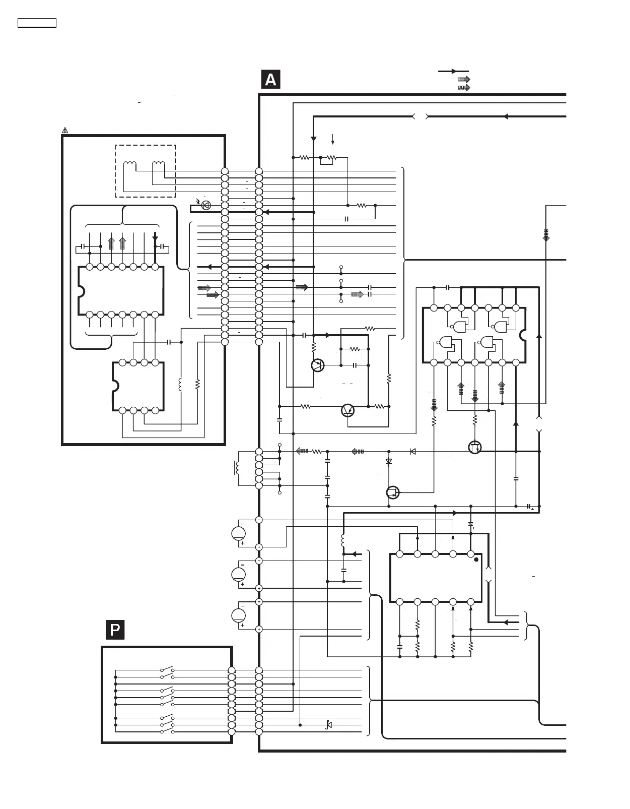
14.1. (A) MD Servo Circuit
S
G
D
IC11
TC74HCT00AFL
NAND GATE
TRACKING
COIL
FOCUS
COIL
A
B
C
D
E
F
G
H
I
J
K
L
EACBD
PD
C
PD
A
TRK+
FCS
TRK
FCS+
VREF
Vcc
APC
B
D
A
F1
F2
RF1
HFMV
GND
LD
M
M
M
9
10
8
7
6
5
4
3
2
1
9
10
8
7
6
5
4
3
2
1
L700
(MAGNETIC HEAD)
M2
(TRAVERSE MOTOR)
M1
(SPINDLE MOTOR)
M3
(LOADING MOTOR)
S1 (PROTECT)
(REFLECT)
(DISC IN)
(LOAD PLAY/REC)
(LOAD PLAY)
(TV SW)
(LOAD TRG)
(LOAD OPEN)
S2
S4
S5
S6
S8
S7
S3
CN6 CP6
A
F
G
C
B
H
D
E
D9 MA728TX
CN8
R71
22
D5
Q11
2SK1764KYTR
HEAD DRIVE
Q10
2SJ278MYTR
HEAD DRIVE
Q1
2SB1295
6 TB
LASER POWER DRIVE
M
O
L
K
J
N
I
H
G
F
B
A
VR1
10K(B)
LASER
POWER ADJ.
CN1
109876
12345
VS
OUT1
GND
OUT2
Vcc
VC OUT
VREF
VM
IN1
IN2
5
6
4
3
2
1
S
G
D
C48
0.1
26
2
1
3
4
5
6
7
8
9
10
11
12
13
14
15
16
17
18
19
20
21
22
23
24
25
26
2
1
3
4
5
6
7
8
9
10
11
12
13
14
15
16
17
18
19
20
21
22
23
24
25
LD GND
GND
GND
C
GND
RF2
PD
GND
GND
1 2 3 4
8 7 6 5
NC
GND
LD
LD GND
GND
IDC IN
HFMW
NC
14 13 12 11 10 9 8
1 2 3 4 5 6 7
APC PD GND
VREF
RF2
RF1
D
C
Vcc
B
F2
F1
A
LD
LD GND
HG I J K L F
0.11
F PD
0.022
1 H
300
C
D
E
P
1234567
141312111098
GND
Vcc
C5
0.22
R6
4.7K
R8
270
C4
R5
1
C6
R22
0
C123
0.1
C117
6.3V330
R29
47K
R30
1K
TP35
TP37
TP44
C8
0.22
C7
0.22
C1 220P
R1
4.7K
R3
4.7K
R72
22
C133
C60
16V10
D6
TP110
R13
3.3
TP111
C81
56P
C120
56P
C118
Q
R
S
T
U
V
W
L11
10
H
I
L
K
J
R77
22K
R75
22K
R73
39K
C106
1000P
R74
8.2K
IC92
LB1830MS
TLM
LOADING
MOTOR DRIVE
Q3
2SB1462STX
POWER SUPPLY
5V
5V
2.6V
D5,D6
SC80209TE12R
MD OPTICAL PICKUP
MD SERVO CIRCUIT
Note:
The number which noted at the connectors on the schematic
diagram as "SCHEMATIC DIAGRAM
1" or
"SCHEMATIC DIAGRAM
2" indicates the schematic diagram
serial number located on the left corner in the schematic
diagram.
MD SWITCH CIRCUIT
5V
5V
2.6V
0V
5V
5V
5V
5V5V
3.3V
0V(3.3V)
5V(0V)
3.3V
0V(3.3V)
5V(0V)
5V
(0V)
5V
0V(5V)
5V (0V)
0V
0V
(5V)
3.3V (1.8V)
2.6V0V(2.4V)
2.5V
(1.9V)
1.9V
2.6V
0V
(1.8V)
5V
(0V)
0.6V
(0V)
0.6V
0V
5V
0V
(3.3V)
0V
(3.3V)
0V
0V
(2V)
0V
(1.7V)
:+B Signal Line
:MD Recording Signal Line
1.8V
2.4V
1.8V
5V
0V
5V
0V
3.3V
3.3V
0V
0V
3.3V
0V3.3V
1.7V
2V
:MD Signal Line
10
10
10
10
SCHEMATIC DIAGRAM-1
44
SA-PM30MD

Related product manuals