EasyManua.ls Logo

Panasonic SA-PMX84EG - Audio Block Diagram

Panasonic SA-PMX84EG
79 pages
Print Icon
To Next Page IconTo Next Page
To Next Page IconTo Next Page
To Previous Page IconTo Previous Page
To Previous Page IconTo Previous Page
Loading...
44
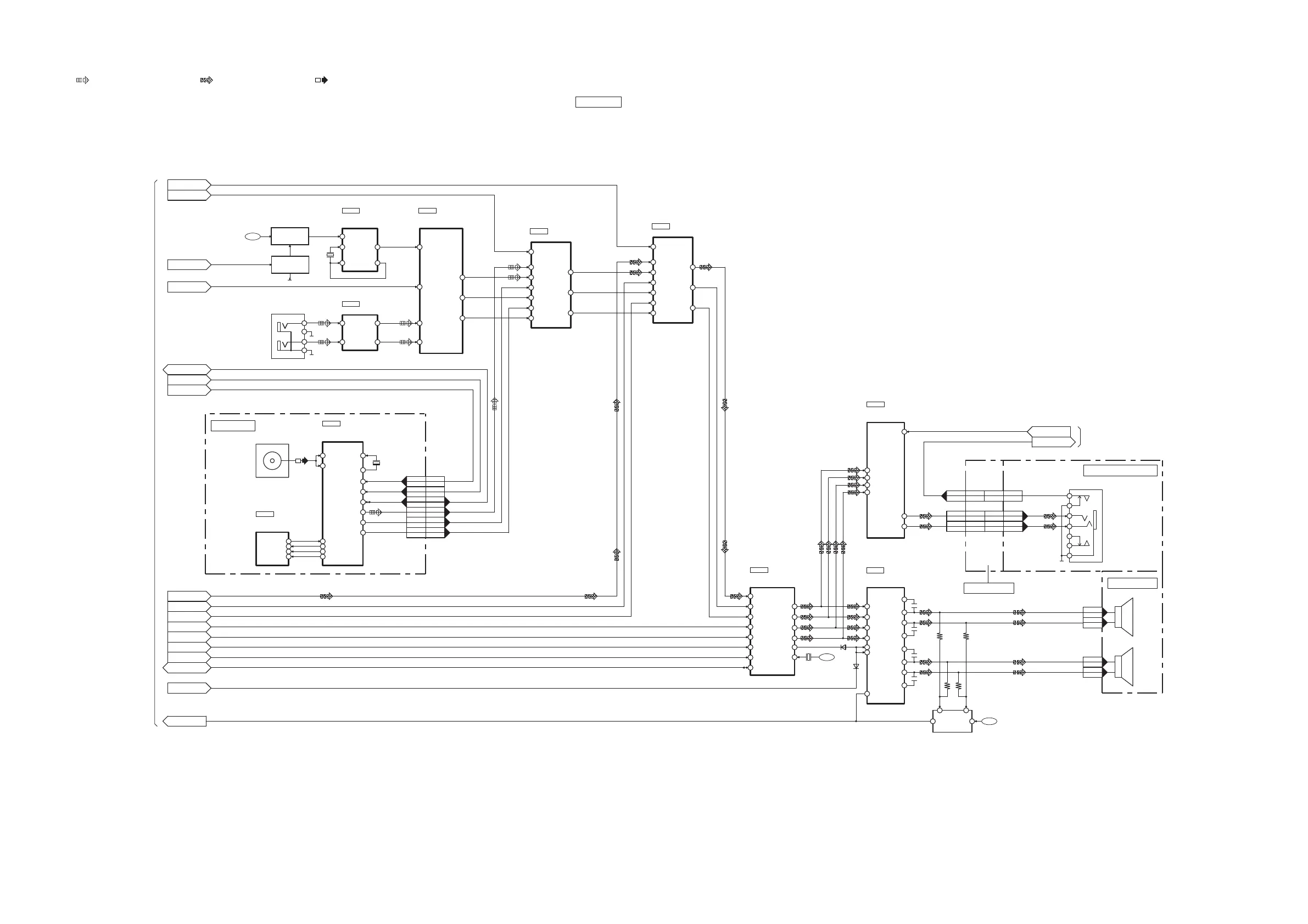
10.2. AUDIO BLOCK DIAGRAM
SA-PMX82EB/EG/GN, SA-PMX82MEB, SA-PMX84EG AUDIO BLOCK DIAGRAM
: TUNER/AUX INPUT SIGNAL LINE : AUDIO OUTPUT SIGNAL LINE
: DAB/FM SIGNAL LINE
LCH
RCH
JK3000
2
3
1
4
5
7
6
HEADPHONE
DRIVER
IC4300
13 -INL
2 -INR
1 +INR
14 +INL
OUTL 12
OUTR 3
/MUTE 5
HEADPHONE
MAIN P.C.B.
HP_MUTE
HP_DET
I2S_SDO0
I2S_LRCK
I2S_BCK
FROM/TO
SERVO & SYSTEM CONTROL
FROM/TO
SERVO & SYSTEM CONTROL
5
P9200
5
CN4300
LCH
3
P9200
3
CN4300
RCH
1
P9200
1
CN4300
6
P3000
6
CN9202
LCH
4
P3000
4
CN9202
RCH
2
P3000
2
CN9202
HP_DETHP_DET
SDTO 9
13 AINL
14 AINR
6 MCLK
11 MD1
LRCK 7
SCLK 8
DIGITAL
AMPLIFIER
LEFT
RIGHT
SPEAKERS
HEADPHONE P.C.B.
PANEL P.C.B.
IC4200
DIGITAL AUDIO
PWM PROCESSOR
IC4100
JK2000
A/D
CONVERTER
IC2004
I2S_SEL_3
I2S_SEL_1
ADC_PON
MD1
1Y 4
21A
2Y 7
52A
62B
3Y 9
11 3A
10 3B
1 SELECT
31B
1Y 4
21A
2Y 7
52A
62B
3Y 9
11 3A
10 3B
1 SELECT
31B
MULTIPLEXOR
IC4201
MULTIPLEXOR
IC2003
DUAL
INVERTER
IC2001
DC_DET_DAMP
Q4200,Q4201
Q4202,Q4203
D4200
D8000
DC DETECT
CIRCUIT
+
-
17 RST_CD
16 PWM_C
18 PWM_D
7 RST_AB
5SD
6 PWM_A
8 PWM_B
OUT_A
BST_A
OUT_B
BST_B
L+
CN4200
L-
CN4200
39
43
36
34
+
-
OUT_D
BST_D
OUT_C
BST_C
R+
CN4200
R-
CN4200
28
24
31
33
+27.5V
+3.3V
SDIN1
8
BCK
10
LRCK
9
SDA
4
SCL
5
RST_N
2
SMUTE
3
PWM1A
28
VALID
24
PWM1B
27
PWM2B
29
PWM2A
30
X4100
CLK110M
38
DSP_SDA
DSP_RESET
DSP_SCL
DSP_MUTE
ERR_IN
16
DSP_ERR
DAMP_MUTE
RCH
LCH
AUX IN
2
1
4
3
32A
5 VCC
11A
2Y 4
1Y
OP AMP
IC2000
3 A+IN
5 B+IN
B_OUT
A_OUT
6
1
7
X2000
+3.3V VOLTAGE
SUPPLY
Q2000
+3.3V
VOLTAGE
CONTROL
QR2000
RESETn
UART0_TXD/I2C_SCL
UART0_RXD/I2C_SDA
RESET
7
CN1
4
CN8008
RESET
DAB_RX
9
CN1
2
CN8008
I2C_SCL
DAB_TX
8
CN1
3
CN8008
I2C_SDA
54
63
64
DIGITAL RADIO
PROCESSOR
IC2
FLASH
MEMORY
IC1
DAB P.C.B.
DAB ANT /
FM ANT
JK1
26 B2_RFIN
28 B3_RFIN
70 SPI1_MOSI
I2S_DOUT0 78
I2S_BCLK 77
I2S_LRCLK 76
I2S_SDOUT
9
CN8008
2
CN1
I2S_BCK
8
CN8008
3
CN1
I2S_LRCK
DAB_DATA
DAB_BCK
DAB_LRCK
7
CN8008
4
CN1
DAB_SDA
DAB_RST
DAB_ SCL
X1
XO_IN
13
DI
5
71 SPI1_MISO
DO
2
72 SPI1_CLK
CLK
6
73 SPI1_CS0n
CS
1
XO_OUT
14

Table of Contents

Related product manuals