EasyManua.ls Logo

Panasonic TH-85PF12U - Weekly Command Timer; Setting Up Weekly Commands; Program Editing

Panasonic TH-85PF12U
83 pages
To Next Page IconTo Next Page
To Next Page IconTo Next Page
To Previous Page IconTo Previous Page
To Previous Page IconTo Previous Page
Loading...
TH-85PF12U
58
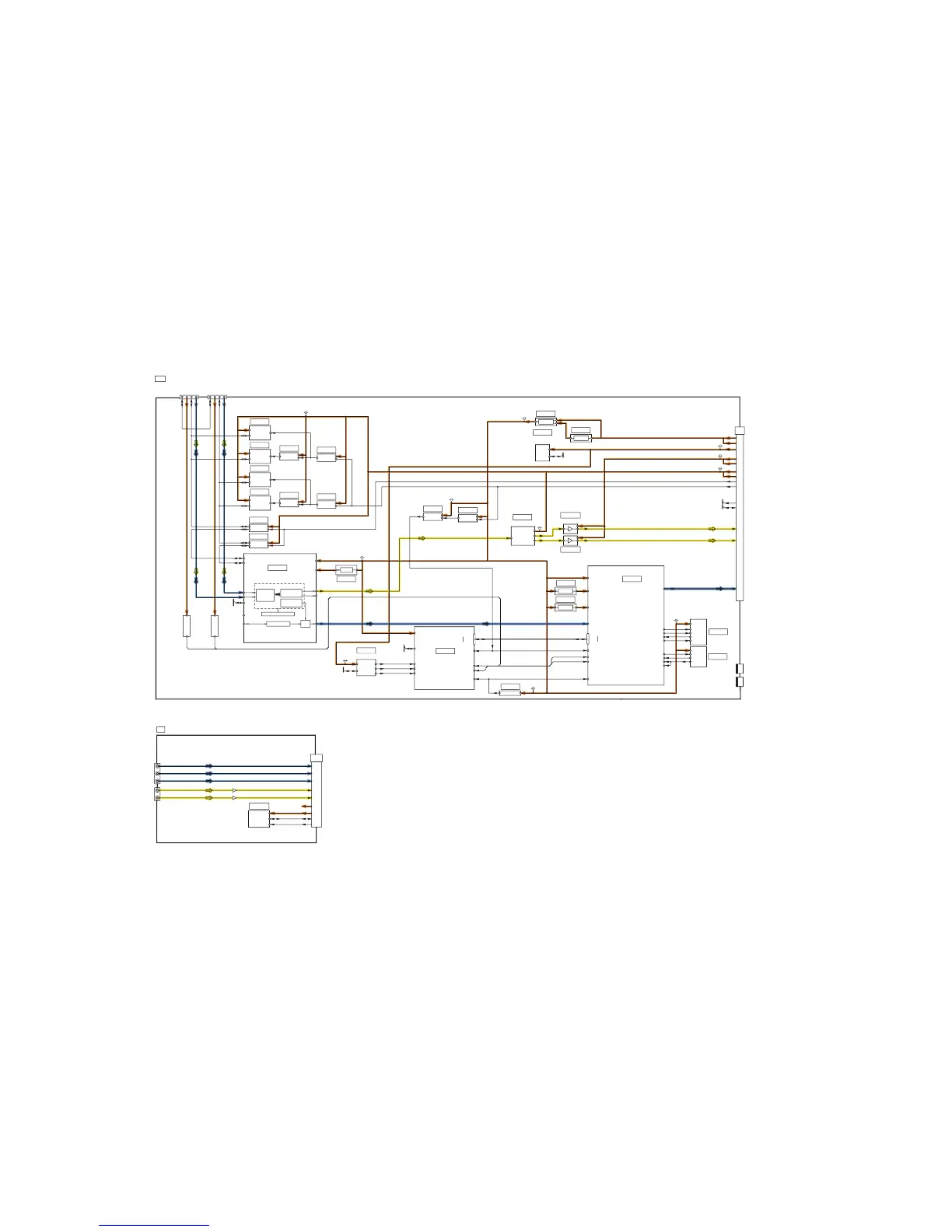
11.4. Block (1 of 8) Diagram
EX_RESERVE3
EX_RESERVE2
EX_RESERVE1
+5V
A/D CONV.
IC3319
SLOT_IIC2
H/V
HDMI_L
B24
INTERFACE
PLAG_DET
EEPROM
+5V(HDMI)
+3.3VREG
3.3V
->5V
IC3344
RESERVE6
B39
HDMI_5V_DET2
IC3341
IC3303
A26
ADIN2
EXPAND I/O
B25
ADIN3
VCC
IC3323
+2.5V
BUFFER
IC3338
B21
BUFFER
+1.2V
IC3312
+3.3VREG
COMPONENT VIDEO TERMINAL
CONFIG
B24
A28
H5
SLOT_IIC2
PLUG DET
EEPROM
IC3304
EEPROM
HA
+5VSTB
+5VSTB
+1.8V
SLOT_IIC2
A22
VDD
AUDIO IN
+3.3VREG
Y2-Y9
HDMI IN B
A19
IIC_DATA3
USE
SLOT_SDA
AUDIO
TMDS DATA
CLOCK
UV2-UV9
IIC_CLOCK3
+5V
Q3304
3.3V
->5V
IC3307
A26
MAIN MICOM
HDMI_SD
SLOT+9V
AOUTL
HDMI I/F RECEIVER
VIDEO IN
TMDS DATA
CLOCK
+3.3VREG
UV2-UV9
FIN
COMPONENT
Y2-Y9
JK3002
AUDIO DAC
H6
B25
A34
IC3306
A38
A23
HDMI_5V_DET2
A21
LVDS DATA
ROM
HDMI_5V_DET2
STB5V
IIC
LVDS_TXC+-
HDMI_5V_DET1
AUDIO L
JK3001
LVDS_TX0+-
|
LVDS_TX9+-
IC3002
PB/B
A2
H1
DS13
P1
PR/R
B15
DDC0_IIC
A36
Q3302
|
USE
IC3329
CONFIG ROM
(FPGA)
S0-3
RESERVE1
RESERVE1
S0-3
FACTORY
nCONFIG
+3.3V
DS12
RESERVE6
HDMI_IIC
FACTORY
IC3342
HD/FHD
IIC
HDMI_5V_DET1
SLOT_SCL
For FHD
FOR
B38
HDMI_CEC
+5V
EDID A
P2
SLOT15V
BUFFER
UV2-UV9
R
EEPROM
+5V(HDMI)
IC3321
+5V
FOR
H3
A22
SLOT9V
+3.3VREG
SLOT9V
+5V
RESET
R_OUT+
DECODE
+5V
HDCP KEY
IC3326
HDMI_5V_DET1
BUFFER
BUFFER
HDMI_R
SLOT5V
EDID B
+2.5V
CPG
SLOT5V
IC3310
+9V
IC3314
DCLK
DDC IIC
STB5V
nCSO
IC3325
DATAO
ASDO
IC3301
INTERFACE
VIDEO
IC3322
O_CLK
L
B37
HDMI INTERFACE
10bit A/D
EEPROM
DET_1
Y0,Y1,UV0,UV1
IC3330
HDMI_IIC
AUDIO AMP L
+1.8V
B19
HDMI PROCESSOR
DDC1_IIC
IIC
AUDIO AMP R
DDC IIC
IC3343
BUFFER
FOUT
IC3328
HDMI
IC3335
+3.3VREG
HDMI IN A
IC3324
Y2-Y9
IC3339
CONTROL BUS
IC3302
CLK4
A21
nCSO
Y0,Y1,UV0,UV1
IIC
For HD
For HD
+3.3V
Y0,Y1,UV0,UV1
HHH
ADIN4
EDID B
FPGA
+1.2V
AOUTR
BICK
Q3303
IC3334
ASDO
SW
Q3303
IVDO
Y/G
L_OUT+
HD/FHD
AUDIO R
SLOT9V
H1
STB5V
NRST
P3
IIC_CLOCK3
HD/FHD DET
H2
A28
EDID A
DATAO
IC3308
IIC_DATA3
DET_2
HDMI_CEC
DCLK
For FHD
SLOT15V
CLK1

Table of Contents

Other manuals for Panasonic TH-85PF12U

Related product manuals