EasyManua.ls Logo

Panasonic TH-85PF12U - Nanodrift Saver and Peak Limit; Express Settings

Panasonic TH-85PF12U
83 pages
To Next Page IconTo Next Page
To Next Page IconTo Next Page
To Previous Page IconTo Previous Page
To Previous Page IconTo Previous Page
Loading...
40
TH-85PF12U
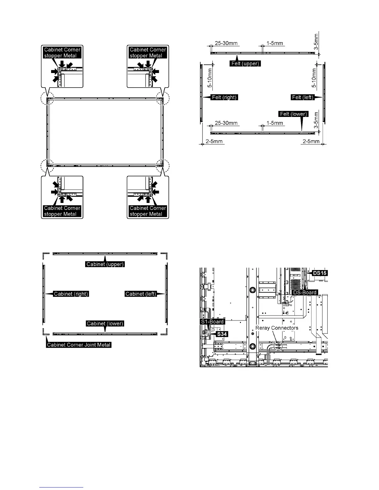
4. Remove 16 screws and then remove the Cabinet Corner
stopper Metals.
5. Remove the Cabinet Corner Joint Metals and Cabinet
(left, right, upper, lower)
Note: when Cabinet is exchanged
Paste the felts in order along each Fixed Angles (left,
right, upper, lower).
Make sure the felts do not protrude from the edge of the
cabinet.
Note
The felts are parts which cannot be recycled. Please use
the new article when you exchange the Cabinet.
9.33. Removal of Plasma Display
Panel
The C1 (upper, lower), C2 (upper, lower), C3 (upper,
lower),C4 (upper, lower), SS, SS2, SS3, SC, SU, SD Boards
and, flexible cables between D-C Boards and D-SC Boards,
are connected with the Plasma Display Panel for the repair.
1. Remove the Rear Covers.
(Refer to Removal of Rear Cover)
2. Disconnect the connectors (DS15, S34).
3. Disconnect 2 Relay Connectors.

Table of Contents

Other manuals for Panasonic TH-85PF12U

Related product manuals