EasyManua.ls Logo

Panasonic TH-85PF12U - List of Aspect Modes

Panasonic TH-85PF12U
83 pages
To Next Page IconTo Next Page
To Next Page IconTo Next Page
To Previous Page IconTo Previous Page
To Previous Page IconTo Previous Page
Loading...
TH-85PF12U
61
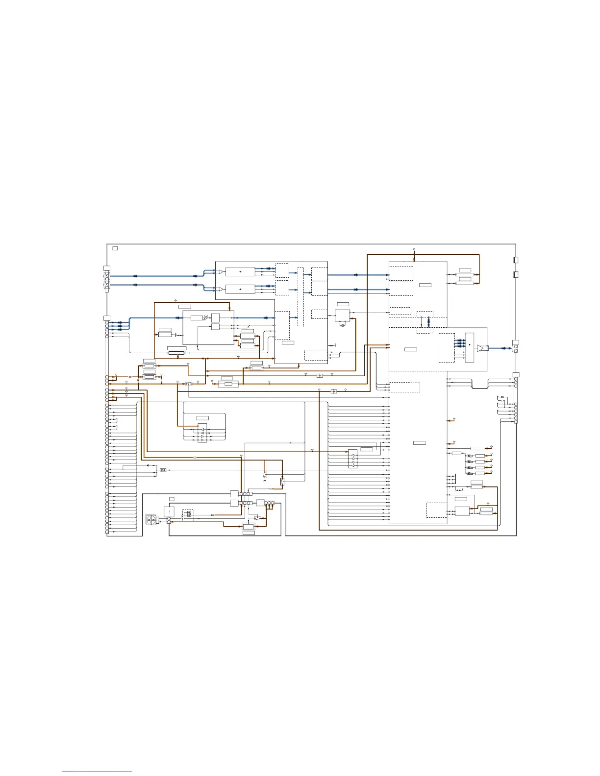
11.7. Block (4 of 8) Diagram
(LED:10TIME)
(LED:11TIMES)
(LED:11TIMES)
(LED:13TIME)
(LED:2TIMES)
(LED:10TIME)
(LED:2TIME)
5VTXD_TU
READY
3.3VRXD_TU
RXD_PC
PLLV
DAC1
SLOT1_DET
RESET
ALL_OFF
15V_ON/OFF
KEY_INPUT
RXD_PC
IIC_CONT
IIC_SW_DAC3
IIC_SW_DAC3
SOUND_MUTE
FAN_CONT
TXD_PC_M
ALL_OFF
DAC0
DPMS_VD
KEY_INPUT
RTC_INT
D_RXD
LED_G
RTC_INT
FAN_ON/OFF
IIC_SW_DAC4
LED_R
DPMS_HD
LED_R
5VRXD_TU
FSTB+15V_MON
3.3V_TXD_LAN
3.3V_RXD_LAN
3.3V_RXD_LAN
FAN_SOS
DS_SOS
SOUND_MUTE
TXD_PC_M
DS_SOS
IIC_CONTFAN_ON/OFF
LAN0
DPMS_HD
FAN_CONT
SLOT2_DET
LAN1
LED_G
3.3V_TXD_LAN
PANEL_STBY_ON
TXD_PC
STB_ON
LAN1
STB_ON
FAN_SOS
DAC1
ALARMALARM
LAN+14V_ON/OFF
RXD_PC
VD-M
15V_ON/OFF
DAC0
LAN+14V_ON/OFF
PANEL_STBY_ON
3.3VRXD_TU
FSTB+15V_MON
PLLH
D_TXD
DPMS_VD
TXD_PC
READY
LAN0
5VTXD_TU
SLOT3_DET
IIC_SW_DAC4
HD-M
5VRXD_TU
RESET
D4029
+15V(P)
R4145
D4001
+3.3V(SW)
D4033
D4031
+3.3V(STB)
+5V(P)
+15V(FAN)
+1.8V(P)
+1.2V
+3.3V
+15V(P)
+3.3V(STB)
+3.3V(STB)
+2.5V
+1.2V(STB)
D4032
+3.3V(P)
+3.3V(SW)
STB+5V
D4030
FL4008
+5V(STB)
+2.5V(P)
+1.8V
+5V(STB)
FL4007
+5V(P)
+1.2V(STB)
+1.2V(P)
+3.3V
+3.3V(STB)
+15V(P)
+3.3V(SW)
+5V(FAN)
+2.5V
G
G
G
G
19
1
PI1HS,PI1VS
LVDS
1
RE0-9(10bit)
RST IN
SDA1/SCL1
2
6
5V->3.3V
SCW4
PB56
35
SDA/SCL
DIGITAL SIGNAL PROCESSOR
HD_ADA
VD_ADA
CLPA
A_EA+- - EE+-
10bit
R/G/B
59
DS1
A_OA+- - OE+-
DDR_SDRAM
STB+5V_MON
FAN+15V
10bit RGB VIDEO SIGNAL
CLK
4
15V_ON/OFF
43
IC4704
DN4
61
IC4010
+5V(FAN)
CLOCK IN
RTC_INT
+1.8V
[B]
2088MHz
3
45
FAN_A-H
+15V(P)
LED_G
D_IIC_CLK1
FAN_SOS
LVDS DATA
LVDS DATA
D_IIC1
IC4005
AD_G0-G9
INTERFACE
46
22
KEY_INPUT
56
67
PANEL SOS
IIC_SW_DAC3
5V->3.3V
31
SDA2/SCL2
HD-M/
VD-M
+2.5V
S_CLOCK3
PR_M
+1.2V SOS
CLK
ASIC OUT B
EEPROM
PANEL SOS
SCW4
PB
G/Y_M
LVDS OUT
15
PI1D(10)-(19)
+
12
PARALLEL
RTC_INT
LAN+14V_ON/OFF
LVDS RECEIVER & TTL PARALLEL
VSYNC
FOR
+1.8V_AVDD
POWER_ON/OFF
10
+1.8V SOS
IIC_SW_DAC4
REMOTE IN
FAN SOS DET
IIC2
Q4008
[A]
LED_G
CLD
TXD_PC
PANEL_STATUS
IC4703
-
D_IIC_DATA1
3.3V_RXD_LAN
FAN+15V
FOR
DPMS_HD
ASIC-ARM
CLK
24
R/G/B
RXD_PC
+3.3V
3
IC4001
DS_SOS
+3.3V
10
CLOCK
B_OA+- - OE+-
FAN CONT2
VSYNC
PI2HS,PI2VS
27
IP CONVERTER
A/D
+1.2V
Q4009
LED_R
36
15V_ON/OFF
FSTB+15V_MON
R/PR_M
PARALLEL
A_CLK+-
A/D CONVERTER
DATA
13
RECEIVER
S_CLOCK2
SCW4 IN
FAN-SOS
3.3V
57
47
IIC2
DDR_SDRAM
A_CLK+-
IC4515
30
RESET
RXD_TU
LAN0
DAC1
+1.8V
AVDD
PI2D(20)-(29)
65
B_OA+- - OE+-
IC4501
Q4003
LAN+14V_ON/OFF
SOUND_MUTE
IC4513
31
KEY_INPUT
Q4014
HS,VS,CLK
SDA3/SCL3
LED_R
FLASH MEMORY
DAC1
HDA,VDA
SCW IN A
5V<-3.3V
MCCLK
3
MCLD
R/G/B
Y_M
DN5
PI2G0-G9
IIC4
D_RXD
IIC CONT
REMOTE
HSYNC
PI2D(0)-(29)
S_DATA3
54
HS,VS,CLK
1
16
-
DN2
HS,VS,CLK
TXD_PC
IC4702
FPGA_CLK
RECEIVER
DS3
4
DN BOARD SOS
PI2B0-B9
FPGA_DATAIN
USE
Q4023
SLOT3_DET
11
DN
LVDS
PI2R0-R9
DQ0-DQ15
40
PI1R0-R9
DN11
MICOM
+3.3V
+
IC4501
SDA4/SCL4
PI1G0-G9
SLOT1_DET
FPGA_LD
IIC4
SCW IN B
PI1D(20)-(29)
D_TXD
IIC_SW_DAC3
LAN1
IC4012
IC4901
A/D_C
REMOTE_OUT
PANEL_STATUS
8
ASIC-ARM
A_EA+- - EE+-
STB_ON
DPMS_HD
REMOTE_IN
66
28
MCDATA
IC4501
PI2D(0)-(9)
5
+1.8V
PLL
36
30bitx2_ASIC OUT
TXD_TU
+3.3V
14
P+15V SOS
3
ROUT
D_IIC_CLK2
Q4007,13
HS,VS,CLK
LSI RESET
CLOCK GEN
+
B_CLK+-
30bit_RGB VIDEO
SIGNAL PROCESSOR
D_RXD
3.3V_TXD_LAN
ALL_OFF
INTER FACE
ASIC
DN1
CLK_O
FLASH MEMORY
30bit
51
PI1B0-B9
TTL
+3.3V SOS
DDR2_SDRAM
PANEL STBY ON
DN9
2
SDA/SCL
SYNC
SEPA
HSYNC
B/PB_M
BE0-9(10bit)
IIC_CONT
A_OA+- - OE+-
BOUT
3.3V_RXD_LAN
IC4007,08
AD_H,AD_V
10bit LVDS
REMOTE
CIRCUIT
GOUT
HD_M
TTL
DN3
IIC3
+2.5V SOS
IIC_SW_DAC4
34
23
RXD_PC
PARALLEL
LAN1
IC4903
B_CLK+-
HSYNC/VSYNC/CLAMP
DPMS_VD
IIC1
5V
Q4012
1
4
TXD_TU
FAN CONTROL
USE
+1.8V_PLL
SCW4
FAN_ON/OFF
20
D3
-
GE0-9(10bit)
FSTB+15V_MON
50
REMOTE_OUT
OSD
DDR_SDRAM
IC4902
STB_ON
DATA
33
+3.3V
DATA
CLKM/20MHz
PI2D(10)-(19)
P+5V SOS
HD_M/
VD_M
33
+5V(P)
LVDS
S_DATA2
74.25MHz
ALL_OFF
SLOT2_DET
TTL
+5V(STB)
VD_M
HDA,VDA,
CLPA
26
29
FACTORY
D5
3
7
P+15V SOS
52
PB30
SCW4 IN
IC4514
+2.5V
FACTORY
30bit
LAN0
ASIC OUT A
SOUND_MUTE
DATA
IC4011
8
PB71
+15V(P)
D_IIC_DATA2
RXD_TU
3.3V_TXD_LAN
+9V(FAN)
62
DPMS_VD
VIDEO SIGNAL PROCESSOR
R/G/B_0-9
DATA
IIC2
FAN_CONT
IC4904
Q4011
POCLK/74.25M
+1.2V
CLP
PI1D(0)-(9)
TEMP
SENSOR
CLD
67
ADDRESS
DATA
IC4201
A0-A19
DAC0
4
PB_M
DS BOARD SOS
37
+1.8V
42
21
2
DAC0
IIC3
PI1D(0)-(29)
PANEL STBY ON
IC4004
D_IIC2
INTERFACE
+3.3V(STB)
39
B_EA+- - EE+-
AD_B0-B9
14
17
IIC2
AD_R0-R9
8Mbit
D_TXD
Q4010
B_EA+- - EE+-
41
23
PB31
IC850
VOLTAGE
CONTROL
5
FAN CONT2
Q850
Q4021
+15V(FAN)
P(MAIN_2)P6
48
RESET
D4002
H/V
CLK
CLK
SELECTOR
OR
R/G/B
R/G/B
30bit
30bit
H/V
(LED:10TIME)
(LED:11TIMES)
(LED:11TIMES)
(LED:13TIME)
(LED:2TIMES)
(LED:10TIME)
(LED:2TIME)

Table of Contents

Other manuals for Panasonic TH-85PF12U

Related product manuals