EasyManua.ls Logo

Parker P1F - Dimensional Data - Special Designs

Parker P1F
32 pages
Print Icon
To Next Page IconTo Next Page
To Next Page IconTo Next Page
To Previous Page IconTo Previous Page
To Previous Page IconTo Previous Page
Loading...
Parker Hannifin Corporation
Pneumatic Division
Richland, Michigan
www.parker.com/pneumatics
14
For inventory, lead times, and kit
lookup, visit www.pdnplu.com
E
TG
PL PL
EE
VAVA
G
D
4
L8 + Stroke
T
T
B
A
RT
BG
G
S A + Stroke
AB
AU AO
PE
TG
TR
A
H
A
T
L
7
D
K
K
A
LL8 + Stroke
PL
PP
L12
LWH*
B
A
VA
G
DIN 439B SW
EE
S
S
T
T
B
D
4
BG
LVD
LK
LPL
LPP
L
S
S
LXRT
TG
E
LG
L3
G 1/8
L
E
L
T
T
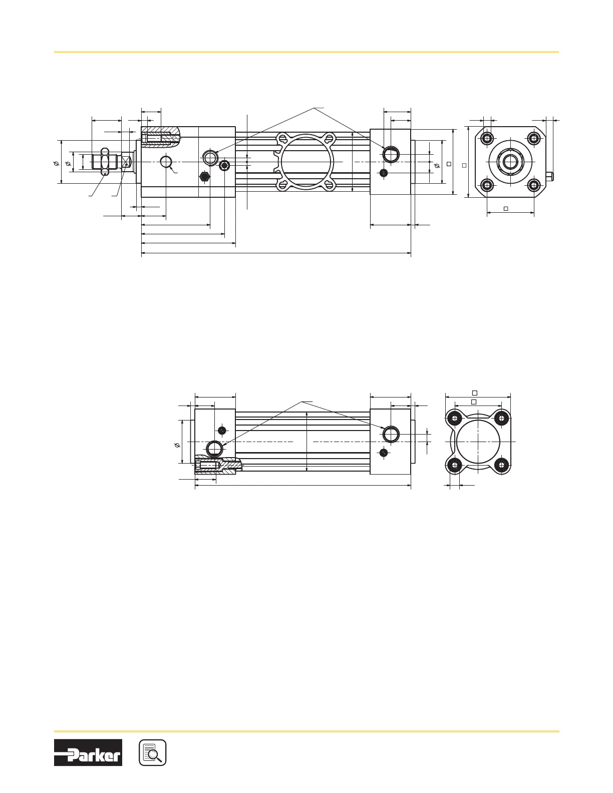
Tie Rod and Prole Pneumatic Cylinders
P1F Series
Catalog 0980
Dimensional Data
Dynamic rod lock with smooth profile design
P1F-L
Air reservoir with smooth profile design
P1F-P
Important
Pressure Equipment Directive. According (PED) to the directive 2014/68/EU, for uncertified pressure vessels:
Max Working pressure x Volume maximized to 50 Bar x liter, i.e. max 10 bar and 5 liter volume.
In accordance we therefore maximized the volume to max 5 liter cylinder.
* Not ISO
www.comoso.com

Related product manuals