EasyManua.ls Logo

Payne PH3Z024 - Page 14

Payne PH3Z024
22 pages
Print Icon
To Next Page IconTo Next Page
To Next Page IconTo Next Page
To Previous Page IconTo Previous Page
To Previous Page IconTo Previous Page
Loading...
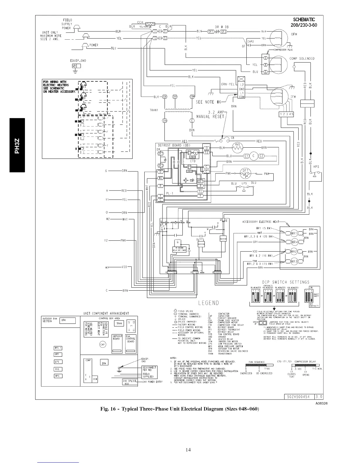
FIELD
SUPPLY
UNIT ONLY BL_
MAXIMUM WIRE
SIZE 2 AWG 1-1 YEL
POWER
__ 5LU
EOIP_GND
0 --ORN --
W2IWHT --
Y2 --PNK--
ws--VlO--
OUTBOOR FAN
SECTION
rssq
F_Sq
C --BRN
UNIT COMPONENT ARRANGEMENT
CONTROLBOXAREA
BEPROSE PAN
BOARD CONTROL
BOARD
PL I
J
c
[
R E_V SPLICE
BOX
-- RED RED --
DEFROST BOARD(DB)
I
I
I
_EOUIP
B_B
IE4V POWER E_TBY
EGEND
_;]EL8 SPLICE
_TERMINAL (_A_KED} C CBNTACTOR
o _ER_INA__ARKED) CAP CAPACITOR
o SPLICE CB CIRC_ITBREAKER
_SPLICE (_AR_ED_ CC_ CRA_KCASE NEATER
EO_P COMPRESSOR_O_OR
I FACtORYWIRING ETB COMPRESSORII_E DEIAY
- --FIELDCONTROLW_RINB D_ DEFROST_O_RD
I- F_ELB POWER_IR[_G DFI¸ DEPROST_H_R_OSIA_
----ACCESSORYOR OP_;O_AL DR DE_ROSTRELAY
WIRING rCB rA_ CONTROLBOARD
GRD DROURD
I_O INDICATECOMMO_ HR HEA_ERRELA_
POTENTIALO_LT: IF_ INDOORPAR _OTOR
NBT _0 REPRESERTW_RIND EPS EOW PRESSUH_SWITCH
HPS HIGH PRESSURESWITCH
OF_ OUTDOORrA_ _OTOR
RVS REVERSinGVALVE SqE_OID
TRA_ TRAnSFORmER
BLU _PS BEU
F
BLK
I
@E_ROST_LL TER.[_A?{I_30SEE Ir D;To_
_EFROS$_]L£$Eff_I_A_ENOR_AL£YIFOFT ISCLOSE_
NOTES
I IF A_Y or THE ORIGINAL WIRES F_RNISBED ARE REPLACED, IAN SEQUENCE CTB (PI,T2) COMPRESSOR DELAY
IT _UST BE REPLACED _ITB TYPE 90 DEGREE C _IRE OR
IT'S EQUIVALENT
SEE PRICE PAGES FOR TBER.OSTAT AND SUBBASES ; _ T;9O ; ; SEE i T_ _IN
_SE 75 DEGREE COPPER CONDUCTORS FOR FIELD INSTALLATION B G C1 C1
4 RELOCATION OF SPEED TAPS _AY 8E REQUIRED ENERGIZED DE-ENERGIZED CLOSES OPENS
WHEN gSlNG FIELD INSTALLED ELECTRIC HEATERS, TSAT
CONSULT E_STALLATIO_ I_STRUCTIONS TO
DETERminE CORRECT SPEED TAP SETTING
S 'DO NOT DISCONNECT PLUG UNDER LOAD"
50ZH500454 3 0
A06826
Fig. 16 - Typical Three-Phase []nit Electrical Diagram (Sizes 048-060)
14

Related product manuals