EasyManua.ls Logo

PEERLESS SERIES 62 - W;Dual 24 V Main Gas Valves; W;Dual 120 V Main Gas Valves

PEERLESS SERIES 62
48 pages
Print Icon
To Next Page IconTo Next Page
To Next Page IconTo Next Page
To Previous Page IconTo Previous Page
To Previous Page IconTo Previous Page
Loading...
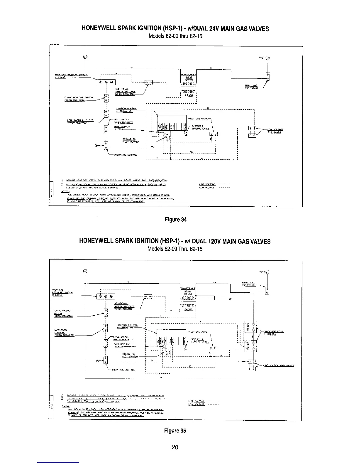
HONEYWELL SPARKIGNITION (HSP-1) - w/DUAL 24V MAIN GAS VALVES
Models62-09thru 62-15
_j m
1 [ ................
i i ;
i i
_,L W_ _ _,V___ _T_ _ICA_[ COOlS. C,_O_',_ES. A_ _1'_ A_IC,_S,
Figure34
HONEYWELL SPARKIGNITION (HSP-1) - w/DUAL 120V MAIN GAS VALVES
Models62-09Thru62-15
........"F
............ [ ' ! ....... "
_ _, _D ,_ ,¢_,_ ._=_.p_,x _L_._. *,.,_ _0_ T_pL_;T _
NOTES=
=
Figure35
2O

Table of Contents

Related product manuals