EasyManua.ls Logo

PEERLESS VL30 - Wiring Diagram CE131 Single Phase

Default Icon
26 pages
Print Icon
To Next Page IconTo Next Page
To Next Page IconTo Next Page
To Previous Page IconTo Previous Page
To Previous Page IconTo Previous Page
Loading...

16
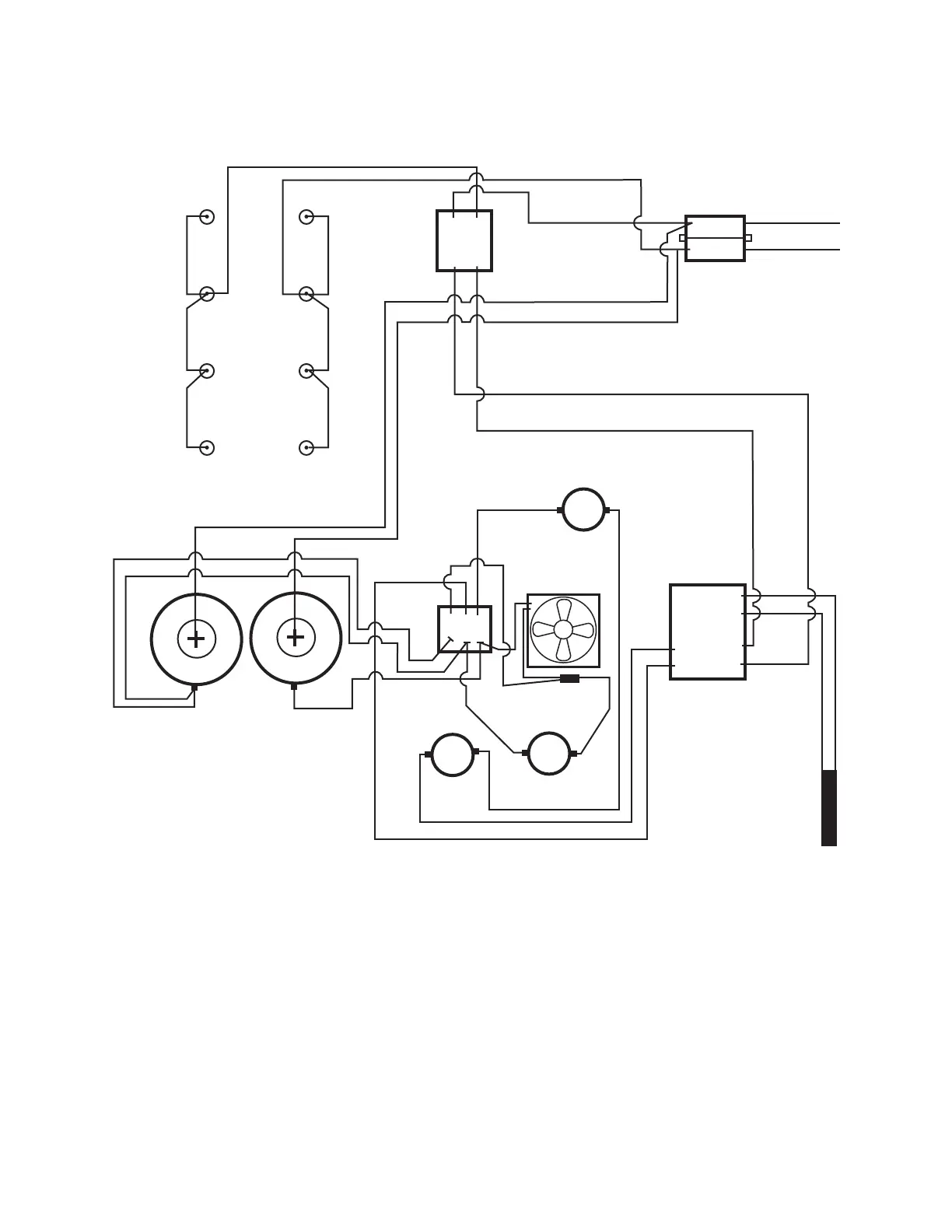
CE131 1 PHASE 220V WIRING DIAGRAM
F.H.
F.H.
F.S .
F.L .
15 10 5
14 9 4
13 8 3
12 7 2
11 6 1
SSR
A2 A1
FAN
CONTROLLER
THERMOCOUPLE
YELLOW
RED
T.S.
H.L.
T.B.
SSR RELAY
T.B. TERMINAL BLOCK
 
F.H. FUSE HOLDER
 
CONT. CONTROLLER
L.S. LIMIT SWITCH
F.S. FAN SWITCH
LINE V

Related product manuals