EasyManua.ls Logo

Pegasus M800 - Schéma du Plateau de la Machine; Skizze des Nähmaschinentisches

Pegasus M800
120 pages
Print Icon
To Next Page IconTo Next Page
To Next Page IconTo Next Page
To Previous Page IconTo Previous Page
To Previous Page IconTo Previous Page
Loading...
54
69
79
115
101
165
185
83
195
12
R20
R23
3-R20
R10
159
75






A
A


118
136
45
84
139
138
20
D
E
C
B
B
66
33
75
(525)
590
378
298
332
310



20
60
106
140
250
290
9-R10
R20
R23
375
355
349
335
263
250
235
107
45
1200
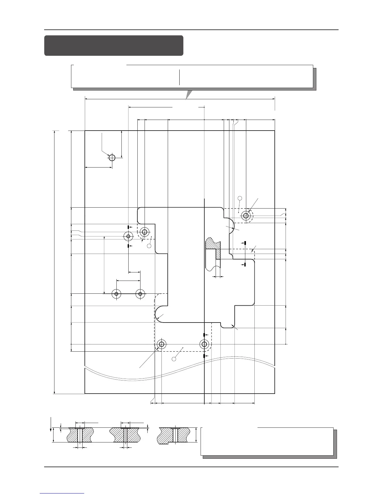
Hinweis Remarque
Wenn die Maschinenauflage stärker als 40 mm ist, so
schneiden Sie sie auf die mit
Maße zu.
Si le plateau de la machine fait plus de 40 mm d’épaisseur,
coupez-le à la dimension signalée par
.
25.5
9
1.5
40
25.5
13
3
Querschnitt B-B (x 3)
Section B-B (x 3)
40

für CDE
Pour CDE
Hinweis Remarque
Efka/Quick-Motoren
Moteurs fabriqués au Japon
210 mm
Efka/Quick-Motoren
Motores Efka/Quick
238 mm
17
Bohrung
17
Alésage
Siehe Hinweis.
Cf. remarque
Rechts
Droite
Hinten
Arrière
Vorne
Avant
Links
Gauche
Standardabmessungen
Dimensions standard
Querschnitt A-A (x 4)
Section A-A (x 4)
Skizze des Nähmaschinentisches
Schéma du plateau de la machine
Teilversenkte Montage
Montage partiellement escamoté

Abb.1
Fig.1

Table of Contents

Related product manuals