EasyManua.ls Logo

Pfannenberg DTS 6401 - Assembly of the DTI Cooling Unit (Installation)

Pfannenberg DTS 6401
76 pages
Print Icon
To Next Page IconTo Next Page
To Next Page IconTo Next Page
To Previous Page IconTo Previous Page
To Previous Page IconTo Previous Page
Loading...
ENG
Operating Manual | Attachment and Installation Cooling Units | Multi Controller (MC) 400 / 460 V, 3~ | 086100124 37/76
4.5.3 Assembly of the DTI cooling unit (Installation)
4.5.3.1 Making cut-outs for DTI cooling unit
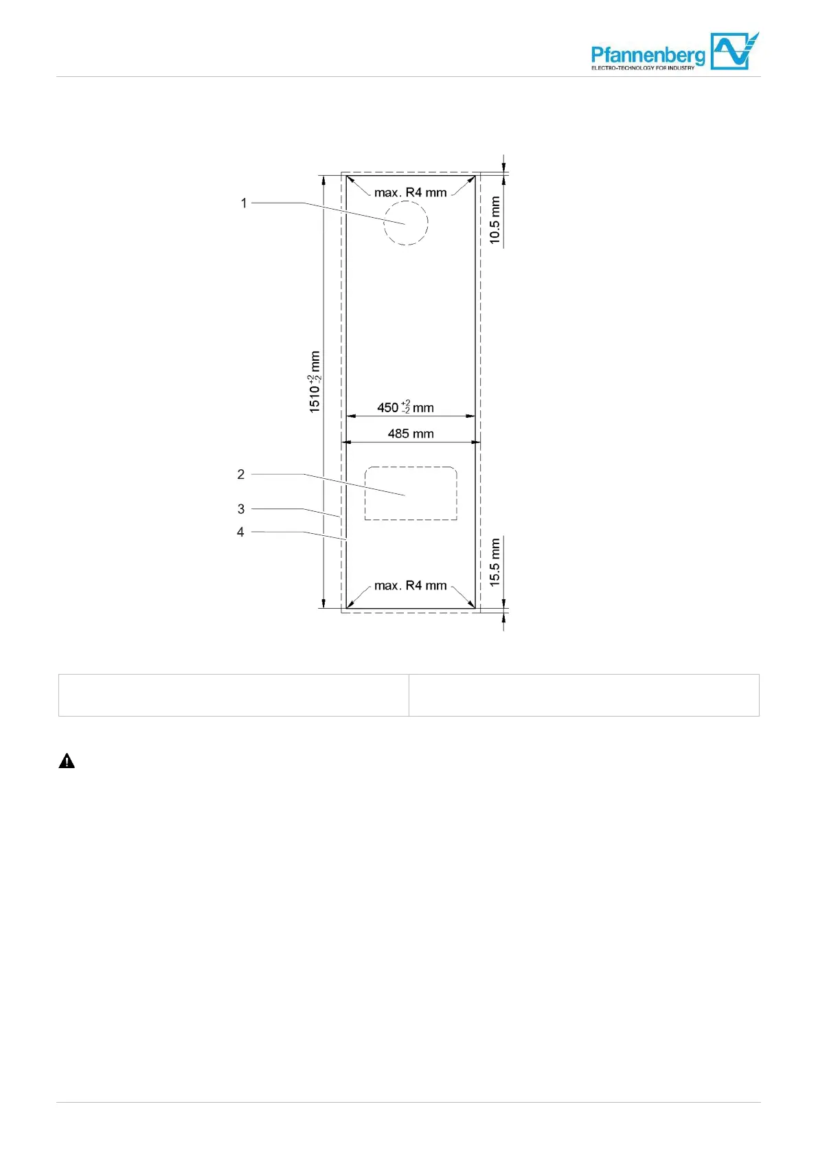
Fig. 13: External view switch cabinet, assembly cut-outs
1 Air inlet
2 Air outlet
3 Device contour
4 Assembly cut-out
Prerequisites
DANGERDanger to life due to electric shock. Make sure that the unit is voltage-free.
All general requirements are met, see "General", Page 34.
Required tools and materials
Saw
Switch cabinet mill if necessary
Protective covers
Procedure
1. Ensure that the switch cabinet has a protective cover to protect against chips.
2. Provide switch cabinet with cut-outs. For prescribed dimensions, see Fig. 13.
3. The four cut-out corners can be made rectangular or with a max. radius of 4 mm.
4. Deburr the cutting edge.
5. Remove chips and assembly waste from the switch cabinet.
The cut-outs and holes are made and the cooling unit can be assembled.
G00009

Table of Contents

Other manuals for Pfannenberg DTS 6401

Related product manuals