EasyManua.ls Logo

Philips 43PUT6801 - Page 54

Philips 43PUT6801
190 pages
Print Icon
To Next Page IconTo Next Page
To Next Page IconTo Next Page
To Previous Page IconTo Previous Page
To Previous Page IconTo Previous Page
Loading...
IC Data Sheets
EN 54 QM16.3A LA8.
2016-Jun-08
Table 2-1
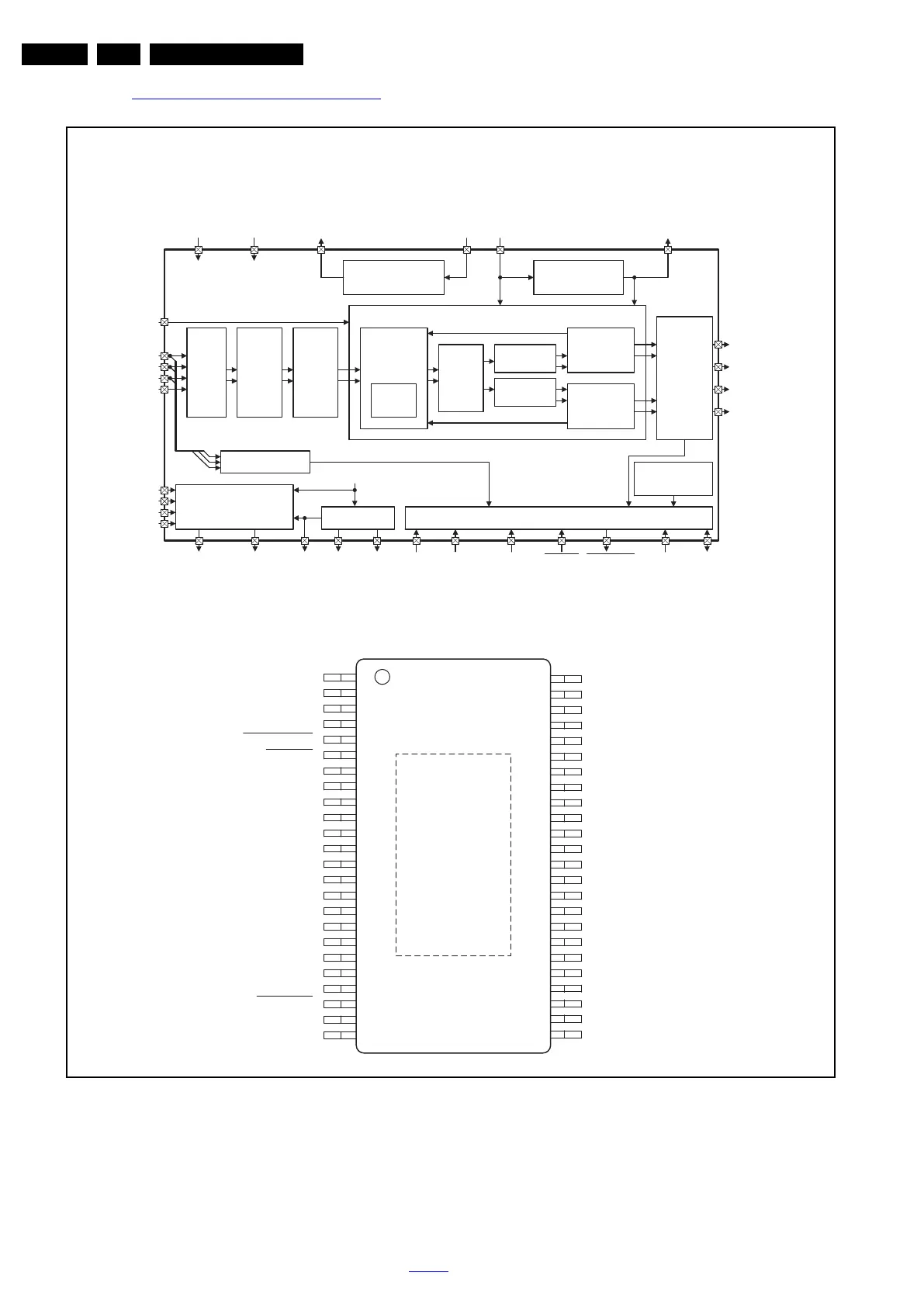
8.8 Diagram 10-9-16 AUDIO-1st-CLASS-D-AMP, B16, TAS5760LDDCAR (IC U5100)
Figure 8-9 Internal block diagram and pin configuration
19880_304.eps
Block diagram
Pinning information
PowerPAD
1
2
3
4
5
6
7
8
9
10
11
12
13
14
15
16
17
18
19
20
21
22
23
24
48
47
46
45
44
43
42
41
40
39
38
37
36
35
34
33
32
31
30
29
28
27
26
25
SFT_CLIP
ANA_REG
VCOM
ANA_REF
SPK_FAULT
SPK_SD
FREQ/SDA
PBTL/SCL
DVDD
SPK_GAIN0
SPK_GAIN1
S
PK_SLEEP/ADR
MCLK
SCLK
SDIN
LRCK
DGND
DR_INA-
DR_INA+
DR_OUTA
DRGND
DR_MUTE
DRVSS
DR_CN
GVDD_REG
GGND
AVDD
PVDD
PVDD
BSTRPA+
SPK_OUTA+
PGND
SPK_OUTA-
BSTRPA-
BSTRPB-
SPK_OUTB-
PGND
SPK_OUTB+
BSTRPB+
PVDD
PVDD
DR_INB-
DR_INB+
DR_OUTB
DR_UVE
DRGND
DRVDD
DR_CP
TAS5760LDDCAR
Clock Monitoring
Digital to
PWM
Conversion
Digital
Boost
&
Volume
Control
Soft
Clipper
Analog
Gain
Full Bridge
Power Stage
B
Serial
Audio
Port
DirectPath
TM
Ground
Centered Headphone /
Line Driver
Charge Pump Internal Control Registers and State Machines
Internal Reference
Regulators
Over-
Current
Protection
Full Bridge
Power Stage
A
Gate
Drives
Gate
Drives
Digital
Clipper
Die
Temp. Monitor
Internal Gate
Drive Regulator
Closed Loop Class D Amplifier
DR_INB+
DR_INB-
DR_INA+
DR_INA-
S
FT_CLIP
SPK_OUTB+
SPK_OUTB
-
SPK_OUTA+
SPK_OUTA
-
SCLK
SDIN
MCLK
LRCK
DDVAGER_ANADDVRDDDVD GVDD_REGPVDD
Internal
Voltage
Supplies
DRVDD
DR_OUTA DR_OUTB
DRVDD
DRVSS DR_CP
PBTL/
SCL
SPK_GAIN1
SPK_FAULT
SPK_SLEEP/
ADR
SPK_GAIN0
SPK_SD
FREQ/
SDA
DR_CN

Related product manuals