EasyManua.ls Logo

Philips 75BDL3052E - Parts and Functions; Input;Output Terminals

Philips 75BDL3052E
66 pages
Print Icon
To Next Page IconTo Next Page
To Next Page IconTo Next Page
To Previous Page IconTo Previous Page
To Previous Page IconTo Previous Page
Loading...
65BDL3052E/75BDL3052E/86BDL3052E
15
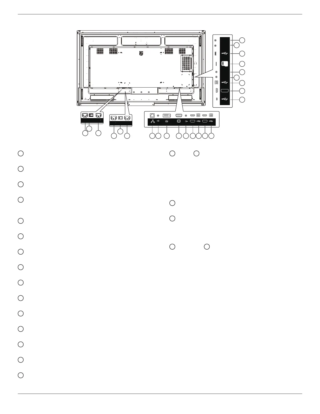
1
AC IN
AC power input from the wall outlet.
2
MAIN POWER SWITCH
Switch the main power between On and O.
3
AC OUT
AC power supply to the AC IN jack of a media player.
4
RJ-45
The LAN control function is used for sending the remote
control signal from the control center.
5
AUDIO IN
Audio input for VGA source (3.5mm stereo phone).
6
DVI-D IN
DVI video input.
7
VGA IN(D-Sub)
VGA video input.
8
AUDIO OUT
Audio output for external AV device.
9
HDMI1 IN
Connect to a source device via an HDMI cable.
10
USB-B-1
Touch connector to HDMI1.
11
HDMI2 IN
Connect to a source device via an HDMI cable.
12
USB-B
Touch connector to HDMI2.
13
USB 3.1 C
Support display and touch function.
14
HDMI3 IN
Connect to a source device via an HDMI cable.
15
USB-B
Touch connector to HDMI3, VGA, DVI-D.
16
IR IN /
17
IR OUT
IR signal input/output for the loop-through function.
NOTES:
The remote control sensor of this display will stop
working if the jack [IR IN] is connected.
To remotely control your A/V device via this display,
refer to page 25 for IR Pass Through connection.
18
MICRO SD
Insert a Micro SD card.
19
USB SERVICE PORT
Connect to usb storage device and service port (rmware
update).
Note: It’s for updating rmware only.
20
RS232 IN /
21
RS232 OUT
RS232 network input /output for the loop-through
function.
3.2. Input/Output Terminals
100-240V
50/60Hz 2.5A
1 3
2
65BDL3052E
86BDL3052E
75BDL3052E
100-240V
50/60Hz 2.5A
3 4 5 6 7 8 9 10 11 121
2
AUDIO OUT
AUDIO IN
RJ45
USB-B-1 USB-B-2
HDMI1 IN HDMI2 IN
DVI IN VGA IN
13
14
15
17
18
19
21
16
20
USB 3.1 C
USB-B-3
USB
Service Port
HDMI3 IN
IR-IN
IR-OUT
MICRO SD
RS232
OUT
RS232
IN

Table of Contents

Related product manuals