EasyManua.ls Logo

Philips A02U AA - I2 C Overview

Philips A02U AA
118 pages
Print Icon
To Next Page IconTo Next Page
To Next Page IconTo Next Page
To Previous Page IconTo Previous Page
To Previous Page IconTo Previous Page
Loading...
Block Diagrams, Testpoint Overview, and Waveforms
27A02U AA 6.
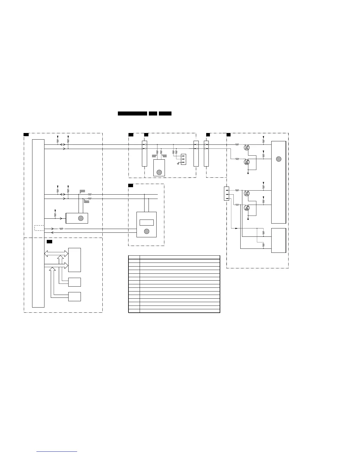
I2C Overview
CONTROL
ADOC
TUNER
A7
SSB.
CONN.
B1
A69
A70
I2C Overview
SDA0
SCL0
AF6
7300-C
AE6
3511
3513
3523
3581
3515
SDA1
F-REF
0291
0290
IRQ-MPIF
SCL1
+5V2 +5V2
VDDE
VDEE
VDDE
3509 3510
AF7
3512
AD6
AF8
A26
AF2
WC
B11
7025
M24C64
(NVM)
EEPROM
7790
M58LW032A
RAM
FLASH
CONN.
DATA
FLASH
CONN.
ADDRESS
ERR
13
ERR
14
ERR
11
5
7
6
3201
54
3200 3261 3262
3016
3019
+3V3
+3V3
+3V3
1200
TUNER
TEDE9
ERR
15
7002
SII9993CT400
HDMI
RECEIVER
7003
M24C02
EEPROM
1205
SDA-S
SCL-S
0230
48
49
1
2
3
1943
COMPAIR
CONNECTOR
FOR SERVICE
(REACHABLE VIA
HOLE IN REAR
COVER)
3032
75
74
3031
E_13950_067.eps
120304
A8
INPUT SELECTION
19511951
1
2
1
2
M2
HDMI PANELLINK RECEIVER
M1B18
MPIF
B1
B4
F509
F508
DATA
ADDRESS
B12
7100-D
MPIF
43
40
42
44
DIGITAL
BLOCK
7300-E
7300-k
Error Description
0 No error
1 Horizontal Protection (via NOHFB bit in ADOC)
3 +8V error (missing/protection active by checking MPIF ASUP bit))
4 X -ray/High beam current protection signal (via XPROT bit in ADOC)
5 Hardware Protection is active
7 Und er -voltage protection
11 MPIF I2C communication failure / MPIF test failed
12 BC -loop not stabilised within the time limit (i.e. after timer is expired)
13 NVM I2C communication failure
14 Main tuner I2C failure UV13xx
15 HDMI Panel Link Receiver
17 3D Combfilter I2C communication failure
18 PIP Tuner I2C failure
21 PIP IF demodulator IC TDA988x communication failed (only for PIP/DW sets)
22 Flash over protection error (to register CRT flash-overs, via FPR bit in ADOC)
D
S
G
7009
BSN20
D
S
G
7010
BSN20
3027
3026
+3V3
+5VHDMI
+3V3
+3V3
3032
76
77
6
5
3031
3017
3015
1021
16
15
18
D
S
G
7006
BSN20
D
S
G
7007
BSN20
HDMI
CONNECTOR

Table of Contents

Related product manuals