EasyManua.ls Logo

Philips A02U AA - SSB: Audio Processing

Philips A02U AA
118 pages
Print Icon
To Next Page IconTo Next Page
To Next Page IconTo Next Page
To Previous Page IconTo Previous Page
To Previous Page IconTo Previous Page
Loading...
54A02U AA 7.
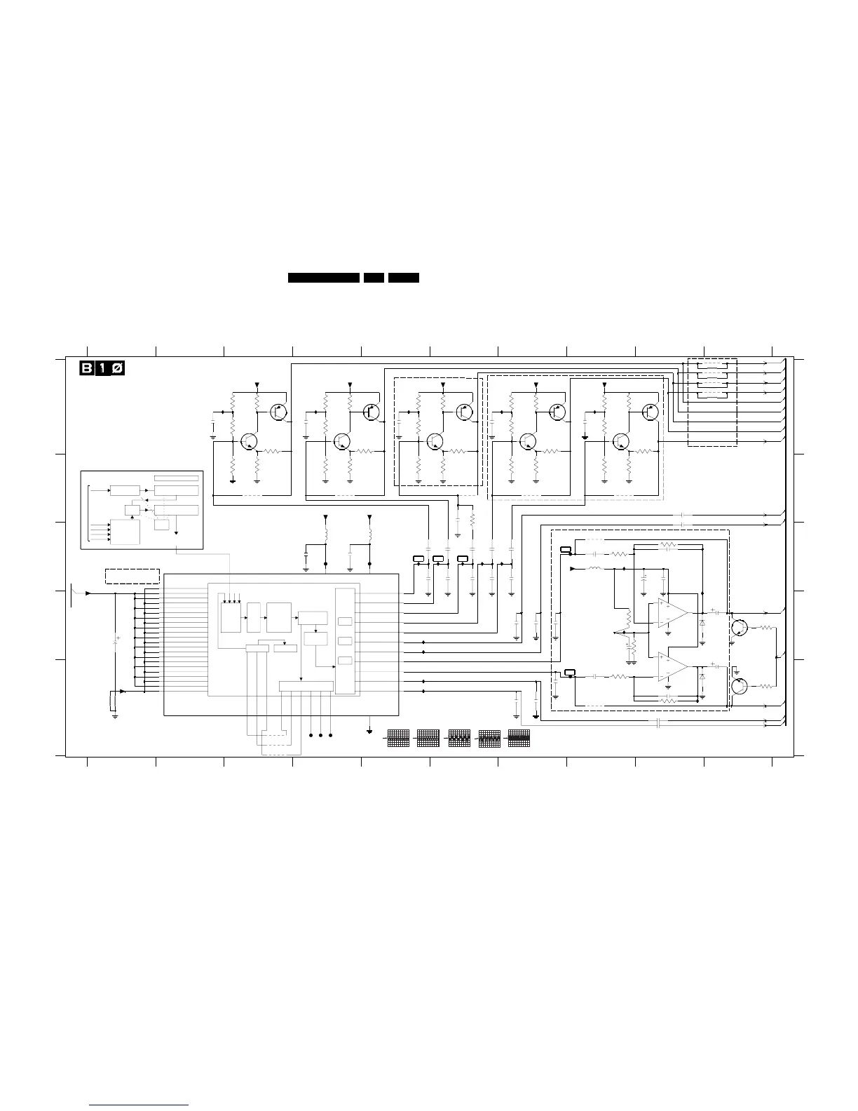
Circuit Diagrams and PWB Layouts
Small Signal Board: Audio Processing
PROCESSING
INPUT
X-BAR
WS PLL
NOISE
SHAPER
I2SOUT
I2SIN
DAC
5D/A
2D/A
4D/A
FROM AUDIO DEMDEC & DD-DSP
AUDIO DSP
LEVEL
ADJ
INPUT
X-BAR
2u2
VREF_AUD_NEG
3447
56K
3460
1K2
5678910
FOR DPL SET
PROVISION FOR DVD INTERFACE
2439 B9
REMOVE FOR DVD
D
E
A
B
C
D
E
2430 C7
2431 C6
2432 C6
2433 C5
2434 C5
2435 C6
2436 C6
2437 C7
2438 B9
2134
REFER TO SHT B10a
2440 D7
2441 D7
2442 D8
2443 E7
2444 E7
2445 E7
2447 D1
2450 C4
2451 A8
3453 A2
3454 A3
3455 B3
3456 B3
3457 A3
3458 A5
2453 A7
2454 A4
2457 A2
2458 C6
10
A
B
C
2452 C4
2462 E9
2461 E9
2465 A5
2467 C6
2468 B6
2480 C8
2481 E8
2483 C9
123456789
2V7
UAB 12 NEED TO BE RAISE :
AE25 : AUD-SPKR-R-VRNEG
AF26 : AUD-SPKR-R-VRPOS
7V3
4V
I437 C6
I438 C6
I439 C6
I440 C7
I441 D5
I442 D5
I443 E5
I444 E5
I445 C8
I446 D8
I447 D10
I448 E10
100MHZ / 220R
100MHZ / 220R
REMOVE FOR DVD
ALL STRAPS TO BE
REFER TO SHT B10a
B18-100
PROVISION FOR DVD INTERFACE
PREPROCESSING
7V3
2V7
4V
1K8
B3
1V6
4V9
4V9
2V5
2V5
2V5
2V5
2V5
2V5
ALL STRAPS TO BE
4451 A10
4452 A10
4453 A10
4480 C8
4481 E8
5450 C4
2484 D8
2485 E9
2486 C9
2487 C9
2488 D10
2489 D10
3433 B9
3434 B8
3435 A8
AE25 : AUD-SPKR-R-VRNEG
UAB 12 NEED TO BE RAISE :
3436 A8
3437 A8
3439 A7
3440 A7
3441 A7
3442 B7
3443 B7
3444 A7
3445 A4
3446 A4
3447 B4
3448 B4
3449 A5
3450 A4
3452 A3
7434-A A6
7434-B A6
7480-A D9
7480-B E9
7486-A D10
7486-B E10
3459 A5
3460 A6
3461 B5
3462 B6
3463 A6
3465 A9
3468 B6
3480 C8
3481 E8
100MHZ / 220R
SRC
3482 D8
3483 C9
3484 D9
3485 E9
3486 D10
3487 E10
4430 B3
4431 B4
4432 B6
4433 B7
4434 B8
4435 E3
4436 E3
4437 E3
4450 A10
PROCESSING
B18-95
I433 A5
I434 A7
I435 A8
I436 C5
5452 C4
5480 C8
6480 D10
6481 E10
7300-B C2
7430-A A8
7430-B A9
7431-A A7
7431-B A7
DDEP
7300
B18-96
SSIF
A_ADC1
SELECT
B4-68
DECIMATION
B18-98
B18-97
AF26 : AUD-SPKR-R-VRPOS
DEMDEC & DD_DSP
A_ADC2
7432-A A4
7432-B A4
7433-A A3
7433-B A3
FOR
SUBWOOFER
SET
1V6
1V6
1V6
F437 E4
F438 E4
F439 E4
F448 C4
F449 C4
F480 C7
F481 E8
I431 A2
I432 A4
AUDIO DEMODULATION
B3-65
DEMATRIX AND
AUDIO PROCESSING
TO AUDIO
B18-99
FILTER
FROM VIDDEC
B3-64
HEADPHONE AMPLIFIER
B18-94
B3-63
FOR DPL SET
A_ADC3
A_ADC4
B3-62
DOWNMIX
7486-B
3487
7486-A
BC847BS
BC847BS
4453
4452
3435
56K
2454
3434
56K
2437
470n
F438
2436
470n
F437
3439
470n2480
7431-B
BC847BPN
47K
100u
2488
7432-A
BC847BPN
I448
2442
1n
2443
1n
2441
1n
100R
3468
I438 I439
+8V
3462
1K2
3463
1K5
2481
470n
8K23485
3481
2K7
4480
I436
4481
I434 I435I432 I433
BC847BPN
7433-B
2467
470n
+8V
1K8
3486
SDAC1-3V3
AD22
SDAC1-VDDA
AE22
SDAC1-VSSA
AF16
SDI
AE17
SDO1
AD17
SDO2
AD16
WSI
AE19
WSO1
WSO2
AD19
2450
10n
AUD-SPKR-C-VRPOS
AD25AUD-SPKR-L
AD26 AUD-SPKR-L-VRNEG
AD24 AUD-SPKR-L-VRPOS
AE26AUD-SPKR-R
AF26 AUD-SPKR-R-VRNEG
AE25 AUD-SPKR-R-VRPOS
AB23AUD-SPKR-SL
AB24 AUD-SPKR-SL-VRNEG
AA26 AUD-SPKR-SL-VRPOS
AE24AUD-SPKR-SW
AF24 AUD-SPKR-SW-VRNEG
AF25 AUD-SPKR-SW-VRPOS
SCKI
AE16
AE18
SCKO1
AD18
SCKO2
AC22
AUD-DAC1-R-VRNEG
Y24 AUD-DAC1-R-VRPOS
W26AUD-DAC2-L
W25 AUD-DAC2-L-VRNEG
Y23 AUD-DAC2-L-VRPOS
W23AUD-DAC2-R
W24 AUD-DAC2-R-VRNEG
V26 AUD-DAC2-R-VRPOS
AB26AUD-HP-L
AC23 AUD-HP-L-VRNEG
AB25 AUD-HP-L-VRPOS
AC25AUD-HP-R
AUD-HP-R-VRNEGAC24
AC26 AUD-HP-R-VRPOS
AE23AUD-SPKR-C
AD23 AUD-SPKR-C-VRNEG
AF23
ADOC
7300-B
AUD-DAC1-L AA24
AA23 AUD-DAC1-L-VRNEG
AA25 AUD-DAC1-L-VRPOS
Y25AUD-DAC1-R
Y26
2440
1n
4434
F448
F439
F449
3443
56K
3433
1K2
7434-A
BC847BPN
1K2
3442
3459
56K
+8V
2435
470n
7430-A
BC847BPN
10n
2452
2453
2u2
3456
2451
2u2
56K
3455
1K2
3454
56K
2433
1n
2434
470n
2458
1n
2457
2u2
1n
2444
I444
I443
I440
4451
2K7
3480
+5V
6480
BZX384-C12
I437
3458
47K
3450
1K2
3446
56K
7432-B
BC847BPN
3445
47K
F481
F480
TDA1308T
7480-A
3
2
1
8
4
4450
5450 5452
2465
2u2
BC847BPN
7433-A
3461
56K
2486
100n
2487
10u
16V
3441
56K
VDDE VDDCO
3440
1K2
2462 470n
2461 470n
I447
VREF_AUD_POS
I445
I446
3452
3453
47K 1K2
2439
470n
2447
100u
470n2438
I442
I441
4432
4433
7434-B
BC847BPN
2489
100u
3449
1K5
BZX384-C12
6481
3448
1K2
I431
3483 8K2
1n
2445
5
6
7
8
4
1n
2483
3457
1K5
TDA1308T
7480-B
4430 4431
5480
4437
2431
1n
2432
1n
4436
3437
1K2
1n
2468
4435
+8V
3436
47K
3444
1K5
+8V
7430-B
BC847BPN
3465
1K5
BC847BPN
7431-A
16V10u
2484
3484
4K7
2485
1n
4K7
3482
HEADPHONE-L
SOUND-ENABLE_2
2430
1n
AUDIO-L
AUDIO-R
AUDIO-SW
DSNDR2
DSNDL2
DSNDR1
DSNDL1
AUDIO-C
AUDSPKR_R
AUDSPKR_L
AUDSPKR_C
AUDSPKR_SR
AUDIO-SURR
C_TV_IN
SW_TV_IN
L_TV_IN
R_TV_IN
HEADPHONE-R
CL 36532058_031.eps
211103
3139 123 5536.2
F480
100mV / div AC
1ms / div
F481
100mV / div AC
1ms / div
I437
20mV / div AC
200µs / div
I438
100mV / div AC
1ms / div
I436
20mV / div AC
500µs / div

Table of Contents

Related product manuals