EasyManua.ls Logo

Philips A02U AA - Circuit Diagrams and PWB Layouts; Large Signal Panel: Main Supply

Philips A02U AA
118 pages
Print Icon
To Next Page IconTo Next Page
To Next Page IconTo Next Page
To Previous Page IconTo Previous Page
To Previous Page IconTo Previous Page
Loading...
Circuit Diagrams and PWB Layouts
29A02U AA 7.
7. Circuit Diagrams and PWB Layouts
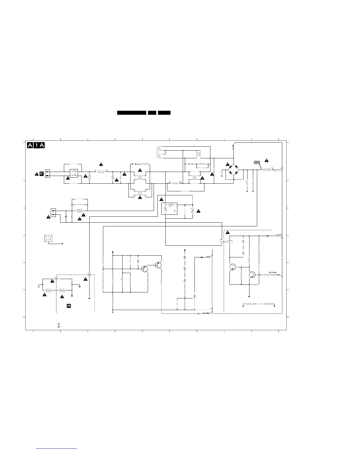
Large Signal Panel: Main Supply
V
+t
+t
Rs
Rp
for AP-PAL
0202 OF
HOT
US AP NTSC
F2,5AH-250V
*
F4AH-250V for
D
E
F
0043 C1
1500 A2
1501 A3
1502 B1
1503 A9
1505 A1
1510 F2
1550 D8
1590 A4
1591 A6
2505 E1
2507 A4
2508 A8
2509 A8
2516 B8
2517 B9
2520 C2
2521 E2
2528 E9
2529 F6
2533 F9
2537 A7
A3-A4-23
A1-8
A2-8
123456789
123456789
A
B
C
D
E
F
A
B
C
143V FOR 120V SETS
DEGAUSSING
2539 E4
2545 D4
2547 C2
3500 B6
3501 A5
3502 E2
3503 E1
3509 A3
3516 C6
3521 A3
3524 E9
3528 E8
3529 D9
3532 D9
3534 E9
3537 C2
3541 F8
3548 F6
3550 B6
3551 F6
3554 D3
3555 E3
3556 E4
3557 F4
3558 E5
3559 E5
3560 E3
3561 E4
3562 A7
277V FOR 230V SETS
5502 A6
5503 A4
5504 B4
5511 A7
5515 B2
5516 A5
6507 D6
6508 E6
6511 D8
6512 D8
6513 E6
6522 D4
6525 A8
7501 E8
7503 F7
7505 E5
7508 D5
7528 D8
9501 A2
9502 B2
9503 A6
9504 B6
9507 A7
COLD
A2-42
T6,3AH-250V
*
*
COIL
HOT
PANEL
FOR LATAM - AP SETS
A1-8
9513 B6
9516 B2
9518 C6
9519 B6
*
A8-30
for US
COLD
HOT
FROM
TO
A2-43
RES
MAINS SWITCH
0301 OF
COLD
ABOUT DC VOLTAGE MEASUREMENT
Normal
standby ( )
HOT
MAIN SUPPLY
TO
COLD
3537
T5AH- 250V FOR AP
GND-SUP
GND-STB
DSP
1590
GBU4J
6525
1
2
47K
3558
9504
4
3551
330R
1R
3500
2507
470n
VBATT
+375V
4K7
3529
5502
14
23
6M8
3554
GND-STB
9513
10K
3559
24
56
2
3
9516
BAS216
6511
A1
680K
3555
6522
MCL4148
1u
2528
13
SDDF
1500
4n7
2533
100R
3562
BZX384-C56
6508
1503
22n
2508
100R
3501
2529
100n
9519
33K
3524
3503
4M7
7503
BT151
6513
BZX384-C56
1
2
1502
GND-STB
2516
GND-SSP
1M
3561
9502
1K
3548
1501
4M7
3502
2
1
GND-SSP
23
1
1550
3541
22R
1K
5504
1
4
2
3
3560
1M2
BF423
7508
33u
5515
9501
1n
2545
1591
DSP
10u
2539
BZX384-C47
6507
9507
3550
232266296
1
47K
3534
BC857B
7505
3516
2505
5503
14
2
3
TUNERGND
BC847B
7501
GND-SUP
5511
3
4
10K
3528
2537
22n
3521
4M7
0043
HEATSINK
123
2521
470p
2509
22n
10n
2517
5516
54A-0018
1
2
3
4
1510
3532
47K
9518
7528
BC337-25
220K
3557
3509
2520
100n
9503
GND-SUP
2547
100n
6512
BAS216
47K
3556
GND-FB
GND-STB
1505
1
2
VBATT
GND-FB
E_13950_023.eps
240304
3139 123 5752.2

Table of Contents

Related product manuals